• 新着
  • オーナーチェンジ

本物件は投資向け物件です

想定利回り
2.51 %
年間想定賃料等
498万12
月額賃料等
41万5,001
現在の賃貸状況
一部賃貸中
オーナーチェンジ

投資用不動産

1億9,800万円

大阪市淀川区十八条3丁目一棟収益

その他建物(一棟)

その他建物(一棟)

  • 新着
  • オーナーチェンジ
1億9,800万円

大阪市淀川区十八条3丁目一棟収益

想定利回り
2.51 %

■賃貸+月極駐車場・現況賃貸中のオーナーチェンジ物件です

大阪府大阪市淀川区十八条3丁目

建物面積314.60m2(約95.16坪)・土地面積493.49m2(約149.28坪)※公簿・1989年04月築

■賃貸+月極駐車場・現況賃貸中のオーナーチェンジ物件です

大阪府大阪市淀川区十八条3丁目

建物面積314.60m2(約95.16坪)・土地面積493.49m2(約149.28坪)※公簿・1989年04月築

物件のポイント

本物件は投資向け物件です

想定利回り
2.51 %
想定利回り
2.51 %
年間想定賃料等
498万12
月額賃料等
41万5,001
現在の賃貸状況
一部賃貸中
オーナーチェンジ
投資用・事業用不動産について
  • 賃料等の収入や利回りは、将来にわたり、確実に得られることを保証するものではありません。
  • 賃料等は、賃貸中のものについては現在の賃料等で、新築および空室または一部空き有のものについては、周辺の賃料相場に基づき満室となった場合を想定して表示しています。
  • 利回りは、現況または満室想定時の賃料等の収入に基づく単純利回り(賃料等の年間合計金額÷ 販売価格(税込)×100%)で、公租公課や維持管理費等の必要経費は控除されていません。

物件の特徴

  • 容積率100%以上
    容積率100%以上
  • 前面道路幅員6m以上
    前面道路幅員6m以上
  • 第一種住居地域
    第一種住居地域
  • セットバックなし・済み
    セットバックなし・済み
  • 土地面積100坪以上
    土地面積100坪以上
  • 前面道路公道
    前面道路公道
  • 容積率100%以上
    容積率100%以上
  • 前面道路幅員6m以上
    前面道路幅員6m以上
  • 第一種住居地域
    第一種住居地域
  • セットバックなし・済み
    セットバックなし・済み
  • 土地面積100坪以上
    土地面積100坪以上
  • 前面道路公道
    前面道路公道
  • セットバックなし・済み
  • 土地面積100坪以上
    リフォーム

    --

    立地・周辺環境

    容積率100%以上|前面道路幅員6m以上|第一種住居地域|防火・準防火|前面道路公道

    セールスポイント

    ■阪急宝塚線「三国」駅徒歩15分
    ■大阪メトロ御堂筋線「東三国」駅徒歩18分
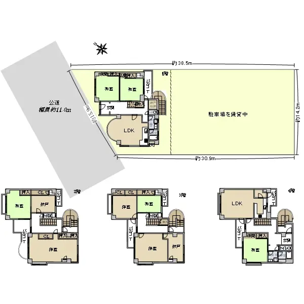
    ■土地面積:493.49u(約149.28坪)
    ■前面道路幅員:約11.0m


    ●満室想定賃料月額:415001円
    ●満室想定利回り:2.51%
    ●居住部分2軒中1軒賃貸中
    ●駐車場11区画中10区画賃貸中
    (2025年10月11日現在)

    担当からのひとこと

    『大阪市淀川区十八条3丁目一棟収益』のページをご覧いただきまして誠にありがとうございます。

    本物件は、阪急宝塚線「三国」駅徒歩15分、大阪メトロ御堂筋線「東三国」駅徒歩18分の立地ございます。

    物件のご検討については、写真や図面だけでなく、是非現地をご覧になることをお勧め致します。

    現地をご覧頂くことで、周辺環境や物件の状態が明確にご理解頂けるとともに、

    案内時に、プロの目から見た長所・短所をご説明差し上げることもできます。

    現地見学や資料請求等はお気軽に担当までご連絡ください。

    フリーコール:0120−317−713

    担当:加茂

    --

    物件詳細

    物件名 大阪市淀川区十八条3丁目一棟収益
    物件番号 35734006
    所在地 大阪府大阪市淀川区十八条3丁目
    価格
    1億9,800万円
    交通 阪急宝塚線三国」駅徒歩15 分
    大阪メトロ御堂筋線東三国」駅徒歩18 分
    建物面積 314.60m2(約95.16坪)
    土地面積 493.49m2(約149.28坪)※公簿
    階数
    構造
    地上4階建て
    鉄筋コンクリート造
    築年月 1989年04月
    地目
    地勢
    宅地
    平坦
    総住戸数 2 戸
    接道状況 一方道路・北西11m(公道)接面15.9m
    建ぺい率 80%
    容積率 200%
    都市計画 市街化区域
    用途地域 第1種住居地域
    地域・地区 防火地域
    施工会社 株式会社紙谷工務店
    引渡時期 相談
    現況 居住中
    駐車場 無し
    土地権利 所有権
    取引態様 仲介
    国土法 届出不要

    この情報は2025年10月12日当社物件システムのデータにもとづくものであり、次回更新予定日は2025年10月26日です。