• 新着
  • オーナーチェンジ

本物件は投資向け物件です

想定利回り
6.95 %
年間想定賃料等
96万
月額賃料等
8万
現在の賃貸状況
全部賃貸中
オーナーチェンジ

投資用不動産

1,380万円

太白区金剛沢1丁目戸建

一戸建て

一戸建て

  • 新着
  • オーナーチェンジ
1,380万円

太白区金剛沢1丁目戸建

想定利回り
6.95 %

オーナーチェンジ物件・現況利回り6.95%(2025年11月29日現在)

宮城県仙台市太白区金剛沢1丁目

建物面積115.74m2(約35.01坪)・土地面積188.77m2(約57.10坪)※公簿・1980年11月築

オーナーチェンジ物件・現況利回り6.95%(2025年11月29日現在)

宮城県仙台市太白区金剛沢1丁目

建物面積115.74m2(約35.01坪)・土地面積188.77m2(約57.10坪)※公簿・1980年11月築

物件のポイント

本物件は投資向け物件です

想定利回り
6.95 %
想定利回り
6.95 %
年間想定賃料等
96万
月額賃料等
8万
現在の賃貸状況
全部賃貸中
オーナーチェンジ
投資用・事業用不動産について
  • 賃料等の収入や利回りは、将来にわたり、確実に得られることを保証するものではありません。
  • 賃料等は、賃貸中のものについては現在の賃料等で、新築および空室または一部空き有のものについては、周辺の賃料相場に基づき満室となった場合を想定して表示しています。
  • 利回りは、現況または満室想定時の賃料等の収入に基づく単純利回り(賃料等の年間合計金額÷ 販売価格(税込))で、公租公課や維持管理費等の必要経費は控除されていません。

物件の特徴

  • 南道路(南東・南西含む)
    南道路(南東・南西含む)
  • 低層住居専用地域
    低層住居専用地域
  • 駐車場有
    駐車場有
  • 前面道路幅員6m以上
    前面道路幅員6m以上
  • セットバックなし・済み
    セットバックなし・済み
  • 土地面積50坪以上
    土地面積50坪以上
  • 前面道路公道
    前面道路公道
  • 南道路(南東・南西含む)
    南道路(南東・南西含む)
  • 低層住居専用地域
    低層住居専用地域
  • 駐車場有
    駐車場有
  • 前面道路幅員6m以上
    前面道路幅員6m以上
  • セットバックなし・済み
    セットバックなし・済み
  • 土地面積50坪以上
    土地面積50坪以上
  • 前面道路公道
    前面道路公道
  • 駐車場有
  • セットバックなし・済み
  • 土地面積50坪以上
    リフォーム

    --

    立地・周辺環境

    南道路(南東・南西含む)|低層住居専用地域|前面道路幅員6m以上|前面道路公道

    セールスポイント

    ●年間賃料収入:960,000円/年
     現況利回り :6.95%
    (いずれも2025年11月29日現在)

    ○現況:賃貸中

    ●土地面積:188.77u
     建物面積:115.74u

    ○南西側・公道接道
     前面道路幅員:約6.1m

    ●閑静な住宅地に存する
     第一種低層住居専用地域

    【周辺環境】
    ・ヨークベニマル仙台西の平店まで約1190m(徒歩15分)
    ・ウジエスーパー西多賀店まで約1260m(徒歩16分)
    ・ファミリーマート仙台西の平店まで約860m(徒歩11分)
    ・ウエルシア仙台八木山南店まで約1280m(徒歩16分)
    ・七十七銀行西多賀支店まで約1280m(徒歩16分)
    ・仙台西ノ平郵便局まで約580m(徒歩8分)

    担当からのひとこと

    太白区金剛沢にございます
    オーナーチェンジ物件のご紹介になります。

    本物件は現在賃貸中となっており、

    現況利回り6.95%となっております。
    (2025年11月29日現在)

    公道接道の整形地となっており、
    南西側に接する道路は幅員約6.1mのほか、
    土地面積:188.77u
    建物面積:115.74uとなっております。

    周辺は閑静な住宅街が広がっております。
    物件に関するお問い合わせや資料請求については
    担当:佐竹までご連絡ください。
    お問い合わせお待ちしております。

    ・ヨークベニマル仙台西の平店 徒歩15分(約1190m)
    ・ファミリーマート仙台西の平店 徒歩11分(約860m)
    ・ウエルシア仙台八木山南店 徒歩16分(約1280m)
    ・七十七銀行西多賀支店 徒歩16分(約1280m)
    ・仙台西ノ平郵便局 徒歩8分(約580m)

    物件詳細

    物件名 太白区金剛沢1丁目戸建
    物件番号 95632068
    所在地 宮城県仙台市太白区金剛沢1丁目
    価格
    1,380万円
    交通 仙台市地下鉄東西線八木山動物公園」駅バス11 分「西の平一丁目・金剛沢小学校前」バス停徒歩7 分
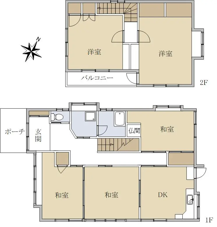
    間取り 5DK
    建物面積 115.74m2(約35.01坪)
    土地面積 188.77m2(約57.10坪)※公簿
    階数
    構造
    地上2階建て
    木造
    築年月 1980年11月
    地目
    地勢
    宅地
    平坦
    接道状況 一方道路・南西6.1m(公道)接面11.9m
    建ぺい率 50%
    容積率 80%
    都市計画 市街化区域
    用途地域 第1種低層住居専用地域
    地域・地区 高度地区
    引渡時期 相談
    現況 賃貸中
    駐車場 有り/台数1台
    土地権利 所有権
    取引態様 仲介
    国土法 届出不要
    備考
    • ・駐車場:車種による
    • ・DKおよび各居室の帖数は不明です

    この情報は2025年12月01日当社物件システムのデータにもとづくものであり、次回更新予定日は2025年12月15日です。