• 新着

本物件は投資向け物件です

想定利回り
6.17 %
年間想定賃料等
998万4,000
月額賃料等
83万2,000
現在の賃貸状況
空き物件

投資用不動産

1億6,161万円

横浜市神奈川区子安台1丁目新築アパート

アパート

アパート

  • 新着
1億6,161万円

横浜市神奈川区子安台1丁目新築アパート

想定利回り
6.17 %

新築アパート/想定利回り6.17%/2路線利用可能/全戸40u以上

神奈川県横浜市神奈川区子安台1丁目

建物面積270.80m2(約81.91坪)・土地面積186.53m2(約56.42坪)※公簿/セットバック:1.49m2含む・2026年03月築

新築アパート/想定利回り6.17%/2路線利用可能/全戸40u以上

神奈川県横浜市神奈川区子安台1丁目

建物面積270.80m2(約81.91坪)・土地面積186.53m2(約56.42坪)※公簿/セットバック:1.49m2含む・2026年03月築

物件のポイント

本物件は投資向け物件です

想定利回り
6.17 %
想定利回り
6.17 %
年間想定賃料等
998万4,000
月額賃料等
83万2,000
現在の賃貸状況
空き物件
投資用・事業用不動産について
  • 賃料等の収入や利回りは、将来にわたり、確実に得られることを保証するものではありません。
  • 賃料等は、賃貸中のものについては現在の賃料等で、新築および空室または一部空き有のものについては、周辺の賃料相場に基づき満室となった場合を想定して表示しています。
  • 利回りは、現況または満室想定時の賃料等の収入に基づく単純利回り(賃料等の年間合計金額÷ 販売価格(税込))で、公租公課や維持管理費等の必要経費は控除されていません。

物件の特徴

  • 南道路(南東・南西含む)
    南道路(南東・南西含む)
  • 容積率100%以上
    容積率100%以上
  • スーパーまで徒歩10分以内
    スーパーまで徒歩10分以内
  • 公園まで徒歩5分以内
    公園まで徒歩5分以内
  • 新築
    新築
  • 第二種中高層住居専用地域
    第二種中高層住居専用地域
  • 土地面積50坪以上
    土地面積50坪以上
  • 前面道路公道
    前面道路公道
  • 南道路(南東・南西含む)
    南道路(南東・南西含む)
  • 容積率100%以上
    容積率100%以上
  • スーパーまで徒歩10分以内
    スーパーまで徒歩10分以内
  • 公園まで徒歩5分以内
    公園まで徒歩5分以内
  • 新築
    新築
  • 第二種中高層住居専用地域
    第二種中高層住居専用地域
  • 土地面積50坪以上
    土地面積50坪以上
  • 前面道路公道
    前面道路公道
  • 新築
  • 土地面積50坪以上
    リフォーム

    --

    立地・周辺環境

    南道路(南東・南西含む)|容積率100%以上|スーパーまで徒歩10分以内|公園まで徒歩5分以内|第二種中高層住居専用地域|防火・準防火|前面道路公道

    セールスポイント

    〜JR京浜東北線・京浜急行電鉄本線利用/木造新築アパート〜

    ◎2路線利用可能
    ・JR京浜東北線「新子安」駅まで徒歩11分

    ・京浜急行電鉄本線「京急新子安」駅まで徒歩11分

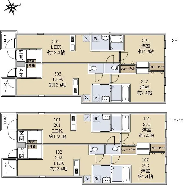
    ◎間取り:1LDK×6世帯

    ◎全戸40u以上

    ◎各住戸トイレ・バス別、浴室乾燥機付き

    ◎玄関には電子錠を採用

    ◎防音仕様です

    担当からのひとこと

    本物件は、JR京浜東北線「新子安」駅徒歩11分および京浜急行電鉄本線「京急新子安」駅徒歩11分の立地に存する新
    築アパートです。
    2026年3月中旬完成予定です。

    物件に関する資料請求・現地ご見学希望は・・・
    【フリーコール:0120−170−601(携帯電話からも通話可能)】
    横浜営業センター 担当:岡田 雅美(おかだ まさみ)までお気軽にお問い合わせください。
    金融機関のご相談、ご紹介も承ります。
    お客様からのお問い合わせ、心よりお待ちしております

    ・オーケー新子安店 徒歩6分(約480m)
    ・セブンイレブン横浜新子安1丁目店 徒歩9分(約650m)
    ・ローソン横浜新子安店 徒歩8分(約620m)
    ・そうてつローゼンオルト新子安店 徒歩11分(約830m)
    ・子安台第2公園 徒歩1分(約80m)

    物件詳細

    物件名 横浜市神奈川区子安台1丁目新築アパート
    物件番号 A5244017
    所在地 神奈川県横浜市神奈川区子安台1丁目
    価格
    1億6,161万円
    交通 京浜東北・根岸線新子安」駅徒歩11 分
    京急本線京急新子安」駅徒歩11 分
    建物面積 270.80m2(約81.91坪)
    土地面積 186.53m2(約56.42坪)※公簿/セットバック:1.49m2含む
    階数
    構造
    地上3階建て
    木造
    築年月 2026年03月
    地目
    地勢
    宅地
    高台
    総住戸数 6 戸
    各住戸の専有面積 最小42.67m2〜最大46.19m2
    接道状況 一方道路・南西3m(公道)接面8.3m
    建ぺい率 60%
    容積率 150%
    都市計画 市街化区域
    用途地域 第2種中高層住居専用地域
    地域・地区 準防火地域
    新築時売主 都市総合企画
    施工会社 黒澤建設
    引渡時期 2026年03月下旬
    現況 未完成
    駐車場 無し
    土地権利 所有権
    取引態様 仲介
    国土法 届出不要
    建築確認番号 第25KAK建確02138号
    備考
    • ・間取り:1LDK×6世帯
    • ・販売価格には水道加入金57.75万円を含みます
    • ・販売価格は、システム上1億6161万円となっておりますが、正確には161,609,500円です

    この情報は2025年12月11日当社物件システムのデータにもとづくものであり、次回更新予定日は2025年12月25日です。