• 新着

本物件は投資向け物件です

想定利回り
6.17 %
年間想定賃料等
925万2,000
月額賃料等
77万1,000
現在の賃貸状況
空き物件

投資用不動産

1億4,981万円

横浜市瀬谷区橋戸1丁目新築アパート

アパート

アパート

  • 新着
1億4,981万円

横浜市瀬谷区橋戸1丁目新築アパート

想定利回り
6.17 %

新築アパート/想定利回り6.17%/相鉄「瀬谷」駅徒歩9分/全戸35u以上

神奈川県横浜市瀬谷区橋戸1丁目

建物面積260.71m2(約78.86坪)・土地面積159.79m2(約48.33坪)※公簿・2026年02月築

新築アパート/想定利回り6.17%/相鉄「瀬谷」駅徒歩9分/全戸35u以上

神奈川県横浜市瀬谷区橋戸1丁目

建物面積260.71m2(約78.86坪)・土地面積159.79m2(約48.33坪)※公簿・2026年02月築

物件のポイント

本物件は投資向け物件です

想定利回り
6.17 %
想定利回り
6.17 %
年間想定賃料等
925万2,000
月額賃料等
77万1,000
現在の賃貸状況
空き物件
投資用・事業用不動産について
  • 賃料等の収入や利回りは、将来にわたり、確実に得られることを保証するものではありません。
  • 賃料等は、賃貸中のものについては現在の賃料等で、新築および空室または一部空き有のものについては、周辺の賃料相場に基づき満室となった場合を想定して表示しています。
  • 利回りは、現況または満室想定時の賃料等の収入に基づく単純利回り(賃料等の年間合計金額÷ 販売価格(税込))で、公租公課や維持管理費等の必要経費は控除されていません。

物件の特徴

  • スーパーまで徒歩10分以内
    スーパーまで徒歩10分以内
  • コンビニまで徒歩5分以内
    コンビニまで徒歩5分以内
  • 新築
    新築
  • 第一種住居地域
    第一種住居地域
  • セットバックなし・済み
    セットバックなし・済み
  • 土地面積30坪以上
    土地面積30坪以上
  • 前面道路公道
    前面道路公道
  • スーパーまで徒歩10分以内
    スーパーまで徒歩10分以内
  • コンビニまで徒歩5分以内
    コンビニまで徒歩5分以内
  • 新築
    新築
  • 第一種住居地域
    第一種住居地域
  • セットバックなし・済み
    セットバックなし・済み
  • 土地面積30坪以上
    土地面積30坪以上
  • 前面道路公道
    前面道路公道
  • 新築
  • セットバックなし・済み
  • 土地面積30坪以上
    リフォーム

    --

    立地・周辺環境

    スーパーまで徒歩10分以内|コンビニまで徒歩5分以内|第一種住居地域|防火・準防火|前面道路公道

    セールスポイント

    〜相模鉄道本線利用/木造新築アパート〜

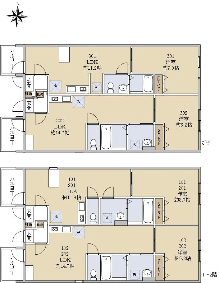
    ◎間取り:1LDK×6世帯

    ◎全戸35u以上、40u以上のお部屋あり!

    ◎各住戸トイレ・バス別、浴室乾燥機付き

    ◎玄関には電子錠を採用

    ◎防音仕様です

    担当からのひとこと

    本物件は、相模鉄道本線「瀬谷」駅徒歩9分の好立地に存する新築アパートです。
    2026年2月下旬完成予定です。

    物件に関する資料請求・現地ご見学希望は、担当までお気軽にお問い合わせください。

    金融機関のご相談、ご紹介も承ります。
    お客様からのお問い合わせ、心よりお待ちしております

    ・ローソン瀬谷4丁目店 徒歩2分(約130m)
    ・イオンスタイル横浜瀬谷 徒歩10分(約750m)
    ・クリエイトS・D瀬谷駅南口店 徒歩10分(約750m)
    ・瀬谷郵便局 徒歩1分(約80m)
    ・ロピア瀬谷橋戸店 徒歩7分(約560m)

    物件詳細

    物件名 横浜市瀬谷区橋戸1丁目新築アパート
    物件番号 A5244020
    所在地 神奈川県横浜市瀬谷区橋戸1丁目
    価格
    1億4,981万円
    交通 相鉄本線瀬谷」駅徒歩9 分
    建物面積 260.71m2(約78.86坪)
    土地面積 159.79m2(約48.33坪)※公簿
    階数
    構造
    地上3階建て
    木造
    築年月 2026年02月
    地目
    地勢
    宅地
    平坦
    総住戸数 6 戸
    各住戸の専有面積 最小37.43m2〜最大44.46m2
    接道状況 一方道路・西4m(公道)接面8.7m
    建ぺい率 70%
    容積率 160% ※容積率は前面道路幅員による制限数値
    都市計画 市街化区域
    用途地域 第1種住居地域
    地域・地区 準防火地域
    引渡時期 2026年03月上旬
    現況 未完成
    駐車場 無し
    土地権利 所有権
    取引態様 仲介
    国土法 届出不要
    建築確認番号 第25KAK建確02404号
    備考
    • ・間取り:1LDK×6世帯
    • ・販売価格には、水道加入金57.75万円を含みます。また、販売価格はシステム上1億4981万円になっていますが、正しくは149,802,500円です。
    • ・建ぺい率は、準防火地域における準防火建築物であるため10%緩和されて、60%→70%になっています

    この情報は2026年02月02日当社物件システムのデータにもとづくものであり、次回更新予定日は2026年02月16日です。