土地面積
176.71 m2
(約53.45坪)※公簿/他に私道負担:25.12m2あり
建ぺい率
60 %
容積率
100 %

土地

3,980万円

向日市上植野町野添土地(更地)

土地

「庭も駐車場も、余裕を叶える敷地」

京都府向日市上植野町野添

土地面積176.71m2(約53.45坪)※公簿/他に私道負担:25.12m2あり・建ぺい率60%・容積率100%

借入希望金額や金利を入力すると
返済計画を組み立てることができます。

ローンシミュレーション結果

毎月返済額
ボーナス月返済額
年間返済額
月々のお支払い

(ボーナス月お支払い額 ¥円)
ローン
  • 別途月額費用がかかる場合があります。詳しくは営業担当にお問い合わせください。

住宅ローンの詳細は三井住友銀行 のホームページをご覧ください。

  • このシミュレーションは、借入れを保証するものではありません。「免責事項」をご確認の上、ご利用ください。
  • ボーナス返済額の上限は、金融機関によって異なります。
  • ご購入にあたっては別途諸費用等が必要です。詳しくは営業担当にお問合せください。

金利:2025年12月時点のものです。

物件のポイント

物件の特徴

  • 都市ガス
    都市ガス
  • 更地
    更地
  • 低層住居専用地域
    低層住居専用地域
  • 容積率100%以上
    容積率100%以上
  • 建築条件なし
    建築条件なし
  • 土地面積50坪以上
    土地面積50坪以上
  • 前面道路幅員4.0m以上
    前面道路幅員4.0m以上
  • 都市ガス
    都市ガス
  • 更地
    更地
  • 低層住居専用地域
    低層住居専用地域
  • 容積率100%以上
    容積率100%以上
  • 建築条件なし
    建築条件なし
  • 土地面積50坪以上
    土地面積50坪以上
  • 前面道路幅員4.0m以上
    前面道路幅員4.0m以上
  • 都市ガス
  • 上水道
  • 下水道
  • 更地
  • 建築条件なし
  • 土地面積50坪以上
    立地・周辺環境

    低層住居専用地域|容積率100%以上|本下水

    セールスポイント

    ☆建築条件付土地ではございません(お好きなハウスメーカーで建築可能)
    ☆阪急京都線「西向日」駅徒歩7分
    ☆閑静な住宅街
    ☆更地

    ライフインフォメーション
    ・ファミリーマート梶友西向日駅前店 約480m 徒歩6分
    ・業務スーパー西向日店 約1070m 徒歩14分
    ・北小路東公園 約250m 徒歩4分
    ・マツモト長岡京店 約1920m 徒歩24分
    ・第5向陽小学校 約680m 徒歩9分
    ・勝山中学校 約890m 徒歩12分

    担当からのひとこと

    この度は【向日市上植野町野添土地】のページをご覧いただき誠にありがとうございます。

    本物件は阪急京都線「西向日」駅徒歩7分の位置にございます。

    建築条件付土地ではございませんので、お好みのハウスメーカー・工務店にて建築していただけます。

    53.45坪のゆとりある敷地には駐車スペースやお庭スペースも十分に確保できます。

    子育て世帯から二世帯住宅まで幅広いプランに対応可能な本物件を是非ご覧下さい!!

    物件の質問等ございましたらお気軽に担当の木下までご連絡くださいませ。
    皆様からのお問合せを、心よりお待ちしております。

    担当:木下(きのした)
    フリーコール:0120-720-073

    --

    物件詳細

    物件名 向日市上植野町野添土地(更地)
    物件番号 35571032
    所在地 京都府向日市上植野町野添
    価格
    3,980万円
    交通 阪急京都線西向日」駅徒歩7 分
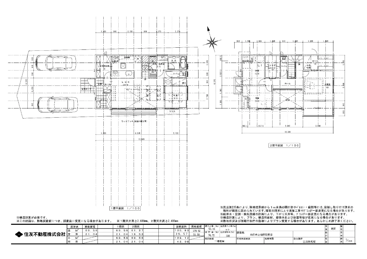
    土地面積 176.71m2(約53.45坪)※公簿/他に私道負担:25.12m2あり
    地目
    地勢
    宅地
    平坦
    接道状況 一方道路・西5.8m(私道)接面8.3m
    建ぺい率 60%
    容積率 100%
    都市計画 市街化区域
    用途地域 第1種低層住居専用地域
    地域・地区 建築基準法第22条指定区域 
    引渡時期 相談
    現況 更地
    土地権利 所有権
    建築条件
    取引態様 仲介
    国土法 届出不要
    備考
    • ・更地渡し

    この情報は2025年12月15日当社物件システムのデータにもとづくものであり、次回更新予定日は2025年12月29日です。