買う雑色駅の土地を探す

現在の検索条件

  • 検索条件を保存
  • 登録した検索条件
京急本線
検索条件 価格 : 下限なし〜上限なし 土地面積 : 下限なし 〜 上限なし 駅徒歩 : 15分以内 検索条件を変更
こだわり条件 指定なし こだわり条件を変更

2件中1〜2件を表示

  • 画像を大きく表示
  • リストで表示

表示件数

並び替え

チェックした物件をまとめて

資料請求・お問い合わせ

駅徒歩7分の閑静な住宅地

  • 駅徒歩10分以内
  • 南道路(南西・南東含む)に接道
  • 角地
  • 建築条件がない
  • 土地面積が100m?以上
フロア画像を拡大する
画像枚数10枚
価格
1億800万円
所在地
東京都大田区仲六郷1丁目
交通

京急本線雑色」駅徒歩7分

京浜東北・根岸線蒲田」駅徒歩15分

土地面積
141.22m²
建ぺい率 / 容積率
60% / 160%
  • 気になるリストへ
  • 比較リストへ

資料請求・お問い合わせ

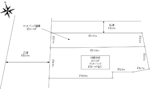
◇大田区東六郷3丁目土地 ◇建築条件付土地ではございません

  • 駅徒歩10分以内
  • 角地
  • 建築条件がない
フロア画像を拡大する
画像枚数17枚
価格
4,490万円
所在地
東京都大田区東六郷3丁目
交通

京急本線六郷土手」駅徒歩9分

京急本線雑色」駅徒歩10分

土地面積
99.17m²
建ぺい率 / 容積率
60% / 300%
  • 気になるリストへ
  • 比較リストへ

資料請求・お問い合わせ

チェックした物件をまとめて

資料請求・お問い合わせ

新着物件をメールでお知らせします

検索条件を登録すれば、その条件に合う新着物件をパソコン・携帯メール宛にお知らせします。
まずは、右の「検索条件登録」ボタンから、現在の検索条件を登録してください。

検索条件登録

  • 新着1週間以内に登録された物件
  • 価格更新1週間以内に価格が更新された物件
  • おすすめ物件営業センターのおすすめ物件
  • 駅徒歩10分以内駅徒歩10分以内
  • 南道路(南西・南東含む)南道路(南西・南東含む)に接道
  • 角地角地
  • 低層住居専用地域低層住居専用地域に立地
  • 建築条件なし建築条件がない
  • 土地面積100m²以上土地面積が100m²以上
  • 更地(引渡時も含む)更地(引渡時も含む)
  • 新築新築物件
  • 【現地見学】オープンランド開催オープンランド・予約制内覧会
  • 予告広告販売開始まで契約または予約の申し込みは出来ません