• 新着
  • 投資向け
建物面積
861.00 m2
(約260.45坪)
土地面積
388.00 m2
(約117.37坪)※公簿
築年月
1998年04月

事業・投資用不動産

11億円

中野区本町2丁目1棟ビル

ビル(一棟)

ビル(一棟)

  • 新着
  • 投資向け
11億円

中野区本町2丁目1棟ビル

◆鹿島建設施工 ◆建築士:長島孝一氏設計 ◆地下駐車場有

東京都中野区本町2丁目

建物面積861.00m2(約260.45坪)・土地面積388.00m2(約117.37坪)※公簿・1998年04月築

◆鹿島建設施工 ◆建築士:長島孝一氏設計 ◆地下駐車場有

東京都中野区本町2丁目

物件のポイント

本物件は投資向け物件です

現在の賃貸状況
空き物件
投資用・事業用不動産について
  • 賃料等の収入や利回りは、将来にわたり、確実に得られることを保証するものではありません。
  • 賃料等は、賃貸中のものについては現在の賃料等で、新築および空室または一部空き有のものについては、周辺の賃料相場に基づき満室となった場合を想定して表示しています。
  • 利回りは、現況または満室想定時の賃料等の収入に基づく単純利回り(賃料等の年間合計金額÷ 販売価格(税込))で、公租公課や維持管理費等の必要経費は控除されていません。

物件の特徴

  • 容積率100%以上
    容積率100%以上
  • 駐車場有
    駐車場有
  • 第一種中高層住居専用地域
    第一種中高層住居専用地域
  • 土地面積100坪以上
    土地面積100坪以上
  • 前面道路公道
    前面道路公道
  • 建物面積150u以上
    建物面積150u以上
  • 容積率100%以上
    容積率100%以上
  • 駐車場有
    駐車場有
  • 第一種中高層住居専用地域
    第一種中高層住居専用地域
  • 土地面積100坪以上
    土地面積100坪以上
  • 前面道路公道
    前面道路公道
  • 建物面積150u以上
    建物面積150u以上
  • 駐車場有
  • 土地面積100坪以上
  • 建物面積150u以上
    リフォーム

    --

    立地・周辺環境

    容積率100%以上|第一種中高層住居専用地域|前面道路公道

    セールスポイント

    ◆邸宅・事務所・芸能プロダクション・研修施設等の様々な用途で利用可能
    ◆建物内の窓にはステンドグラスが使用されております。
    ◆坪庭や応接室もありゆとりのある空間となっております。
    ◆2路線2駅利用可能

    ◆吹き抜けや窓が複数あり採光が取れる建物

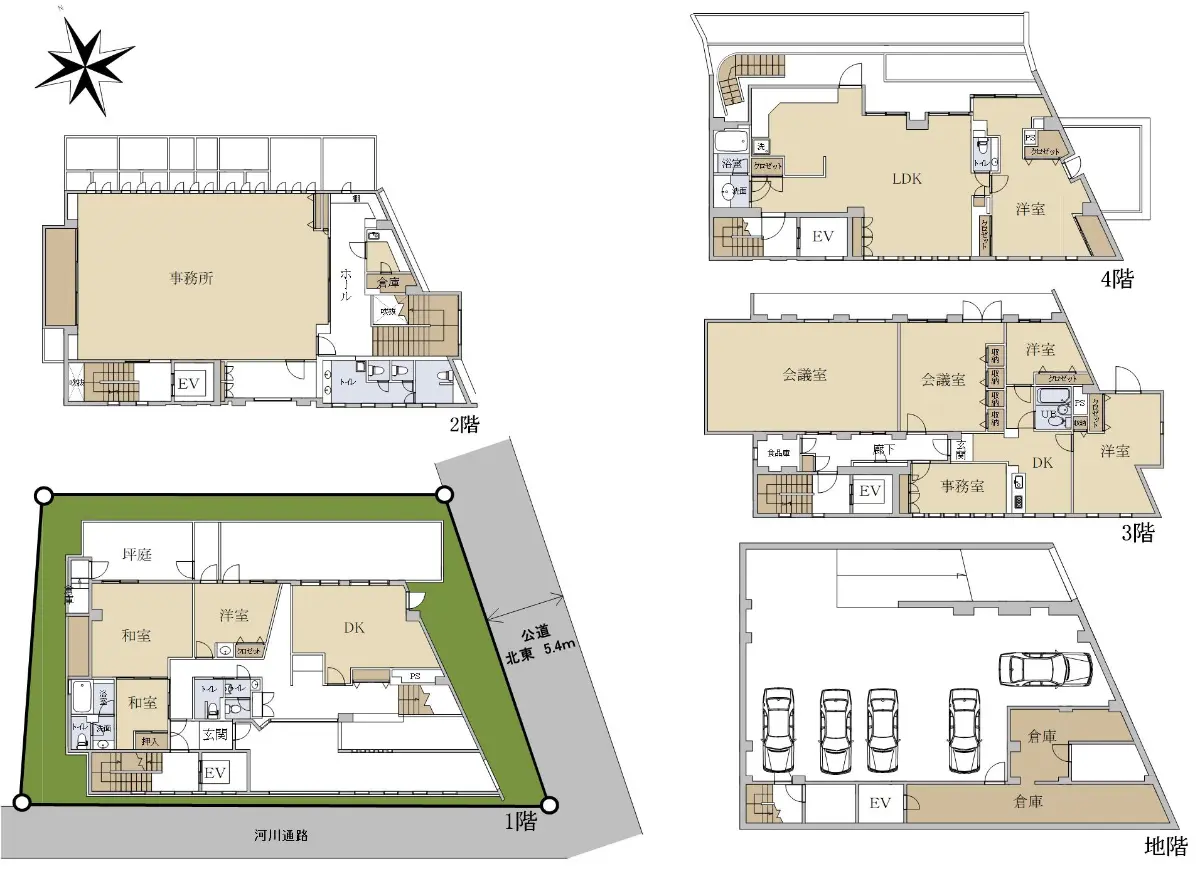
    間取り:地下:駐車場・1階:3DK・2階:礼拝堂+事務室・3階:2K+会議室+事務室・4階:1LDK

    担当からのひとこと

    この度「中野区本町2丁目1棟ビル」のページをご覧頂き、誠にありがとうございます。
    本物件は1998年に竣工した鉄骨鉄筋コンクリート造4階地下1階のビルです。
    多目的に利用可能となっております。

    物件をご検討されている方は、図面や写真だけでなく是非現地まで足をお運び頂きご覧頂ければと思います。
    お客様専用フリーコールは、0120-994-662になります。
    詳細は、担当の「桑畑」までお問い合わせ下さい。

    --

    物件詳細

    物件名 中野区本町2丁目1棟ビル
    物件番号 152H4007
    所在地 東京都中野区本町2丁目
    価格
    11億円
    交通 東京メトロ方南支線中野新橋」駅徒歩9 分
    都営大江戸線中野坂上」駅徒歩7 分
    東京メトロ丸ノ内線中野坂上」駅徒歩7 分
    間取り 1LDK
    建物面積 861.00m2(約260.45坪)
    土地面積 388.00m2(約117.37坪)※公簿
    階数
    構造
    地上4階地下1階建て
    鉄筋コンクリート造
    築年月 1998年04月
    地目
    地勢
    宅地
    平坦
    接道状況 一方道路・北東5.4m(公道)接面15.5m
    建ぺい率 60%
    容積率 200%
    都市計画 市街化区域
    用途地域 第1種中高層住居専用地域
    施工会社 鹿島建設
    引渡時期 相談
    現況 居住中
    駐車場 有り/自走/屋根あり
    土地権利 所有権
    取引態様 仲介
    国土法 届出不要
    備考
    • ・間取りは1LDKとなっておりますが正しくは地下:駐車場・1階:3DK・2階:礼拝堂+事務室・3階:2K+会議室+事務室・4階:1LDK

    この情報は2025年11月13日当社物件システムのデータにもとづくものであり、次回更新予定日は2025年11月27日です。