• 新着
  • 空き物件
建物面積
330.78 m2
(約100.06坪)
土地面積
349.18 m2
(約105.62坪)/他に私道負担:39.10m2あり
築年月
2010年03月

事業用不動産

1億8,000万円

西淀川区佃一丁目老人ホーム

その他建物(一棟)

その他建物(一棟)

  • 新着
  • 空き物件
1億8,000万円

西淀川区佃一丁目老人ホーム

■旧老人ホーム ■2010年3月築 ■鉄骨造陸屋根3階建

大阪府大阪市西淀川区佃1丁目

建物面積330.78m2(約100.06坪)・土地面積349.18m2(約105.62坪)/他に私道負担:39.10m2あり・2010年03月築

■旧老人ホーム ■2010年3月築 ■鉄骨造陸屋根3階建

大阪府大阪市西淀川区佃1丁目

物件のポイント

物件の特徴

  • 容積率100%以上
    容積率100%以上
  • 駐車場有
    駐車場有
  • 第一種住居地域
    第一種住居地域
  • セットバックなし・済み
    セットバックなし・済み
  • 土地面積100坪以上
    土地面積100坪以上
  • 前面道路公道
    前面道路公道
  • 容積率100%以上
    容積率100%以上
  • 駐車場有
    駐車場有
  • 第一種住居地域
    第一種住居地域
  • セットバックなし・済み
    セットバックなし・済み
  • 土地面積100坪以上
    土地面積100坪以上
  • 前面道路公道
    前面道路公道
  • 駐車場有
  • セットバックなし・済み
  • 土地面積100坪以上
    リフォーム

    --

    立地・周辺環境

    容積率100%以上|第一種住居地域|防火・準防火|前面道路公道

    セールスポイント

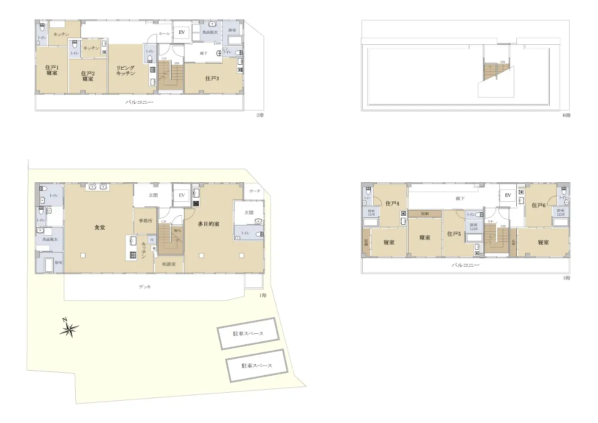
    建物面積:1階130.98u/2階99.90u/3階99.90u
    土地面積:349.18u(有効面積)

    ◆旧老人ホーム

    ◆2010年3月築
    ◆検査済証有り

    ■施工会社:株式会社鍛冶田工務店

    担当からのひとこと

    この度は、アクセス頂き誠に有難うございます。

    本物件は、大阪市西淀川区佃一丁目に建つ、鉄骨造3階建、2010年3月建築の旧老人ホームです。

    阪神本線「千舟」駅から徒歩10分の距離にございます。

    ご興味がありましたら担当 すぎやま まで是非お問合せください。ご連絡をお待ちしております。

    ・セブンイレブン大阪佃一丁目店 徒歩5分(約368m)
    ・ローソン佃一丁目店 徒歩5分(約388m)
    ・西淀川佃郵便局 徒歩7分(約510m)
    ・大阪労働衛生センター第一病院 徒歩20分(約1600m)
    ・東佃公園 徒歩3分(約161m)

    物件詳細

    物件名 西淀川区佃一丁目老人ホーム
    物件番号 35624023
    所在地 大阪府大阪市西淀川区佃1丁目
    価格
    1億8,000万円
    交通 阪神本線千船」駅徒歩10 分
    建物面積 330.78m2(約100.06坪)
    土地面積 349.18m2(約105.62坪)/他に私道負担:39.10m2あり
    階数
    構造
    地上3階建て
    鉄骨造
    築年月 2010年03月
    地目
    地勢
    宅地
    平坦
    接道状況 二方道路・北4m(公道)接面20.4m/東4m(公道)接面18.6m
    建ぺい率 80%
    容積率 200%
    都市計画 市街化区域
    用途地域 第1種住居地域
    地域・地区 準防火地域
    施工会社 株式会社鍛冶田工務店
    引渡時期 相談
    現況 空家
    駐車場 有り
    土地権利 所有権
    取引態様 仲介
    国土法 届出不要
    備考
    • ・旧老人ホーム

    この情報は2026年03月06日当社物件システムのデータにもとづくものであり、次回更新予定日は2026年03月20日です。