建物面積
147.86 m2
(約44.72坪)
間取り
4LDK
築年月
1998年07月

中古一戸建て

4,480万円

町田市三輪緑山4丁目戸建

中古一戸建て

お気に入り 2

【野村ホーム施工物件】 南・東の角地のため陽当たり良好です。

東京都町田市三輪緑山4丁目

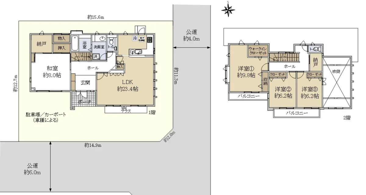
建物面積147.86m2(約44.72坪)・間取り4LDK・1998年07月築

借入希望金額や金利を入力すると
返済計画を組み立てることができます。

ローンシミュレーション結果

毎月返済額
ボーナス月返済額
年間返済額
月々のお支払い

(ボーナス月お支払い額 ¥円)
ローン
  • 別途月額費用がかかる場合があります。詳しくは営業担当にお問い合わせください。

住宅ローンの詳細は三井住友銀行 のホームページをご覧ください。

  • このシミュレーションは、借入れを保証するものではありません。「免責事項」をご確認の上、ご利用ください。
  • ボーナス返済額の上限は、金融機関によって異なります。
  • ご購入にあたっては別途諸費用等が必要です。詳しくは営業担当にお問合せください。

金利:2025年10月時点のものです。

物件のポイント

物件の特徴

  • 都市ガス
    都市ガス
  • 床暖房
    床暖房
  • 追焚機能
    追焚機能
  • トイレ2箇所
    トイレ2箇所
  • ウォークインクローゼット
    ウォークインクローゼット
  • 床下収納
    床下収納
  • 浄水器
    浄水器
  • 食器洗浄乾燥機
    食器洗浄乾燥機
  • TVモニタ付きインターホン
    TVモニタ付きインターホン
  • 主寝室8畳以上
    主寝室8畳以上
  • 納戸
    納戸
  • 角地
    角地
  • 都市ガス
    都市ガス
  • 床暖房
    床暖房
  • 追焚機能
    追焚機能
  • トイレ2箇所
    トイレ2箇所
  • ウォークインクローゼット
    ウォークインクローゼット
  • 床下収納
    床下収納
  • 浄水器
    浄水器
  • 食器洗浄乾燥機
    食器洗浄乾燥機
  • TVモニタ付きインターホン
    TVモニタ付きインターホン
  • 主寝室8畳以上
    主寝室8畳以上
  • 納戸
    納戸
  • 角地
    角地
  • 都市ガス
  • 上水道
  • 下水道
  • 床暖房
  • 追焚機能
  • トイレ2箇所
  • 温水洗浄便座
  • ウォークインクローゼット
  • 床下収納
  • 浄水器
  • 食器洗浄乾燥機
  • シャンプードレッサー
  • TVモニタ付きインターホン
  • 主寝室8畳以上
  • 納戸
  • 駐車場有
  • セットバックなし・済み
  • 土地面積50坪以上
    リフォーム

    --

    立地・周辺環境

    角地|南道路(南東・南西含む)|低層住居専用地域|分譲地内|小学校まで徒歩10分以内|スーパーまで徒歩10分以内|公園まで徒歩5分以内|前面道路幅員6m以上|前面道路公道

    セールスポイント

    ■交通:小田急線「鶴川」駅まで徒歩21分
        バス停「ゆりの木通り」徒歩5分、小田急線「鶴川」駅までバス乗車7分
    ■敷地面積:207.43u(62.74坪)
    ■建物面積:147.86u(44.72坪)
    ■築年月:1998年7月
    ■角地
    ■駐車場/カーポート(車種による)
    ■設備・仕様
    ・ウォークインクローゼット
    ・床暖房(LD)
    ・浄水器一体型水栓
    ・食器洗浄乾燥機
    ・シャワー付洗面化粧台
    ・温水洗浄便座
    ・床下収納
    ・小屋裏収納〜ライフインフォメーション〜
    ・沢谷戸自然公園 約160m
    ・三輪中央公園 約370m
    ・グルメシティ鶴川緑山店 約590m
    ・町田市鶴川駅前連絡所 約1790m

    ◎町田市立三輪小学校 約710m
    ◎町田市立鶴川第二中学校 約2490m

    担当からのひとこと

    −不動産の購入を検討中のお客様へ−
    簡単な資料だけご覧になりたいという方もお気軽にお問い合わせください。

    物件のご検討については、写真や図面だけではなく、現地を見ていただく事をお勧めします。
    現地をご覧頂くことにより周辺環境や室内の状況等を確認いただくだけでなく、
    ご案内する担当者より、プロの目から見た長所・短所等を詳しくご説明差し上げる事もできます。

    また、住宅ローン等でご不明な点があれば、物件購入にかかる諸費用や住宅ローンを組まれたときの月々のご返済をご案内させていただきます。

    ご検討の際にはフリーコール【0120-331-038】担当の早坂まで

    お気軽にご連絡ください。

    ・沢谷戸自然公園 徒歩2分(約160m)
    ・三輪中央公園 徒歩5分(約370m)
    ・グルメシティ鶴川緑山店 徒歩8分(約590m)
    ・町田市立三輪小学校 徒歩9分(約710m)

    物件詳細

    物件名 町田市三輪緑山4丁目戸建
    物件番号 15262036
    所在地 東京都町田市三輪緑山4丁目
    価格
    4,480万円
    交通 小田急小田原線鶴川」駅徒歩21 分
    小田急小田原線鶴川」駅バス7 分「ゆりの木通り」バス停徒歩5 分
    間取り 4LDK
    建物面積 147.86m2(約44.72坪)
    土地面積 207.43m2(約62.74坪)※公簿
    階数
    構造
    地上2階建て
    木造
    築年月 1998年07月
    地目
    地勢
    宅地
    平坦
    接道状況 角地・南6m(公道)接面14.9m/東4m(公道)接面11.3m
    建ぺい率 50%
    容積率 80%
    都市計画 市街化区域
    用途地域 第1種低層住居専用地域
    地域・地区 高度地区/建築基準法第22条指定区域、盛土規制法、宅地造成工事規制区域、住まい共生ゾーン
    引渡時期 相談
    現況 居住中
    駐車場 有り
    土地権利 所有権
    取引態様 仲介
    国土法 届出不要
    備考
    • ・バス乗車時間調査日:2025年10月20日
    • ・駐車場/カーポート(車種による)
    • ・建ぺい率は角地緩和による。土地区画整理事業、三輪地区地区計画

    この情報は2025年11月02日当社物件システムのデータにもとづくものであり、次回更新予定日は2025年11月16日です。