建物面積
60.31 m2
(約18.24坪)
間取り
2LDK
築年月
1977年01月

中古一戸建て

2,400万円

市川市本北方3丁目戸建

中古一戸建て

2025年3月 住友リフォームにて 内外装リフォーム済み

千葉県市川市本北方3丁目

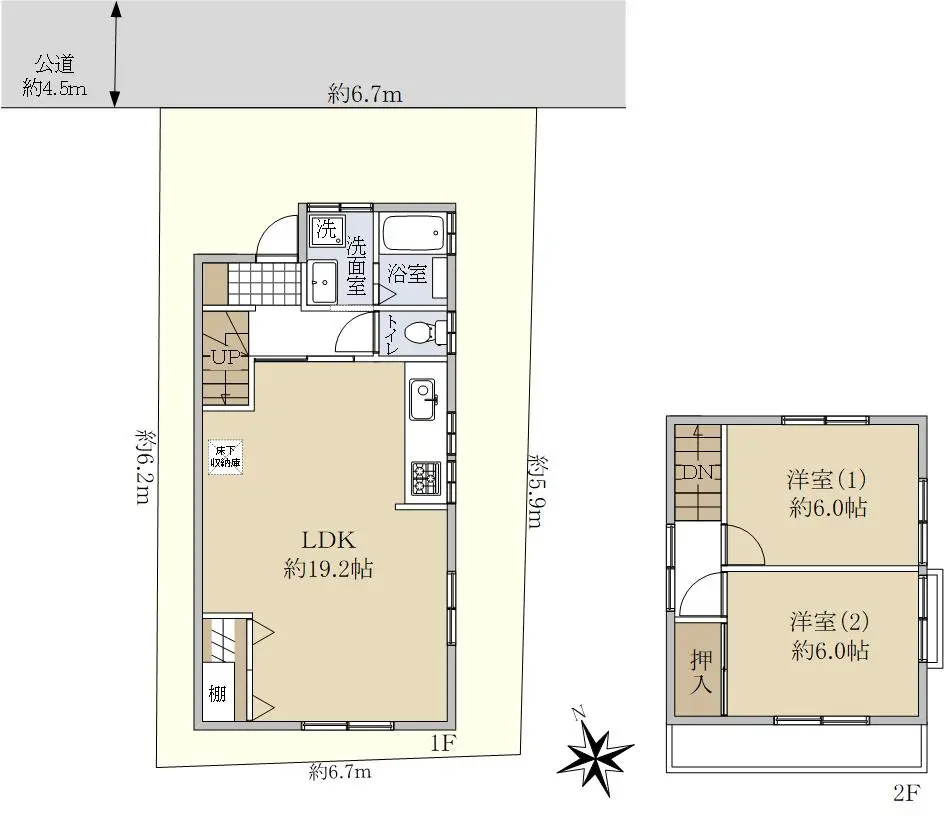
建物面積60.31m2(約18.24坪)・間取り2LDK・1977年01月築

借入希望金額や金利を入力すると
返済計画を組み立てることができます。

ローンシミュレーション結果

毎月返済額
ボーナス月返済額
年間返済額
月々のお支払い

(ボーナス月お支払い額 ¥円)
ローン
  • 別途月額費用がかかる場合があります。詳しくは営業担当にお問い合わせください。

住宅ローンの詳細は三井住友銀行 のホームページをご覧ください。

  • このシミュレーションは、借入れを保証するものではありません。「免責事項」をご確認の上、ご利用ください。
  • ボーナス返済額の上限は、金融機関によって異なります。
  • ご購入にあたっては別途諸費用等が必要です。詳しくは営業担当にお問合せください。

金利:2025年12月時点のものです。

物件のポイント

物件の特徴

  • 都市ガス
    都市ガス
  • 食器洗浄乾燥機
    食器洗浄乾燥機
  • リフォーム済み
    リフォーム済み
  • 低層住居専用地域
    低層住居専用地域
  • 容積率100%以上
    容積率100%以上
  • 小学校まで徒歩10分以内
    小学校まで徒歩10分以内
  • 公園まで徒歩5分以内
    公園まで徒歩5分以内
  • セットバックなし・済み
    セットバックなし・済み
  • 前面道路公道
    前面道路公道
  • 都市ガス
    都市ガス
  • 食器洗浄乾燥機
    食器洗浄乾燥機
  • リフォーム済み
    リフォーム済み
  • 低層住居専用地域
    低層住居専用地域
  • 容積率100%以上
    容積率100%以上
  • 小学校まで徒歩10分以内
    小学校まで徒歩10分以内
  • 公園まで徒歩5分以内
    公園まで徒歩5分以内
  • セットバックなし・済み
    セットバックなし・済み
  • 前面道路公道
    前面道路公道
  • 都市ガス
  • 上水道
  • 浄化槽
  • システムキッチン
  • 食器洗浄乾燥機
  • 洗面所
  • 洗面台
  • セットバックなし・済み
    リフォーム

    ●2025年03月/屋根補修 軒天・天樋やり替え 外壁塗装

    ●2025年03月/1階 フローリング・壁・天井張替

    ●2025年03月/キッチン・浴室・トイレ交換

    立地・周辺環境

    低層住居専用地域|容積率100%以上|小学校まで徒歩10分以内|公園まで徒歩5分以内|前面道路公道

    セールスポイント

    ◆土地面積:83.06u
    ◆建物面積:60.31u
    ◆小学校・公園・コンビニまで徒歩10分圏内

    <リフォーム履歴>
    2025年3月実施
    ・屋根補強 軒天・天樋やり替え 外壁塗装
    ・1階 フローリング・壁・天井張り替え
    ・キッチン、浴室、トイレ交換
    <ライフインフォメーション>
    ミニストップ 市川若宮店 約500m 徒歩7分
    まいばすけっと 市川若宮2丁目店 約850m 徒歩11分
    マルエツ 東菅野店 約1020m 徒歩13分
    市川市立若宮小学校 約240m 徒歩3分
    市川市立第四中学校 約830m 徒歩11分
    もときたかた公園 約150 徒歩2分
    美濃輪公園 約180m 徒歩3分

    担当からのひとこと

    物件の詳細をご覧いただきまして、誠にありがとうございます。物件担当の住友不動産ステップ株式会社 本八幡営業センター太田代でございます。
    リフォーム・資金計画・住宅ローン等一挙お任せください。
    室内はもちろん、周辺環境も含めご案内いたしますので、お気軽にご相談ください。

    ・ミニストップ 市川若宮店 徒歩7分(約500m)
    ・まいばすけっと 市川若宮2丁目店 徒歩11分(約850m)
    ・マルエツ 東菅野店 徒歩13分(約1020m)
    ・市川市立若宮小学校 徒歩3分(約240m)
    ・もときたかた公園 徒歩2分(約150m)

    物件詳細

    物件名 市川市本北方3丁目戸建
    物件番号 15762024
    所在地 千葉県市川市本北方3丁目
    価格
    2,400万円
    交通 総武線下総中山」駅バス11 分「若宮小学校」バス停徒歩6 分
    間取り 2LDK
    建物面積 60.31m2(約18.24坪)
    土地面積 83.06m2(約25.12坪)※公簿
    階数
    構造
    地上2階建て
    木造
    築年月 1977年01月
    地目
    地勢
    宅地
    平坦
    接道状況 一方道路・北4.5m(公道)接面6.7m
    建ぺい率 50%
    容積率 100%
    都市計画 市街化区域
    用途地域 第1種低層住居専用地域
    地域・地区 建築基準法上第22条区域
    引渡時期 相談
    現況 居住中
    駐車場 無し
    土地権利 所有権
    取引態様 仲介
    国土法 届出不要

    この情報は2025年12月20日当社物件システムのデータにもとづくものであり、次回更新予定日は2026年01月03日です。