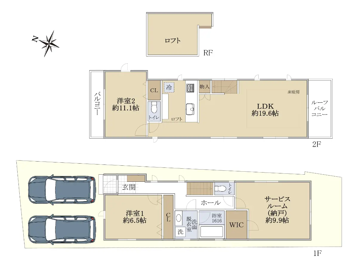
建物面積
98.24 m2
(約29.71坪)
間取り
2SLDK
※Sはサービスルーム(納戸)
築年月
2010年03月

中古一戸建て

8,700万円

豊島区雑司が谷2丁目借地権付き戸建

中古一戸建て

お気に入り 2

東京メトロ副都心線「雑司が谷」駅徒歩3分 LD天井高3.6m

東京都豊島区雑司が谷2丁目

建物面積98.24m2(約29.71坪)・間取り2SLDK ※Sはサービスルーム(納戸)・2010年03月築

借入希望金額や金利を入力すると
返済計画を組み立てることができます。

ローンシミュレーション結果

毎月返済額
ボーナス月返済額
年間返済額
月々のお支払い

(ボーナス月お支払い額 ¥円)
ローン
  • 別途月額費用がかかる場合があります。詳しくは営業担当にお問い合わせください。

住宅ローンの詳細は三井住友銀行 のホームページをご覧ください。

  • このシミュレーションは、借入れを保証するものではありません。「免責事項」をご確認の上、ご利用ください。
  • ボーナス返済額の上限は、金融機関によって異なります。
  • ご購入にあたっては別途諸費用等が必要です。詳しくは営業担当にお問合せください。

金利:2026年4月時点のものです。

物件のポイント

物件の特徴

  • 都市ガス
    都市ガス
  • 床暖房
    床暖房
  • 追焚機能
    追焚機能
  • トイレ2箇所
    トイレ2箇所
  • ウォークインクローゼット
    ウォークインクローゼット
  • カウンターキッチン
    カウンターキッチン
  • 食器洗浄乾燥機
    食器洗浄乾燥機
  • IHクッキングヒーター
    IHクッキングヒーター
  • 浴室乾燥機
    浴室乾燥機
  • ロフト
    ロフト
  • 複層ガラス
    複層ガラス
  • TVモニタ付きインターホン
    TVモニタ付きインターホン
  • 都市ガス
    都市ガス
  • 床暖房
    床暖房
  • 追焚機能
    追焚機能
  • トイレ2箇所
    トイレ2箇所
  • ウォークインクローゼット
    ウォークインクローゼット
  • カウンターキッチン
    カウンターキッチン
  • 食器洗浄乾燥機
    食器洗浄乾燥機
  • IHクッキングヒーター
    IHクッキングヒーター
  • 浴室乾燥機
    浴室乾燥機
  • ロフト
    ロフト
  • 複層ガラス
    複層ガラス
  • TVモニタ付きインターホン
    TVモニタ付きインターホン
  • 都市ガス
  • 上水道
  • 下水道
  • 床暖房
  • 追焚機能
  • トイレ2箇所
  • バス・トイレ別
  • ウォークインクローゼット
  • カウンターキッチン
  • 食器洗浄乾燥機
  • IHクッキングヒーター
  • 洗面所
  • 洗面台
  • 浴室乾燥機
  • ロフト
  • 複層ガラス
  • 2面バルコニー
  • TVモニタ付きインターホン
  • 駐車場2台分
  • バス1坪以上
  • 納戸
  • 駐車場有
  • セットバックなし・済み
  • 借地
  • 土地面積30坪以上
    リフォーム

    --

    立地・周辺環境

    2沿線以上利用可|駅徒歩5分以内|小学校まで徒歩10分以内|スーパーまで徒歩10分以内|コンビニまで徒歩5分以内|公園まで徒歩5分以内|第一種中高層住居専用地域|前面道路公道

    セールスポイント

    ■アクセス
    東京メトロ副都心線「雑司が谷」駅 徒歩3分
    都電荒川線「鬼子母神前」駅 徒歩5分
    東京メトロ有楽町線「東池袋」駅 徒歩10分

    ■ポイント
    ・オープンハウス分譲
    ・2階:全箇所  2重窓、2重サッシ
    ・1階:居室部分 2重窓
    ・LD:天井高3.6m
    ・天窓あり
    ・ウォークインクローゼットあり
    ・カウンターキッチン■ライフインフォメーション
    ・まいばすけっと雑司が谷1丁目店   約370m
    ・リコス雑司が谷2丁目店       約430m
    ・ローソン鬼子母神店         約290m
    ・セブンイレブン豊島雑司ヶ谷3丁目店 約390m
    ・雑司が谷郵便局           約310m
    ・豊島区立雑司が谷中央児童遊園    約 80m
    ・川口クリニック           約230m

    ・豊島区立南池袋小学校        約500m

    担当からのひとこと

    この度は「豊島区雑司が谷2丁目借地権付き戸建」をご覧いただき誠にありがとうございます。

    こちらは東京メトロ副都心線「雑司が谷」駅 徒歩3分、都電荒川線「鬼子母神前」駅 徒歩5分、
    東京メトロ有楽町線「東池袋」駅 徒歩10分、閑静な住宅街に位置する物件です。
    周辺にはスーパー・コンビニ・郵便局が揃い、利便性の高い物件となっております。

    物件の詳細、ご見学等お気軽に担当「中村」までお問い合せください。

    ・まいばすけっと雑司が谷1丁目店 徒歩5分(約370m)
    ・ローソン鬼子母神店 徒歩4分(約290m)
    ・豊島区立雑司が谷中央児童遊園 徒歩1分(約80m)
    ・豊島区立南池袋小学校 徒歩7分(約500m)

    物件詳細

    物件名 豊島区雑司が谷2丁目借地権付き戸建
    物件番号 16092001
    所在地 東京都豊島区雑司が谷2丁目
    価格
    8,700万円
    交通 東京メトロ副都心線雑司が谷」駅徒歩3 分
    都電荒川線鬼子母神前」駅徒歩5 分
    東京メトロ有楽町線東池袋」駅徒歩10 分
    間取り 2SLDK
    ※Sはサービスルーム(納戸)
    建物面積 98.24m2(約29.71坪)
    土地面積 106.63m2(約32.25坪)※実測/セットバック済み
    階数
    構造
    地上2階建て
    木造
    築年月 2010年03月
    地目
    地勢
    宅地
    平坦
    総住戸数 1 戸
    各住戸の専有面積 不詳
    接道状況 一方道路・北西4m(公道)接面5.5m
    建ぺい率 60%
    容積率 160% ※前面道路幅員による容積率制限の為
    都市計画 市街化区域
    用途地域 第1種中高層住居専用地域
    引渡時期 相談
    現況 居住中
    駐車場 有り/台数2台/自走/屋根なし
    土地権利 (旧法)賃借権
    借地条件 借地料:月額21,972円/借地期限:2030年03月(残存期間:3年)
    取引態様 仲介
    国土法 届出不要
    備考
    • ・駐車場あり(車種による)

    この情報は2026年04月17日当社物件システムのデータにもとづくものであり、次回更新予定日は2026年05月01日です。