• 新着
  • 空き物件
建物面積
170.76 m2
(約51.65坪)
間取り
3LDK
築年月
1984年03月

中古一戸建て

  • 新着
  • 空き物件
2,780万円

栗東市出庭戸建

中古一戸建て

【すみふの仲介ステップ】☆土地40.89坪 ☆建物51.65坪

滋賀県栗東市出庭

建物面積170.76m2(約51.65坪)・間取り3LDK・1984年03月築

借入希望金額や金利を入力すると
返済計画を組み立てることができます。

ローンシミュレーション結果

毎月返済額
ボーナス月返済額
年間返済額
月々のお支払い

(ボーナス月お支払い額 ¥円)
ローン
  • 別途月額費用がかかる場合があります。詳しくは営業担当にお問い合わせください。

住宅ローンの詳細は三井住友銀行 のホームページをご覧ください。

  • このシミュレーションは、借入れを保証するものではありません。「免責事項」をご確認の上、ご利用ください。
  • ボーナス返済額の上限は、金融機関によって異なります。
  • ご購入にあたっては別途諸費用等が必要です。詳しくは営業担当にお問合せください。

金利:2026年4月時点のものです。

物件のポイント

物件の特徴

  • リフォーム済み
    リフォーム済み
  • 南道路(南東・南西含む)
    南道路(南東・南西含む)
  • 容積率100%以上
    容積率100%以上
  • 駐車場有
    駐車場有
  • 前面道路幅員6m以上
    前面道路幅員6m以上
  • 第一種住居地域
    第一種住居地域
  • セットバックなし・済み
    セットバックなし・済み
  • 土地面積30坪以上
    土地面積30坪以上
  • 前面道路公道
    前面道路公道
  • リフォーム済み
    リフォーム済み
  • 南道路(南東・南西含む)
    南道路(南東・南西含む)
  • 容積率100%以上
    容積率100%以上
  • 駐車場有
    駐車場有
  • 前面道路幅員6m以上
    前面道路幅員6m以上
  • 第一種住居地域
    第一種住居地域
  • セットバックなし・済み
    セットバックなし・済み
  • 土地面積30坪以上
    土地面積30坪以上
  • 前面道路公道
    前面道路公道
  • プロパンガス
  • 上水道
  • 下水道
  • 駐車場有
  • セットバックなし・済み
  • 土地面積30坪以上
    リフォーム

    ●2015年04月/太陽光発電工事、屋根塗装

    ●2017年12月/外壁塗装

    立地・周辺環境

    南道路(南東・南西含む)|容積率100%以上|前面道路幅員6m以上|第一種住居地域|前面道路公道

    セールスポイント

    ■JR東海道本線「守山」駅まで徒歩25分
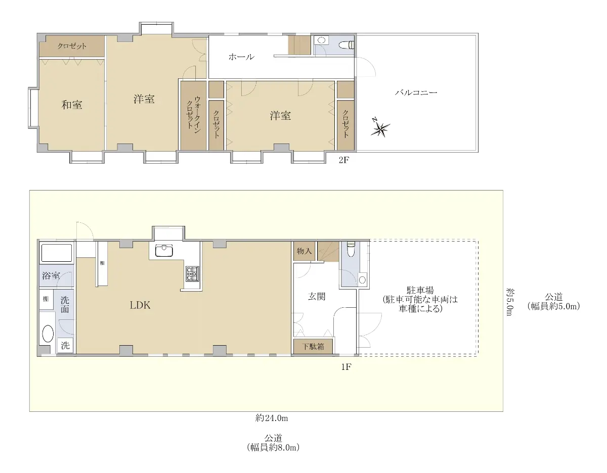
    ■土地面積(公簿)135.20u(40.89坪)
    ■建物面積(公簿)170.76u(51.65坪)
    ■前面道路幅員約8.0m
    ■間口約24.0m
    ■現況空家

    〜改装履歴〜
    (2015年4月改装済み)
    ・太陽光発電工事(11.6kW)、屋根塗装
    (2017年12月改装済み)
    ・外壁塗装

    〜近隣施設等〜
    ・業務スーパー栗東店まで約220m
    ・スター栗東辻店まで約530m
    ・JAレーク滋賀出庭支店まで約390m
    ・セブンイレブン栗東出庭店まで約510m

    担当からのひとこと

    「栗東市出庭戸建」の物件ページを御覧いただき、ありがとうございます。
    本物件は、JR東海道本線「守山」駅まで徒歩25分、土地面積(公簿)135.20u(40.89坪)、
    建物面積(公簿)170.76u(51.65坪)でございます。
    前面道路幅員約8.0m、間口約24.0m、大通りに面しており、店舗、商業施設としてもご検討いただけます。
    周辺にはスーパー等もございますので利便性が高い物件です。
    また、太陽光発電工事(11.6kW)、屋根塗装(2015年4月改装済み)、
    外壁塗装(2017年12月改装済み)の改装履歴がございます。
    是非この機会に一度ご内覧ください。

    お住み替えや不動産に係る相談は、是非「増田」までご連絡ください。

    お客様からのお問合せを心よりお待ちしております。

    (お問合せ先)
    住友不動産ステップ株式会社 草津営業センター
    物件担当/増田
    フリーコール/0120-772-157

    ・業務スーパー栗東店 徒歩3分(約220m)
    ・スター栗東辻店 徒歩7分(約530m)
    ・JAレーク滋賀出庭支店 徒歩5分(約390m)
    ・セブンイレブン栗東出庭店 徒歩7分(約510m)

    物件詳細

    物件名 栗東市出庭戸建
    物件番号 36852002
    所在地 滋賀県栗東市出庭
    価格
    2,780万円
    交通 JR東海道本線守山」駅徒歩25 分
    間取り 3LDK
    建物面積 170.76m2(約51.65坪)
    土地面積 135.20m2(約40.89坪)※公簿
    階数
    構造
    地上2階建て
    鉄骨造
    築年月 1984年03月
    地目
    地勢
    宅地
    平坦
    接道状況 二方道路・南西8m(公道)接面24m/南東5m(公道)接面5m
    建ぺい率 60%
    容積率 200%
    都市計画 市街化区域
    用途地域 第1種住居地域
    地域・地区 なし
    引渡時期 相談
    現況 空家
    駐車場 有り/自走/屋根あり
    土地権利 所有権
    取引態様 仲介
    国土法 届出不要
    備考
    • ・駐車可能な車両は車種による

    この情報は2026年04月10日当社物件システムのデータにもとづくものであり、次回更新予定日は2026年04月24日です。