〜渋谷区宇田川町アドレス/事務所利用可能(管理規約による制限有)〜
物件のポイント
物件の特徴
- 
				
- 都市ガス
 - 給湯
 - 浴室乾燥機
 - エレベータ
 - 自動ロック
 - 宅配ボックス
 - 角部屋
 - 大規模(総戸数100戸以上)
 - 管理員巡回
 
 
- リフォーム
 - 
				
				
●2025年08月/ユニットバス・トイレ・洗面台新規交換(浴室乾燥機付き)
●2025年08月/洗濯用防水パン、全室建具新規交換
●2025年08月/全室フローリング、全室クロス新規貼替
 
- 立地・周辺環境
 - 
				
2沿線以上利用可|駅徒歩5分以内
 
セールスポイント
〔交通アクセス〕
◆2駅利用可能
・東京メトロ半蔵門線・副都心線「渋谷」駅 徒歩5分
・東急東横線・田園都市線「渋谷」駅 徒歩5分
・JR山手線・埼京線・湘南新宿ライン「渋谷」駅 徒歩7分
・京王井の頭線「神泉」駅 徒歩10分
〔物件概要〕
・ニュー渋谷コーポラス
・築年月:1973年6月築
・12階建て12階部分
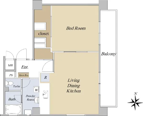
・専有面積:51.66u
・バルコニー面積:14.28u
・間取り:1LDK
・向き:東
・現況:空室
・施工会社:株式会社長谷川工務店
・管理会社:京阪カインド株式会社(管理方式:巡回)
〔室内設備〕
・浴室乾燥機
〔共用設備〕
・オートロック
・玄関ドアディンプルキー
・防犯カメラ
・宅配ボックス
〜リフォーム内容〜(2025年8月)
・ユニットバス・トイレ・洗面台新規交換(浴室乾燥機付き)
・洗濯用防水パン、全室建具新規交換
・全室フローリング、全室クロス新規貼替
担当からのひとこと
この度は「ニュー渋谷コーポラス」の詳細ページをご覧いただき誠にありがとうございます。
当該物件は、東急東横線・東急田園都市線・東京メトロ半蔵門線・副都心線「渋谷」駅まで徒歩5分に位置する複数路線利用可能な物件です。
また、井の頭線通りにあり交通利便性も良好です。
居住用だけでなく、セカンドハウス、または投資用として幅広く検討いただける物件となっております。
ご質問や資料請求は、担当:東郷までお気軽にお申し付けください。
ご検討よろしくお願い致します。
周辺環境
--
物件詳細
| 物件名 | ニュー渋谷コーポラス | 
|---|---|
| 物件番号 | 151G3034 | 
| 所在地 | 
												東京都渋谷区宇田川町 | 
										
| 価格 | 
												 1億円 
													 | 
										
| 交通 | 東京メトロ半蔵門線「渋谷」駅徒歩5  分 山手線「渋谷」駅徒歩7 分 京王井の頭線「神泉」駅徒歩10 分  | 
										
| 間取り | 1LDK | 
| 専有面積 | 51.66m2(壁芯) | 
| 所在階 構造  | 
											12階部分/地上12階建て 鉄骨鉄筋コンクリート造  | 
										
| 築年月 | 1973年06月 | 
| バルコニー(テラス)面積 | 14.28m2 | 
| 採光方向 | 北東/角部屋 | 
| 総戸数 | 105 戸 | 
| 管理形態 管理方式 管理会社  | 
											管理会社に全部委託 巡回 京阪カインド  | 
										
| 新築時売主 | 日本開発株式会社 | 
| 施工会社 | 株式会社長谷川工務店 | 
| 管理費(月額) | 15,300円 | 
| 修繕積立金(月額) | 7,650円 | 
| 引渡時期 | 相談 | 
| 現況 | 空家 | 
| 駐車場 | 空無し | 
| 土地権利 | 所有権 | 
| 取引態様 | 仲介 | 
この情報は2025年10月25日当社物件システムのデータにもとづくものであり、次回更新予定日は2025年11月08日です。
