吹き抜けのある開放的なLDKが特徴 25階・26階のメゾネットタイプです!
物件のポイント
物件の特徴
-
- 建物補修
- 設備補修
- 都市ガス
- 給湯
- バス・トイレ別
- 温水洗浄便座
- ガスキッチン
- システムキッチン
- 食器洗浄乾燥機
- ディスポーザー
- 洗面所
- 洗面台
- 浴室乾燥機
- トランクルーム
- エレベータ
- 宅配ボックス
- メゾネット
- 24時間セキュリティ
- シューズインクローゼット
- コンシェルジュサービス
- ペット可(但し、管理規約により一定の制限があります)
- 24時間ゴミ出し可
- 所在階20階以上
- 大規模(総戸数100戸以上)
- タワー(20階建以上)
- 駐車場空有
- 住友不動産旧分譲
- 管理員日勤
- 共有施設充実
- リフォーム
-
--
- 立地・周辺環境
-
2沿線以上利用可|小学校まで徒歩10分以内|スーパーまで徒歩10分以内|コンビニまで徒歩5分以内|公園まで徒歩5分以内|眺望良好
セールスポイント
〜マンションの特徴について〜
○制震構造
○二重床・二重天井
○敷地内には160台の防犯カメラを設置
○安心の24時間有人管理※夜間は警備員が対応
○コンシェルジュサービス有
○ホテルライクな内廊下設計
○各階にダストステーション有
24時間ゴミ出し可※粗大ゴミは除く
○ペット飼育可(規約有)
○マンション敷地内に24時間営業のスーパー有
スーパーマルエツ港南ワールドシティ店
(約170m先、キャピタルタワー1階)〜専有部の特徴〜
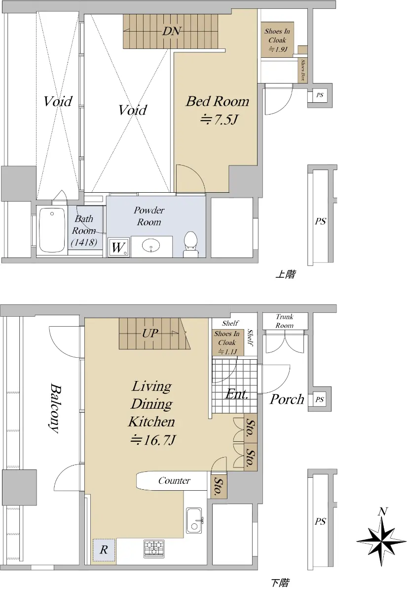
◆25・26階部分メゾネットタイプ
◆専有面積:64.79u
※プライベートトランク1.04u含む
◆間取り:1LDK
◆西向きバルコニー
◆吹き抜けが開放的なメゾネットプラン
◆LDK約16.7帖、洋室約7.5帖
◆上下階共に、共用廊下への出入口あり
プライベートとパブリックの使い分けがしやすいレイアウト
◆プライベートトランク有
◆ブリーズタワー棟総戸数:459戸
●充実の室内設備
ディスポーザー
オートバス(追い焚き機能付)浴室に窓有
温水洗浄暖房便座
床暖房(LD部分)など
<充実の共用施設※一部有償>
●アクアタワー
・来客用駐車場:A1/地下2F ・洗車機:A1:地下2F
・レンタサイクル:A1/1F
・アクアサイトプール:A/2F ・キッズプール:A/2F
・トレーニングジム:A2/3F ・フィットネススタジオ:A2/3F
・リラグゼーションルーム:A3/3F ・ウェルネスバス:A3/3F
・キッズランド:A2/3F ・ワールドシティホール:A2/3F
・スカイラウンジ:A2/26F ・スカイライブラリー:A2/26F
・アクアコモンホール:A3/26F ・シアターカラオケ:A3/26F
・ビュースタジオ:A3/26F ・ゲストルーム:A3/26F
・スタディブース:A2/27F ・スカイガーデン:A4/39F
・スカイダイニング:A4/39F
●ブリーズタワー
・ゲストルーム:B2/2F ・ゲストルーム:B2/27F
・ブリーズコモンホール:B2/27F
●キャピタルタワー
・ゲストルーム:C1/4F ・ゲストルーム:C1/26F
・キャピタルコモンホール:C1/26F
担当からのひとこと
「ワールドシティタワーズ」は、新築時売主:住友不動産の代表的な分譲マンションの一つです。
アクアタワー(A棟)、ブリーズタワー(B棟)、キャピタルタワー(C棟)の3棟からなり、総戸数2090戸の大規模コミュニティとなっています。
東京のターミナル窓口「品川」駅を徒歩圏に捉え、新幹線やJR山手線他、多路線利用可能で通勤・通学の利便性良好、出張の多い方にも好まれる立地です。
住宅ローンやお住み替えのプラン等、ご不明点等ございましたら、
担当の【藤井・横山】までお気軽にお問い合わせください。
皆様からのお問い合わせ、心よりお待ちしております。
周辺環境
・マルエツ港南ワールドシティ店 徒歩3分(約170m)
・港南緑水公園 徒歩3分(約220m)
・ファミリーマート港南四丁目店 徒歩5分(約380m)
・港区立港南小学校 徒歩5分(約380m)
・品川天王洲郵便局 徒歩7分(約550m)
物件詳細
| 物件名 | ワールドシティタワーズ ブリーズタワー |
|---|---|
| 物件番号 | 152Y3071 |
| 所在地 |
東京都港区港南4丁目 |
| 価格 |
9,980万円
|
| 交通 | 山手線「品川」駅徒歩15 分 東京モノレール羽田「天王洲アイル」駅徒歩8 分 東京臨海高速鉄道「天王洲アイル」駅徒歩11 分 |
| 間取り | 1LDK |
| 専有面積 | 64.79m2(壁芯) |
| 所在階 構造 |
25階部分/地上42階地下2階建て 鉄筋コンクリート造 |
| 築年月 | 2005年10月 |
| バルコニー(テラス)面積 | 13.00m2 |
| 採光方向 | 西 |
| 総戸数 | 2090戸 |
| 管理形態 管理方式 管理会社 |
管理会社に全部委託 日勤 住友不動産建物サービス |
| 新築時売主 | 住友不動産 |
| 施工会社 | 清水建設(株)/(株)ピーエス三菱/西武建設(株) |
| 管理費(月額) | 16,078円 |
| 修繕積立金(月額) | 19,590円 |
| その他月額費用 | 住民活動協力金:2,500円 |
| 引渡時期 | 相談 |
| 現況 | 居住中 |
| 駐車場 | 空有り/月額:23,000円〜48,000円/機械/屋根あり※車種による |
| 土地権利 | 所有権 |
| 取引態様 | 仲介 |
| 備考 |
|
この情報は2025年11月02日当社物件システムのデータにもとづくものであり、次回更新予定日は2025年11月16日です。
