■最上階3方向角住戸■複数路線利用可能な好立地
物件のポイント
物件の特徴
-
- 都市ガス
- 給湯
- 追焚機能
- 温水洗浄便座
- CATV
- 収納スペース
- 浄水器
- 浴室乾燥機
- 両面バルコニー
- トランクルーム
- エレベータ
- TVモニタ付きインターホン
- 駐輪場
- 最上階
- 南向き(南東、南西含む)
- 角部屋
- 管理員巡回
- リフォーム
-
●2020年05月/フローリング、クロス:全室貼替え
●2020年05月/キッチン、浴室、洗面台、トイレ:新規交換
- 立地・周辺環境
-
2沿線以上利用可|駅徒歩5分以内|スーパーまで徒歩10分以内|コンビニまで徒歩5分以内
セールスポイント
◇物件概要
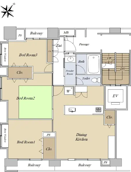
専有面積:66.47u(公簿)
間取り:3DK
所在階:10階(最上階)
土地権利:所有権
築年月:昭和48年9月
総戸数:30戸
◇ポイント
3方向角住戸(南東・南西・北西)
トランクルーム付※引継可能
宅配ボックス
浴室乾燥機
TVモニター付きインターホン
担当からのひとこと
本物件の詳細ページをご覧いただきまして、誠にありがとうございます。
当該住戸は最上階の開放感のある3方向角住戸(南東・南西・北西)で陽当たり、通風、眺望良好です。
物件のご検討については、写真だけでなく是非、現地・周辺をご覧ください。
「周辺環境」 「類似物件」
「不動産ご購入の流れ」 「資金計画」
「住宅ローン」 「購入にかかる諸費用」
ご不明な点がございましたら、些細なことでも構いません。
お気軽にご相談くださいませ。
誠心誠意サポートさせて頂きます。
ご見学のご希望・ご不明な点はお気軽にお尋ねください。
周辺環境
・セブンイレブン渋谷本町3丁目店 徒歩3分(約200m)
・スーパーマーケットリコス渋谷本町3丁目店 徒歩2分(約150m)
物件詳細
| 物件名 | 新宿ニューハウジング |
|---|---|
| 物件番号 | 15423118 |
| 所在地 |
東京都新宿区西新宿4丁目 |
| 価格 |
6,980万円
|
| 交通 | 都営大江戸線「西新宿五丁目」駅徒歩4 分 京王線「初台」駅徒歩13 分 東京メトロ丸ノ内線「中野坂上」駅徒歩15 分 |
| 間取り | 3DK |
| 専有面積 | 66.47m2(内法) |
| 所在階 構造 |
10階部分/地上10階建て 鉄骨鉄筋コンクリート造 |
| 築年月 | 1973年09月 |
| バルコニー(テラス)面積 | 1.00m2 |
| 採光方向 | 南東/角部屋 |
| 総戸数 | 30 戸 |
| 管理形態 管理方式 管理会社 |
管理会社に全部委託 巡回 スタック |
| 新築時売主 | 中央ハウジング |
| 施工会社 | 第一建設工業株式会社 |
| 管理費(月額) | 16,200円 |
| 修繕積立金(月額) | 21,300円 |
| その他月額費用 | トランクルーム使用料:月額6,000円 |
| 引渡時期 | 相談 |
| 現況 | 居住中 |
| 駐車場 | 無し |
| 土地権利 | 所有権 |
| 取引態様 | 仲介 |
| 備考 |
|
この情報は2026年02月28日当社物件システムのデータにもとづくものであり、次回更新予定日は2026年03月14日です。
