☆京王井の頭線「永福町」駅徒歩6分の好立地 ☆2駅2路線利用可 ☆2SLDK・WIC
物件のポイント
物件の特徴
- 
				
- 都市ガス
 - 上水道
 - 下水道
 - 床暖房
 - 給湯
 - バス・トイレ別
 - ウォークインクローゼット
 - ガスキッチン
 - システムキッチン
 - 浄水器
 - 食器洗浄乾燥機
 - 洗面所
 - 洗面台
 - 浴室乾燥機
 - フローリング
 - エレベータ
 - 自動ロック
 - モニター付きオートロック
 - 駐輪場
 - バイク置き場
 - 24時間換気システム
 - ペット可(但し、管理規約により一定の制限があります)
 - 南向き(南東、南西含む)
 - 角部屋
 - 納戸
 - 管理員日勤
 
 
- リフォーム
 - 
				
--
 
- 立地・周辺環境
 - 
				
2沿線以上利用可|低層住居専用地域|小学校まで徒歩10分以内|スーパーまで徒歩10分以内|コンビニまで徒歩5分以内
 
セールスポイント
◎アクセス
京王井の頭線「永福町」駅 徒歩6分
京王線「下高井戸」駅 徒歩9分
【物件概要】
◇構造:鉄筋コンクリート造6階建て1階部分
◇専有面積:62.08u
◇バルコニー面積:5.40u
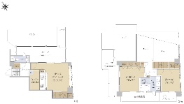
◇間取り:2SLDK
◇建築年月:2004年3月
◇ペット可(管理規約による制限あり)
◇ウォークインクローゼット
【周辺環境】
◇京王ストアキッチンコート永福町店まで約480m
◇ファミリーマート永福1丁目店まで約240m
◇ココカラファイン永福町駅前店まで約400m
◇区立永福小学校まで約340m
◇区立向陽中学校まで約1020m
◇杉並永福郵便局まで約290m
担当からのひとこと
物件の詳細をご覧いただき誠にありがとうございます。
本物件は京王井の頭線急行停車駅「永福町」駅まで徒歩6分、京王線「下高井戸」駅まで徒歩9分の立地に位置しています。近隣にはスーパーやコンビニ、ドラッグストアも揃っており、生活利便性の高いエリアです。
実際にお部屋の中を確認していただくことで、生活動線もイメージしやすいと思います。
一度現地をご覧いただくことをおすすめしております。
ご興味がございましたら、≪担当:黒木≫ までご気軽にご連絡ください。
【お買い換えのご検討をしているお客様へ】
弊社では、ご所有不動産の ≪無料査定≫ を実施しております。
ご購入のご提案からご自宅のご売却、お住み替えまで全力でお手伝いさせていただきます。
--------------------------------------------------------
すみふの仲介ステップ 永福町営業センター
担当:黒木 喬也
フリーコール:0120-812-925
--------------------------------------------------------
周辺環境
・京王ストアキッチンコート永福町店 徒歩6分(約480m)
・ファミリーマート永福1丁目店 徒歩3分(約240m)
・ココカラファイン永福町駅前店 徒歩5分(約400m)
・杉並永福郵便局 徒歩4分(約290m)
・区立永福小学校 徒歩5分(約340m)
物件詳細
| 物件名 | ラコント永福 | 
|---|---|
| 物件番号 | 15653010 | 
| 所在地 | 
												東京都杉並区永福2丁目 | 
										
| 価格 | 
												 6,980万円 
													 | 
										
| 交通 | 京王井の頭線「永福町」駅徒歩6  分 京王線「下高井戸」駅徒歩9 分  | 
										
| 間取り | 2SLDK  ※Sはサービスルーム(納戸)  | 
										
| 専有面積 | 62.08m2(壁芯) | 
| 所在階 構造  | 
											1階部分/地上6階建て 鉄筋コンクリート造  | 
										
| 築年月 | 2004年03月 | 
| バルコニー(テラス)面積 | 5.40m2 | 
| 採光方向 | 南/角部屋 | 
| 総戸数 | 22 戸 | 
| 管理形態 管理方式 管理会社  | 
											管理会社に全部委託 日勤 野村不動産パートナーズ  | 
										
| 新築時売主 | 第一交通産業(株) | 
| 施工会社 | 東急建設(株) | 
| 管理費(月額) | 20,340円 | 
| 修繕積立金(月額) | 29,150円 | 
| その他月額費用 | インターネット使用料:1,100円 | 
| 引渡時期 | 相談 | 
| 現況 | 居住中 | 
| 駐車場 | 空無し | 
| 土地権利 | 所有権 | 
| 取引態様 | 仲介 | 
この情報は2025年10月27日当社物件システムのデータにもとづくものであり、次回更新予定日は2025年11月10日です。
