敝司有会中文的員工,歓迎隨時聯絡!
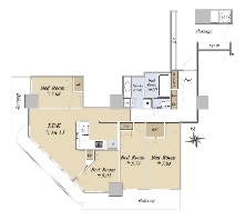
専有面積56.07m2 (壁芯)・間取り1SLDK ※Sはサービスルーム(納戸)・所在階27階部分/地上46階地下1階建て・RC造・2016年01月築
物件のポイント
本物件は投資向け物件です
- 想定利回り
- 1.94 %
- 想定利回り
- 1.94 %
- 年間想定賃料等
- 228万 円
- 月額賃料等
- 19万 円
- 現在の賃貸状況
-
全部賃貸中オーナーチェンジ
- 投資用・事業用不動産について
-
- 賃料等の収入や利回りは、将来にわたり、確実に得られることを保証するものではありません。
- 賃料等は、賃貸中のものについては現在の賃料等で、新築および空室または一部空き有のものについては、周辺の賃料相場に基づき満室となった場合を想定して表示しています。
- 利回りは、現況または満室想定時の賃料等の収入に基づく単純利回り(賃料等の年間合計金額÷ 販売価格(税込))で、公租公課や維持管理費等の必要経費は控除されていません。
物件の特徴
-
- 上水道
- 下水道
- 冷房
- 暖房
- エアコン
- 給湯
- バス・トイレ別
- シャワー
- 温水洗浄便座
- システムキッチン
- IHクッキングヒーター
- 洗面所
- 洗面台
- フローリング
- ディンプルキー
- エレベータ
- 自動ロック
- TVモニタ付きインターホン
- モニター付きオートロック
- 宅配ボックス
- インターネット対応
- 24時間換気システム
- コンシェルジュサービス
- 免震構造 or 制震構造
- オール電化
- ペット可(但し、管理規約により一定の制限があります)
- 納戸
- 所在階20階以上
- 大規模(総戸数100戸以上)
- タワー(20階建以上)
- 管理員日勤
- 共有施設充実
- リフォーム
-
--
- 立地・周辺環境
-
2沿線以上利用可|駅徒歩5分以内|スーパーまで徒歩10分以内|コンビニまで徒歩5分以内|眺望良好
セールスポイント
〜街のシンボルとなる地上46階建ての高層免震タワーレジデンス〜
■大阪メトロ中央線『阿波座』駅まで徒歩3分
■大阪メトロ千日前線『阿波座』駅まで徒歩3分
■大阪メトロ長堀鶴見緑地線『西長堀』駅まで徒歩12分
■27階部分
■ペット飼育可(規約による制限あり)
◆共用部多数あり(一部有償)
・コンシェルジュカウンター(1階)
・ライブラリ(1階)
・ゲストルーム(3階)
・キッズスタジアム(3階)
・スカイラウンジ(25階)
◆オーナーチェンジ物件
・賃料:月額190,000円
・年額賃料:2,280,000円
・現況表面利回り:約1.94%
担当からのひとこと
この度は詳細ページをご覧いただき、誠にありがとうございます。
当物件は、大阪市西区に建つ2016年1月建築の分譲マンションでございます。
27階部分、賃貸中のお部屋です。
周辺環境
・ライフ阿波座駅前店 徒歩6分(約420m)
・ファミリーマート日本生命病院店 徒歩1分(約70m)
・大阪西郵便局 徒歩4分(約290m)
・日本生命病院 徒歩4分(約290m)
物件詳細
| 物件名 | 阿波座ライズタワーズフラッグ46 |
|---|---|
| 物件番号 | 350D3121 |
| 所在地 |
大阪府大阪市西区江之子島2丁目 |
| 価格 |
1億1,750万円
|
| 交通 | 大阪メトロ中央線「阿波座」駅徒歩3 分 大阪メトロ千日前線「阿波座」駅徒歩3 分 大阪メトロ長堀鶴見線「西長堀」駅徒歩12 分 |
| 間取り | 1SLDK ※Sはサービスルーム(納戸) |
| 専有面積 | 56.07m2(壁芯) |
| 所在階 構造 |
27階部分/地上46階地下1階建て 鉄筋コンクリート造 |
| 築年月 | 2016年01月 |
| バルコニー(テラス)面積 | 7.27m2 |
| 採光方向 | 東 |
| 総戸数 | 565 戸 |
| 管理形態 管理方式 管理会社 |
管理会社に全部委託 日勤 長谷工コミュニティ |
| 新築時売主 | 名鉄不動産/関電不動産他 |
| 施工会社 | 長谷工コーポレーション |
| 管理費(月額) | 11,040円 |
| 修繕積立金(月額) | 8,130円 |
| 引渡時期 | 相談 |
| 現況 | 賃貸中 |
| 駐車場 | 空無し |
| 土地権利 | 所有権 |
| 取引態様 | 仲介 |
| 備考 |
|
この情報は2026年05月07日当社物件システムのデータにもとづくものであり、次回更新予定日は2026年05月21日です。
