• 新着
  • オーナーチェンジ

本物件は投資向け物件です

想定利回り
4.00 %
年間想定賃料等
1,728万
月額賃料等
144万
現在の賃貸状況
全部賃貸中
オーナーチェンジ

投資用不動産

4億3,200万円

中野区松が丘2丁目一棟ビル

ビル(一棟)

ビル(一棟)

  • 新着
  • オーナーチェンジ
4億3,200万円

中野区松が丘2丁目一棟ビル

想定利回り
4.00 %

◆賃借人へ一棟貸(民泊運営中) ◇築年月:2025年2月築

東京都中野区松が丘2丁目

建物面積300.40m2(約90.87坪)・土地面積102.47m2(約30.99坪)※公簿・2025年02月築

◆賃借人へ一棟貸(民泊運営中) ◇築年月:2025年2月築

東京都中野区松が丘2丁目

建物面積300.40m2(約90.87坪)・土地面積102.47m2(約30.99坪)※公簿・2025年02月築

物件のポイント

本物件は投資向け物件です

想定利回り
4.00 %
想定利回り
4.00 %
年間想定賃料等
1,728万
月額賃料等
144万
現在の賃貸状況
全部賃貸中
オーナーチェンジ
投資用・事業用不動産について
  • 賃料等の収入や利回りは、将来にわたり、確実に得られることを保証するものではありません。
  • 賃料等は、賃貸中のものについては現在の賃料等で、新築および空室または一部空き有のものについては、周辺の賃料相場に基づき満室となった場合を想定して表示しています。
  • 利回りは、現況または満室想定時の賃料等の収入に基づく単純利回り(賃料等の年間合計金額÷ 販売価格(税込))で、公租公課や維持管理費等の必要経費は控除されていません。

物件の特徴

  • 築5年以内
    築5年以内
  • 容積率100%以上
    容積率100%以上
  • スーパーまで徒歩10分以内
    スーパーまで徒歩10分以内
  • コンビニまで徒歩5分以内
    コンビニまで徒歩5分以内
  • 近隣商業地域
    近隣商業地域
  • セットバックなし・済み
    セットバックなし・済み
  • 土地面積30坪以上
    土地面積30坪以上
  • 前面道路公道
    前面道路公道
  • 築5年以内
    築5年以内
  • 容積率100%以上
    容積率100%以上
  • スーパーまで徒歩10分以内
    スーパーまで徒歩10分以内
  • コンビニまで徒歩5分以内
    コンビニまで徒歩5分以内
  • 近隣商業地域
    近隣商業地域
  • セットバックなし・済み
    セットバックなし・済み
  • 土地面積30坪以上
    土地面積30坪以上
  • 前面道路公道
    前面道路公道
  • 築5年以内
  • セットバックなし・済み
  • 土地面積30坪以上
    リフォーム

    --

    立地・周辺環境

    容積率100%以上|スーパーまで徒歩10分以内|コンビニまで徒歩5分以内|近隣商業地域|防火・準防火|前面道路公道

    セールスポイント

    〔交通アクセス〕
    ◆1駅利用可能
    ・西武鉄道新宿線「新井薬師前」駅 徒歩13分

    ●建物概要
    ・建物面積:300.40u(90.87坪)
    ・築年月:2025年2月築
    ・構造:鉄筋コンクリート造陸屋根4階建て
    ・賃貸状況(オーナーチェンジ) ☆賃借人へ一棟貸(民泊運営中)☆
    ・月額賃料:1440000円(2026年2月27日現在)
    ・年額賃料:17280000円(2026年2月27日現在)
    ・表面利回り:4.0%
    ※定期賃貸借契約(2025年4月1日〜2030年3月31日)
    ※賃料等の収入や利回りは、将来にわたり、確実に得られることを保証するものではありません。
    ※賃料等は、賃貸中のものについては現在の賃料等で、新築および空室または一部空き有のものについては、周辺の賃料相場に基づき満室となった場合を想定して表示しています。
    ※利回りは、現況または満室想定時の賃料等の収入に基づく単純利回り(賃料等の年間合計金額÷ 販売価格(税込)×100%)で、公租公課や維持管理費等の必要経費は控除されていません。

    ・固定資産評価(関係)証明書による固定資産税・都市計画税額:土地 350139円(2025年度分)

    ●土地概要(所有権)
    ・土地面積(公簿):102.47u(30.99坪)
    ・接道状況:西側公道、幅員約5.9mに約10.3m接する
    ・用途地域:近隣商業地域
    ・建ぺい率:80% 
    ・容積率:300% 
    ・地目:宅地
    ・高度地区:第三種高度地区

    《お買い物》
    ・コモディイイダ沼袋店 徒歩4分(約280m)
    ・ローソン江古田一丁目店 徒歩3分(約180m)

    担当からのひとこと

    この度は、本物件の詳細ページをご覧いただきまして、誠にありがとうございます。

    詳細資料のお問い合わせは、下記フリーコールから、
    担当 石動(イシドウ) までお気軽にお問い合わせください。


    お客様専用フリーコール:0120-492-428

    現在ご所有の不動産から買い替え等をご検討の場合も、お気軽にお問い合わせください。
    ご所有不動産の無料査定、ご相談も承ります。

    皆様からのお問い合わせを心よりお待ちしております。

    ・コモディイイダ沼袋店 徒歩4分(約280m)
    ・ローソン江古田一丁目店 徒歩3分(約180m)
    ・セブンイレブン中野江古田1丁目店 徒歩5分(約400m)
    ・まいばすけっと沼袋2丁目店 徒歩7分(約500m)

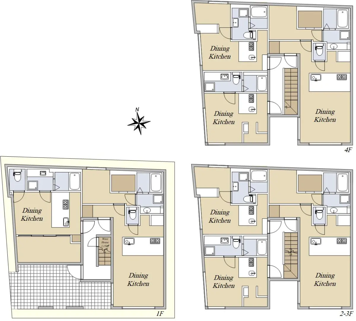
    物件詳細

    物件名 中野区松が丘2丁目一棟ビル
    物件番号 15124013
    所在地 東京都中野区松が丘2丁目
    価格
    4億3,200万円
    交通 西武新宿線新井薬師前」駅徒歩13 分
    間取り 11
    建物面積 300.40m2(約90.87坪)
    土地面積 102.47m2(約30.99坪)※公簿
    階数
    構造
    地上4階建て
    鉄筋コンクリート造
    築年月 2025年02月
    地目
    地勢
    宅地
    平坦
    総住戸数 11 戸
    各住戸の専有面積 最小18.00m2〜最大34.00m2
    接道状況 一方道路・西5.9m(公道)接面10.3m
    建ぺい率 80%
    容積率 300%
    都市計画 市街化区域
    用途地域 近隣商業地域
    地域・地区 防火地域
    施工会社 株式会社ビルダリッジ
    引渡時期 相談
    現況 賃貸中
    駐車場 無し
    土地権利 所有権
    取引態様 仲介
    国土法 届出不要
    備考
    • ・間取り図帖数不明。
    • ・写真は撮影後、掲載予定。
    • ・賃借人へ一棟貸。民泊運営中(2025年5月〜)。

    この情報は2026年02月27日当社物件システムのデータにもとづくものであり、次回更新予定日は2026年03月13日です。