• 新着
  • オーナーチェンジ

本物件は投資向け物件です

想定利回り
6.15 %
年間想定賃料等
595万2,000
月額賃料等
49万6,000
現在の賃貸状況
全部賃貸中
オーナーチェンジ

投資用不動産

9,670万円

船橋市前原東5丁目一棟アパート

アパート

アパート

  • 新着
  • オーナーチェンジ
9,670万円

船橋市前原東5丁目一棟アパート

想定利回り
6.15 %

京成松戸線「薬園台駅」15分 オーナーチェンジ 表面利回り6.15%

千葉県船橋市前原東5丁目

建物面積190.66m2(約57.67坪)・土地面積162.72m2(約49.22坪)※実測/セットバック:4.20m2含む/他に私道負担:3.95m2あり・2022年12月築

京成松戸線「薬園台駅」15分 オーナーチェンジ 表面利回り6.15%

千葉県船橋市前原東5丁目

建物面積190.66m2(約57.67坪)・土地面積162.72m2(約49.22坪)※実測/セットバック:4.20m2含む/他に私道負担:3.95m2あり・2022年12月築

物件のポイント

本物件は投資向け物件です

想定利回り
6.15 %
想定利回り
6.15 %
年間想定賃料等
595万2,000
月額賃料等
49万6,000
現在の賃貸状況
全部賃貸中
オーナーチェンジ
投資用・事業用不動産について
  • 賃料等の収入や利回りは、将来にわたり、確実に得られることを保証するものではありません。
  • 賃料等は、賃貸中のものについては現在の賃料等で、新築および空室または一部空き有のものについては、周辺の賃料相場に基づき満室となった場合を想定して表示しています。
  • 利回りは、現況または満室想定時の賃料等の収入に基づく単純利回り(賃料等の年間合計金額÷ 販売価格(税込)×100%)で、公租公課や維持管理費等の必要経費は控除されていません。

物件の特徴

  • 築5年以内
    築5年以内
  • 容積率100%以上
    容積率100%以上
  • 第一種中高層住居専用地域
    第一種中高層住居専用地域
  • 土地面積30坪以上
    土地面積30坪以上
  • 築5年以内
    築5年以内
  • 容積率100%以上
    容積率100%以上
  • 第一種中高層住居専用地域
    第一種中高層住居専用地域
  • 土地面積30坪以上
    土地面積30坪以上
  • 築5年以内
  • 土地面積30坪以上
    リフォーム

    --

    立地・周辺環境

    容積率100%以上|第一種中高層住居専用地域

    セールスポイント

    〔交通アクセス〕
    2駅利用可能
    ・京成松戸線「薬園台」駅 徒歩15分
    ・京成松戸線「前原」駅 徒歩15分

    〔物件概要〕
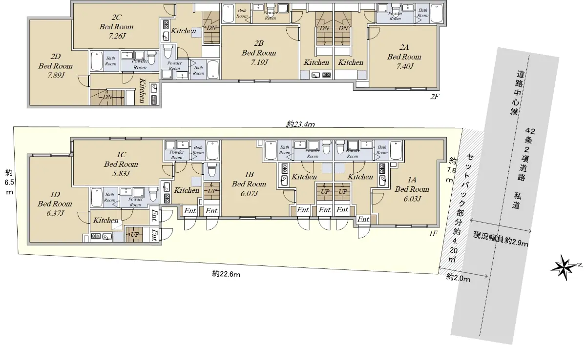
    ・船橋市前原東5丁目一棟アパート
    ●建物概要
    ・建物面積:190.66u(57.67坪)
    ・築年月:2022年12月築
    ・構造:木造スレート葺2階建て
    ・戸数:1K×8
    ・賃貸状況(オーナーチェンジ):全部賃貸中(現況貸室数8/総貸室数8)
    ・月額賃料:496000円(2025年9月28日現在)
    ・年額賃料:5952000円(2025年9月28日現在)※現況貸室数8/総貸室数8
    ・表面利回り:6.15%
    ※賃料等の収入や利回りは、将来にわたり、確実に得られることを保証するものではありません。
    ※賃料等は、賃貸中のものについては現在の賃料等で、新築および空室または一部空き有のものについては、周辺の賃料相場に基づき満室となった場合を想定して表示しています。
    ※利回りは、現況または満室想定時の賃料等の収入に基づく単純利回り(賃料等の年間合計金額÷ 販売価格(税込)×100%)で、公租公課や維持管理費等の必要経費は控除されていません。

    ●土地概要(所有権)
    土地面積(実測):162.72u(49.22坪)セットバック面積約4.20u含む/他に私道負担3.95uあり
    ・接道状況:北側私道、幅員約2.9mに約7.6m接する
    ・用途地域:第一種中高層住居専用地域
    ・建蔽率:60% 
    ・容積率:160% ※容積率は、前面道路幅員による数値です。
    ・地目:宅地
    ・高度地区:「第一種高度地区」
    ・その他: 建築基準法22条区域

    担当からのひとこと

    この度は「船橋市前原東5丁目一棟アパート」をご覧頂き誠に有難う御座います。
    本物件は、2駅利用可能で利便性良好です。
    是非一度ご検討ください。

    ■物件資料
    分譲時パンフレットや周辺環境などの資料もご提供可能です。
    お客様に合わせた資金計画書も無料にて作成させて頂きます。

    ■ご購入サポート
    【不動産市況】【経済状況】【資金計画】【お引き渡しまでの流れ】等を考慮致しまして、お客様にとって最善のご提案をさせて頂きます。

    --

    物件詳細

    物件名 船橋市前原東5丁目一棟アパート
    物件番号 151G4012
    所在地 千葉県船橋市前原東5丁目
    価格
    9,670万円
    交通 京成電鉄松戸線薬園台」駅徒歩15 分
    京成電鉄松戸線前原」駅徒歩15 分
    建物面積 190.66m2(約57.67坪)
    土地面積 162.72m2(約49.22坪)※実測/セットバック:4.20m2含む/他に私道負担:3.95m2あり
    階数
    構造
    地上2階建て
    木造
    築年月 2022年12月
    地目
    地勢
    宅地
    総住戸数 8 戸
    各住戸の専有面積 最小21.97m2〜最大26.61m2
    接道状況 一方道路・北2.9m(私道)接面7.6m
    建ぺい率 60%
    容積率 160%
    都市計画 市街化区域
    用途地域 第1種中高層住居専用地域
    地域・地区 第一種高度地区、建築基準法22条区域
    その他月額費用 インターネット使用料:月額7,920円/ゴミ収集費用:13,200円
    引渡時期 相談
    現況 賃貸中
    駐車場 無し
    土地権利 所有権
    取引態様 仲介
    国土法 届出不要

    この情報は2025年10月05日当社物件システムのデータにもとづくものであり、次回更新予定日は2025年10月19日です。