本物件は投資向け物件です

想定利回り
--
年間想定賃料等
--
月額賃料等
--
現在の賃貸状況
空き物件

事業・投資用不動産

6億9,800万円

江東区東陽5丁目一棟ビル

住宅付店舗

住宅付店舗

6億9,800万円

江東区東陽5丁目一棟ビル

想定利回り
--

・構造:鉄筋コンクリート造スレート葺7階建

東京都江東区東陽5丁目

建物面積399.12m2(約120.73坪)・土地面積124.28m2(約37.59坪)※公簿・1992年01月築

・構造:鉄筋コンクリート造スレート葺7階建

東京都江東区東陽5丁目

建物面積399.12m2(約120.73坪)・土地面積124.28m2(約37.59坪)※公簿・1992年01月築

物件のポイント

本物件は投資向け物件です

現在の賃貸状況
空き物件
投資用・事業用不動産について
  • 賃料等の収入や利回りは、将来にわたり、確実に得られることを保証するものではありません。
  • 賃料等は、賃貸中のものについては現在の賃料等で、新築および空室または一部空き有のものについては、周辺の賃料相場に基づき満室となった場合を想定して表示しています。
  • 利回りは、現況または満室想定時の賃料等の収入に基づく単純利回り(賃料等の年間合計金額÷ 販売価格(税込))で、公租公課や維持管理費等の必要経費は控除されていません。

物件の特徴

  • 南道路(南東・南西含む)
    南道路(南東・南西含む)
  • 駐車場有
    駐車場有
  • 準工業地域
    準工業地域
  • セットバックなし・済み
    セットバックなし・済み
  • 土地面積30坪以上
    土地面積30坪以上
  • 前面道路公道
    前面道路公道
  • 南道路(南東・南西含む)
    南道路(南東・南西含む)
  • 駐車場有
    駐車場有
  • 準工業地域
    準工業地域
  • セットバックなし・済み
    セットバックなし・済み
  • 土地面積30坪以上
    土地面積30坪以上
  • 前面道路公道
    前面道路公道
  • 駐車場有
  • セットバックなし・済み
  • 土地面積30坪以上
    リフォーム

    --

    立地・周辺環境

    南道路(南東・南西含む)|準工業地域|防火・準防火|前面道路公道

    セールスポイント

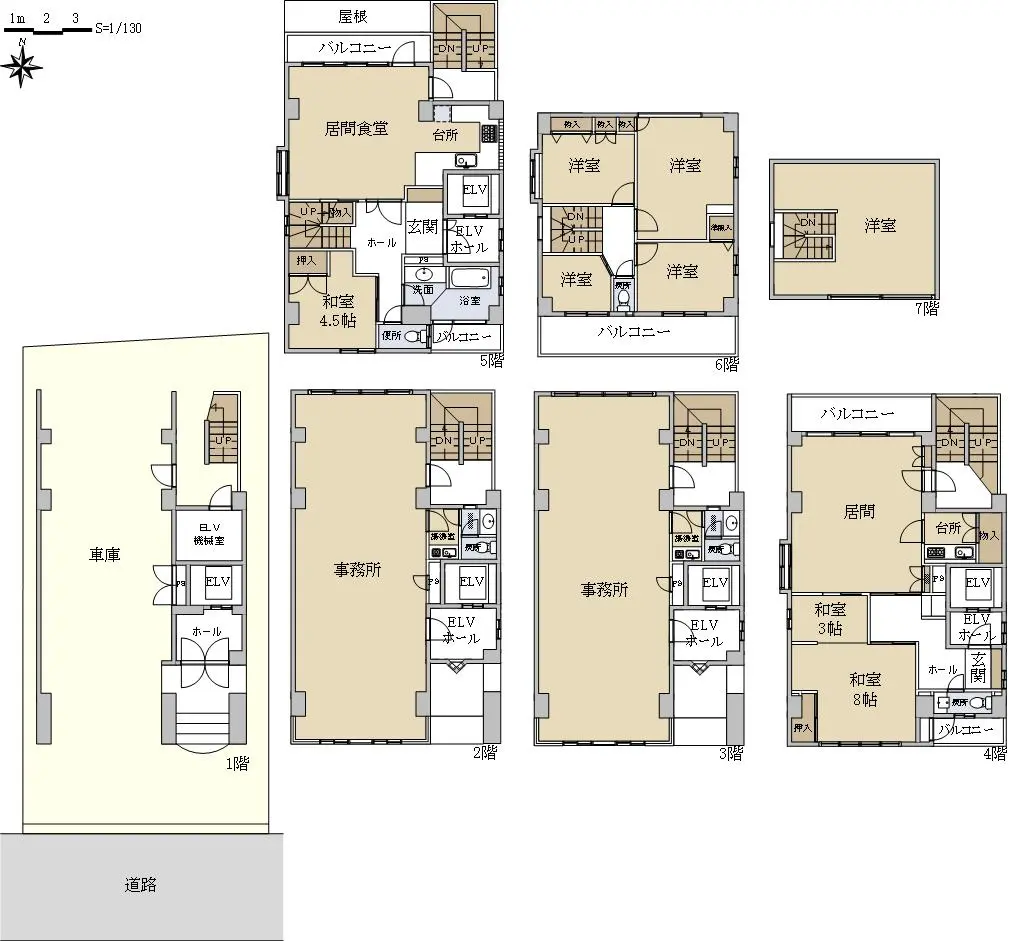
    <物件概要>
    ・土地面積(公簿):124.28u
    ・建物面積(公簿):399.12u
    ・前面道路4.0m


    <アクセス>
    ・東西線「東陽町」駅 徒歩6分<周辺環境>
    ・まいばすけっと 東陽5丁目店 約320m
    ・セブン-イレブン 江東区役所前店 約60m
    ・クリエイトSD 東陽町イースト21店 約260m
    ・江東区東陽小学校 約400m
    ・江東区役所 約150m

    担当からのひとこと

    この度は【江東区東陽5丁目1棟ビル】をご覧いただき、ありがとうございます。

    本物件に関するご質問や資料請求はお気軽に【担当:宮森】までお問合せください。
    皆様からのお問い合わせ 心よりお待ち申し上げております。

    フリーコール【0120−122−271】

    ・まいばすけっと 東陽5丁目店 徒歩4分(約320m)
    ・セブンイレブン江東区役所前店 徒歩1分(約60m)
    ・クリエイトSD東陽町イースト21店 徒歩4分(約260m)
    ・江東区東陽小学校 徒歩5分(約400m)
    ・江東区役所 徒歩2分(約150m)

    物件詳細

    物件名 江東区東陽5丁目一棟ビル
    物件番号 15224031
    所在地 東京都江東区東陽5丁目
    価格
    6億9,800万円
    交通 東京メトロ東西線東陽町」駅徒歩6 分
    建物面積 399.12m2(約120.73坪)
    土地面積 124.28m2(約37.59坪)※公簿
    階数
    構造
    地上7階建て
    鉄筋コンクリート造
    築年月 1992年01月
    地目
    地勢
    宅地
    平坦
    総住戸数 1 戸
    接道状況 一方道路・南4m(公道)接面8.1m
    建ぺい率 60%
    容積率 240% ※前面道路の幅員による制限
    都市計画 市街化区域
    用途地域 準工業地域
    地域・地区 準防火地域
    引渡時期 相談
    現況 居住中
    駐車場 有り/台数1台
    土地権利 所有権
    取引態様 仲介
    備考
    • ・間取り図不明
    • ・駐車場は車種による

    この情報は2026年04月09日当社物件システムのデータにもとづくものであり、次回更新予定日は2026年04月23日です。