• 新着
  • オーナーチェンジ

本物件は投資向け物件です

想定利回り
4.52 %
年間想定賃料等
434万4,000
月額賃料等
36万2,000
現在の賃貸状況
全部賃貸中
オーナーチェンジ

投資用不動産

9,600万円

豊島区池袋本町4丁目 アパート

アパート

アパート

  • 新着
  • オーナーチェンジ
9,600万円

豊島区池袋本町4丁目 アパート

想定利回り
4.52 %

満室想定利回り4.52% 2駅2路線利用可

東京都豊島区池袋本町4丁目

建物面積128.90m2(約38.99坪)・土地面積151.30m2(約45.76坪)※公簿・1996年04月築

満室想定利回り4.52% 2駅2路線利用可

東京都豊島区池袋本町4丁目

建物面積128.90m2(約38.99坪)・土地面積151.30m2(約45.76坪)※公簿・1996年04月築

物件のポイント

本物件は投資向け物件です

想定利回り
4.52 %
想定利回り
4.52 %
年間想定賃料等
434万4,000
月額賃料等
36万2,000
現在の賃貸状況
全部賃貸中
オーナーチェンジ
投資用・事業用不動産について
  • 賃料等の収入や利回りは、将来にわたり、確実に得られることを保証するものではありません。
  • 賃料等は、賃貸中のものについては現在の賃料等で、新築および空室または一部空き有のものについては、周辺の賃料相場に基づき満室となった場合を想定して表示しています。
  • 利回りは、現況または満室想定時の賃料等の収入に基づく単純利回り(賃料等の年間合計金額÷ 販売価格(税込)×100%)で、公租公課や維持管理費等の必要経費は控除されていません。

物件の特徴

  • 容積率100%以上
    容積率100%以上
  • 駅徒歩5分以内
    駅徒歩5分以内
  • スーパーまで徒歩10分以内
    スーパーまで徒歩10分以内
  • コンビニまで徒歩5分以内
    コンビニまで徒歩5分以内
  • 第一種中高層住居専用地域
    第一種中高層住居専用地域
  • 土地面積30坪以上
    土地面積30坪以上
  • 前面道路幅員4.0m以上
    前面道路幅員4.0m以上
  • 容積率100%以上
    容積率100%以上
  • 駅徒歩5分以内
    駅徒歩5分以内
  • スーパーまで徒歩10分以内
    スーパーまで徒歩10分以内
  • コンビニまで徒歩5分以内
    コンビニまで徒歩5分以内
  • 第一種中高層住居専用地域
    第一種中高層住居専用地域
  • 土地面積30坪以上
    土地面積30坪以上
  • 前面道路幅員4.0m以上
    前面道路幅員4.0m以上
  • 土地面積30坪以上
    リフォーム

    --

    立地・周辺環境

    容積率100%以上|駅徒歩5分以内|スーパーまで徒歩10分以内|コンビニまで徒歩5分以内|第一種中高層住居専用地域

    セールスポイント

    〜物件概要〜
    ・東武東上線「北池袋」駅徒歩4分
    ・JR埼京線「板橋」駅徒歩10分

    ・土地面積:151.30u(45.76坪)
    ・建物延床面積:128.9u(38.99坪)
      1階:64.45u 2階:64.45u 
    ・平成8年4月築 木造2階建
    ・現況4戸中4戸賃貸中(2025年10月8日現在)
     満室想定月額賃料等:362000円
     満室想定年額賃料等:4344000円
     満室想定利回り:4.52%

    @賃料等の収入や利回りは、将来にわたり、確実に得られることを保証するものではありません。
    A賃料等は、賃貸中のものについては現在の賃料で、新築及び空室または一部空き有りのものについては、周辺の賃料相場に基づき満室となった場合を想定して表示しています。
    B利回りは、現況または満室想定時の賃料等の収入に基づく単純利回り(賃料等の年間合計金額÷販売価格(税込)×100%)で、公租公課や維持管理費等の必要経費は控除されていません。

    〜インフォメーション〜
    まいばすけっと北池袋駅東店まで約340m 徒歩5分
    まいばすけっと板橋駅南店まで約445m 徒歩6分
    マルエツ板橋駅前店まで約600m 徒歩8分
    ローソンLTF北池袋駅前店まで約295m 徒歩4分
    セブンイレブン北池袋店まで約300m 徒歩4分

    担当からのひとこと

    ご覧いただきありがとうございます。

    東武東上線「北池袋」駅徒歩4分 JR埼京線「板橋」駅徒歩10分
    土地面積:151.30u(45.76坪)平成8年4月築 木造2階建


    物件に関して質問等ございましたら、
    お気軽に下記番号までご連絡ください。

    《フリーコール》0120-288-446 担当:宇佐美

    皆様からのお問い合わせを心よりお待ちしています。

    ・まいばすけっと北池袋駅東店 徒歩5分(約340m)
    ・まいばすけっと板橋駅南店 徒歩6分(約445m)
    ・マルエツ板橋駅前店 徒歩8分(約600m)
    ・ローソンLTF北池袋駅前店 徒歩4分(約295m)
    ・セブンイレブン北池袋店 徒歩4分(約300m)

    物件詳細

    物件名 豊島区池袋本町4丁目 アパート
    物件番号 152P4023
    所在地 東京都豊島区池袋本町4丁目
    価格
    9,600万円
    交通 東武東上線北池袋」駅徒歩4 分
    埼京線板橋」駅徒歩10 分
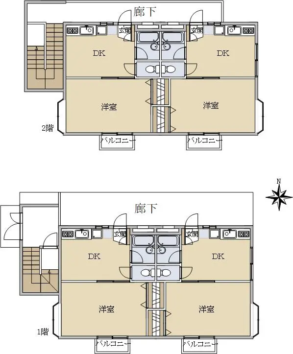
    間取り 1DK
    建物面積 128.90m2(約38.99坪)
    土地面積 151.30m2(約45.76坪)※公簿
    階数
    構造
    地上2階建て
    木造
    築年月 1996年04月
    地目
    地勢
    宅地
    平坦
    総住戸数 4 戸
    各住戸の専有面積 不詳
    接道状況 一方道路・西4m(私道)接面5.8m
    建ぺい率 60%
    容積率 160%
    都市計画 市街化区域
    用途地域 第1種中高層住居専用地域
    引渡時期 相談
    現況 賃貸中
    駐車場 無し
    土地権利 所有権
    取引態様 仲介
    国土法 届出不要

    この情報は2025年10月12日当社物件システムのデータにもとづくものであり、次回更新予定日は2025年10月26日です。