• 新着
  • オーナーチェンジ

本物件は投資向け物件です

想定利回り
4.63 %
年間想定賃料等
369万6,000
月額賃料等
30万8,000
現在の賃貸状況
全部賃貸中
オーナーチェンジ

投資用不動産

7,980万円

板橋区仲宿一棟アパート

アパート

アパート

  • 新着
  • オーナーチェンジ
7,980万円

板橋区仲宿一棟アパート

想定利回り
4.63 %

〜オーナーチェンジ物件・満室稼働中〜 3路線利用可・周辺に大学複数あり

東京都板橋区仲宿

建物面積90.06m2(約27.24坪)・土地面積91.21m2(約27.59坪)※公簿/他に私道負担:14.35m2あり・2016年04月築

〜オーナーチェンジ物件・満室稼働中〜 3路線利用可・周辺に大学複数あり

東京都板橋区仲宿

建物面積90.06m2(約27.24坪)・土地面積91.21m2(約27.59坪)※公簿/他に私道負担:14.35m2あり・2016年04月築

物件のポイント

本物件は投資向け物件です

想定利回り
4.63 %
想定利回り
4.63 %
年間想定賃料等
369万6,000
月額賃料等
30万8,000
現在の賃貸状況
全部賃貸中
オーナーチェンジ
投資用・事業用不動産について
  • 賃料等の収入や利回りは、将来にわたり、確実に得られることを保証するものではありません。
  • 賃料等は、賃貸中のものについては現在の賃料等で、新築および空室または一部空き有のものについては、周辺の賃料相場に基づき満室となった場合を想定して表示しています。
  • 利回りは、現況または満室想定時の賃料等の収入に基づく単純利回り(賃料等の年間合計金額÷ 販売価格(税込)×100%)で、公租公課や維持管理費等の必要経費は控除されていません。

物件の特徴

  • 小学校まで徒歩10分以内
    小学校まで徒歩10分以内
  • スーパーまで徒歩10分以内
    スーパーまで徒歩10分以内
  • コンビニまで徒歩5分以内
    コンビニまで徒歩5分以内
  • 公園まで徒歩5分以内
    公園まで徒歩5分以内
  • 第一種住居地域
    第一種住居地域
  • 前面道路幅員4.0m以上
    前面道路幅員4.0m以上
  • 小学校まで徒歩10分以内
    小学校まで徒歩10分以内
  • スーパーまで徒歩10分以内
    スーパーまで徒歩10分以内
  • コンビニまで徒歩5分以内
    コンビニまで徒歩5分以内
  • 公園まで徒歩5分以内
    公園まで徒歩5分以内
  • 第一種住居地域
    第一種住居地域
  • 前面道路幅員4.0m以上
    前面道路幅員4.0m以上
    • --
    リフォーム

    --

    立地・周辺環境

    小学校まで徒歩10分以内|スーパーまで徒歩10分以内|コンビニまで徒歩5分以内|公園まで徒歩5分以内|第一種住居地域|防火・準防火

    セールスポイント

    *都営三田線「板橋区役所前」駅 徒歩10分
    *都営三田線「板橋本町」駅 徒歩11分
    *埼京線「十条」駅 徒歩18分
    *東武東上線「下板橋」駅 徒歩19分


    ■投資情報
    現況:全5部屋中5部屋賃貸中(2025年10月3日)
    利回り:4.63%
    賃料:308,000円/月

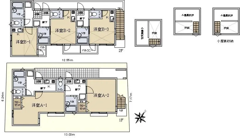
    ○間取り【1F:1K×2部屋 2F:1K×3部屋】
    ○自転車置き場あり
    ○バス・トイレ別室
    ○小屋裏収納付き(2F住戸のみ)

    ●4駅3路線利用可の好立地
    ●周辺に大学複数あり
    ●コンビニ、スーパー、ドラッグストアが徒歩5分圏内

    ≪Life Information≫
    ・ライフ 仲宿店まで約290m 徒歩4分
    ・セブン-イレブン 板橋仲宿店まで約390m 徒歩5分
    ・ココカラファイン 仲宿二番店まで約320m 徒歩4分
    ・まいばすけっと 板橋本町商店街店まで約370m 徒歩5分
    ・板橋区立金沢小学校まで約580m 徒歩8分
    ・板橋区立加賀中学校まで約720m 徒歩9分
    ・東板橋公園まで約240m 徒歩3分
    ・帝京大学 板橋キャンパスまで約520m 徒歩7分
    ・東京家政大学 板橋キャンパスまで約1340m 徒歩17分
    ・マツモトキヨシ 仲宿店まで約550m 徒歩7分
    ・仲宿児童遊園まで約100m 徒歩2分
    ・うえだクリニックまで約370m 徒歩5分

    担当からのひとこと

    ご覧いただき誠にありがとうございます。
    当物件は2016年4月築 木造2階建の一棟アパートです。

    4駅3路線利用可、周辺にコンビニ、スーパー、大学、病院等のある、

    通勤・通学に便利なエリアに位置します。

    ご質問・ご相談など、どうぞお気軽に担当「下川(しもかわ)」までお問合せ下さいませ。

    ー不動産の購入を検討中のお客様へー
    物件のご検討については、一度、現地を見ていただく事をお勧めします。
    間取り図面や写真では判断できない部分もございます。
    現地をご覧頂くことで周辺環境や現地の状況等を確認いただくだけでなく、
    担当者より、物件の長所・短所や購入の流れ等を詳しくご説明させて頂きます。
    現地見学をご希望のお客様はお気軽にお問い合わせ下さい。
    ※フリーコール【0120−364−937】

    ・ライフ 仲宿店 徒歩4分(約290m)
    ・板橋区立金沢小学校 徒歩8分(約580m)
    ・帝京大学 板橋キャンパス 徒歩7分(約520m)
    ・東板橋公園 徒歩3分(約240m)
    ・セブンイレブン 板橋仲宿店 徒歩5分(約390m)

    物件詳細

    物件名 板橋区仲宿一棟アパート
    物件番号 15304005
    所在地 東京都板橋区仲宿
    価格
    7,980万円
    交通 都営三田線板橋区役所前」駅徒歩10 分
    都営三田線板橋本町」駅徒歩11 分
    埼京線十条」駅徒歩18 分
    建物面積 90.06m2(約27.24坪)
    土地面積 91.21m2(約27.59坪)※公簿/他に私道負担:14.35m2あり
    階数
    構造
    地上2階建て
    木造
    築年月 2016年04月
    地目
    地勢
    宅地
    平坦
    総住戸数 5 戸
    各住戸の専有面積 最小14.87m2〜最大23.96m2
    接道状況 一方道路・北東4m(私道)接面7.1m
    建ぺい率 60%
    容積率 160% ※前面道路幅員による制限
    都市計画 市街化区域
    用途地域 第1種住居地域
    地域・地区 準防火地域
    引渡時期 相談
    現況 賃貸中
    駐車場 無し
    土地権利 所有権
    取引態様 仲介
    国土法 届出不要
    備考
    • ・間取り:1K×5戸

    この情報は2025年10月09日当社物件システムのデータにもとづくものであり、次回更新予定日は2025年10月23日です。