• 新着
  • オーナーチェンジ

本物件は投資向け物件です

想定利回り
5.46 %
年間想定賃料等
2,458万2,336
月額賃料等
204万8,528
現在の賃貸状況
全部賃貸中
オーナーチェンジ

投資用不動産

4億5,000万円

大田区蒲田5丁目一棟マンション

マンション(一棟)

マンション(一棟)

  • 新着
  • オーナーチェンジ
4億5,000万円

大田区蒲田5丁目一棟マンション

想定利回り
5.46 %

■JR京浜東北線『蒲田』駅、京浜急行線『蒲田』駅徒歩5分の一棟マンション■

東京都大田区蒲田5丁目

建物面積616.05m2(約186.35坪)・土地面積199.70m2(約60.40坪)※公簿・1995年02月築

■JR京浜東北線『蒲田』駅、京浜急行線『蒲田』駅徒歩5分の一棟マンション■

東京都大田区蒲田5丁目

建物面積616.05m2(約186.35坪)・土地面積199.70m2(約60.40坪)※公簿・1995年02月築

物件のポイント

本物件は投資向け物件です

想定利回り
5.46 %
想定利回り
5.46 %
年間想定賃料等
2,458万2,336
月額賃料等
204万8,528
現在の賃貸状況
全部賃貸中
オーナーチェンジ
投資用・事業用不動産について
  • 賃料等の収入や利回りは、将来にわたり、確実に得られることを保証するものではありません。
  • 賃料等は、賃貸中のものについては現在の賃料等で、新築および空室または一部空き有のものについては、周辺の賃料相場に基づき満室となった場合を想定して表示しています。
  • 利回りは、現況または満室想定時の賃料等の収入に基づく単純利回り(賃料等の年間合計金額÷ 販売価格(税込))で、公租公課や維持管理費等の必要経費は控除されていません。

物件の特徴

  • 南道路(南東・南西含む)
    南道路(南東・南西含む)
  • 駅徒歩5分以内
    駅徒歩5分以内
  • スーパーまで徒歩10分以内
    スーパーまで徒歩10分以内
  • コンビニまで徒歩5分以内
    コンビニまで徒歩5分以内
  • 駐車場有
    駐車場有
  • 商業地域
    商業地域
  • 土地面積50坪以上
    土地面積50坪以上
  • 前面道路公道
    前面道路公道
  • 南道路(南東・南西含む)
    南道路(南東・南西含む)
  • 駅徒歩5分以内
    駅徒歩5分以内
  • スーパーまで徒歩10分以内
    スーパーまで徒歩10分以内
  • コンビニまで徒歩5分以内
    コンビニまで徒歩5分以内
  • 駐車場有
    駐車場有
  • 商業地域
    商業地域
  • 土地面積50坪以上
    土地面積50坪以上
  • 前面道路公道
    前面道路公道
  • 駐車場有
  • 土地面積50坪以上
    リフォーム

    --

    立地・周辺環境

    南道路(南東・南西含む)|駅徒歩5分以内|スーパーまで徒歩10分以内|コンビニまで徒歩5分以内|商業地域|防火・準防火|前面道路公道

    セールスポイント

    ■JR京浜東北線・東急池上線・東急多摩川線『蒲田』駅徒歩5分
     京浜急行電鉄本線『京急蒲田』駅徒歩5分

    ■敷地面積:199.70u


    ■建物延床面積:616.05u



    〜ライフインフォメーション〜
    ・ファミリーマート 蒲田駅東店まで約80m(徒歩1分)
    ・西友蒲田中央店まで約95m(徒歩2分)
    ・まいばすけっと蒲田4丁目店まで約105m(徒歩2分)
    ・オリンピック環八蒲田店まで約400m(徒歩5分)

    担当からのひとこと

    この度は、大田区蒲田5丁目一棟マンションをご覧いただき、ありがとうございます。

    本物件は平成7年築の鉄骨造7階建マンションです。

    物件の詳細については担当の大室までお気軽にお問い合わせください。

    ・ファミリーマート蒲田駅東店 徒歩1分(約80m)
    ・西友蒲田中央店 徒歩2分(約95m)
    ・まいばすけっと蒲田4丁目店 徒歩2分(約105m)
    ・オリンピック環八蒲田店 徒歩5分(約400m)

    物件詳細

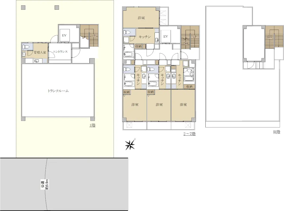
    物件名 大田区蒲田5丁目一棟マンション
    物件番号 15404014
    所在地 東京都大田区蒲田5丁目
    価格
    4億5,000万円
    交通 京浜東北・根岸線蒲田」駅徒歩5 分
    東急池上線蒲田」駅徒歩5 分
    京急本線京急蒲田」駅徒歩5 分
    間取り 1K
    建物面積 616.05m2(約186.35坪)
    土地面積 199.70m2(約60.40坪)※公簿
    階数
    構造
    地上7階建て
    鉄骨造
    築年月 1995年02月
    地目
    地勢
    宅地
    平坦
    総住戸数 24 戸
    各住戸の専有面積 不詳
    接道状況 一方道路・南東5.9m(公道)接面11m
    建ぺい率 80%
    容積率 354% ※(容積率)354% 容積率は、前面道路幅員による制限数値です。
    都市計画 市街化区域
    用途地域 商業地域
    地域・地区 防火地域
    引渡時期 相談
    現況 賃貸中
    駐車場 有り/自走
    土地権利 所有権
    取引態様 仲介
    国土法 届出不要

    この情報は2025年11月30日当社物件システムのデータにもとづくものであり、次回更新予定日は2025年12月14日です。