• 新着
  • オーナーチェンジ

本物件は投資向け物件です

想定利回り
3.29 %
年間想定賃料等
1,284万
月額賃料等
107万
現在の賃貸状況
一部賃貸中
オーナーチェンジ

事業・投資用不動産

3億9,000万円

大田区羽田5丁目一棟マンション

マンション(一棟)

マンション(一棟)

  • 新着
  • オーナーチェンジ
3億9,000万円

大田区羽田5丁目一棟マンション

想定利回り
3.29 %

■京急空港線『天空橋』駅徒歩3分の閑静な住宅地に佇む一棟マンション■

東京都大田区羽田5丁目

建物面積588.57m2(約178.04坪)・土地面積585.53m2(約177.12坪)/セットバック:90.60m2含む/他に私道負担:1.00m2あり・1989年11月築

■京急空港線『天空橋』駅徒歩3分の閑静な住宅地に佇む一棟マンション■

東京都大田区羽田5丁目

建物面積588.57m2(約178.04坪)・土地面積585.53m2(約177.12坪)/セットバック:90.60m2含む/他に私道負担:1.00m2あり・1989年11月築

物件のポイント

本物件は投資向け物件です

想定利回り
3.29 %
想定利回り
3.29 %
年間想定賃料等
1,284万
月額賃料等
107万
現在の賃貸状況
一部賃貸中
オーナーチェンジ
投資用・事業用不動産について
  • 賃料等の収入や利回りは、将来にわたり、確実に得られることを保証するものではありません。
  • 賃料等は、賃貸中のものについては現在の賃料等で、新築および空室または一部空き有のものについては、周辺の賃料相場に基づき満室となった場合を想定して表示しています。
  • 利回りは、現況または満室想定時の賃料等の収入に基づく単純利回り(賃料等の年間合計金額÷ 販売価格(税込))で、公租公課や維持管理費等の必要経費は控除されていません。

物件の特徴

  • 角地
    角地
  • 南道路(南東・南西含む)
    南道路(南東・南西含む)
  • 駅徒歩5分以内
    駅徒歩5分以内
  • 駐車場有
    駐車場有
  • 第一種住居地域
    第一種住居地域
  • 土地面積100坪以上
    土地面積100坪以上
  • 前面道路公道
    前面道路公道
  • 角地
    角地
  • 南道路(南東・南西含む)
    南道路(南東・南西含む)
  • 駅徒歩5分以内
    駅徒歩5分以内
  • 駐車場有
    駐車場有
  • 第一種住居地域
    第一種住居地域
  • 土地面積100坪以上
    土地面積100坪以上
  • 前面道路公道
    前面道路公道
  • 駐車場有
  • 土地面積100坪以上
    リフォーム

    --

    立地・周辺環境

    角地|南道路(南東・南西含む)|駅徒歩5分以内|第一種住居地域|防火・準防火|前面道路公道

    セールスポイント

    ■京急空港線『天空橋』駅徒歩3分、『大鳥居』駅徒歩6分

    ■閑静な住宅地

    ■南・東角部屋にて陽当り・通風良好
    〜ライフインフォメーション〜
    ・フジスーパー羽田店まで約315m(徒歩4分)
    ・ファミリーマート羽田5丁目店まで約300m(徒歩4分)
    ・セブンイレブン大田区羽田店まで約430m(徒歩6分)
    ・羽田5丁目児童公園まで約100m(徒歩2分)

    担当からのひとこと

    この度は、当ページにアクセス頂き、誠にありがとうございます。
    住友不動産ステップの大室と申します。

    本物件は京急空港線『天空橋』駅徒歩3分、『大鳥居』駅徒歩6分と利便性の良い賃貸マンションです。物件に関するご質

    問等ございましたら、お気軽にお申し付けください。また、現地ご見学やその他ご不明な点についてもお気軽にお問合せく
    ださいますようお願い申し上げます。

    ・フジスーパー羽田店 徒歩4分(約315m)
    ・ファミリーマート羽田5丁目店 徒歩4分(約300m)
    ・セブンイレブン大田区羽田店 徒歩6分(約430m)
    ・羽田5丁目児童公園 徒歩2分(約100m)

    物件詳細

    物件名 大田区羽田5丁目一棟マンション
    物件番号 15404017
    所在地 東京都大田区羽田5丁目
    価格
    3億9,000万円
    交通 京急空港線天空橋」駅徒歩3 分
    京急空港線大鳥居」駅徒歩6 分
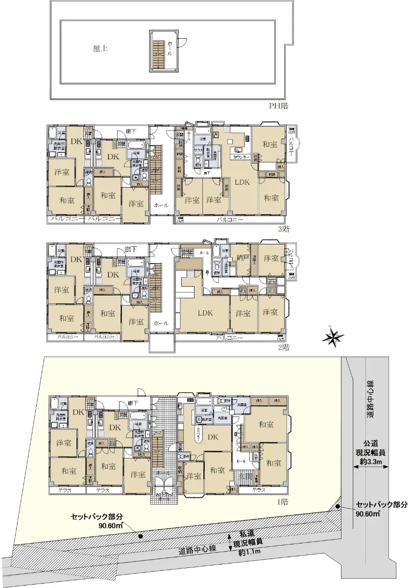
    建物面積 588.57m2(約178.04坪)
    土地面積 585.53m2(約177.12坪)/セットバック:90.60m2含む/他に私道負担:1.00m2あり
    階数
    構造
    地上3階建て
    鉄骨造
    築年月 1989年11月
    地目
    地勢
    宅地
    平坦
    総住戸数 9 戸
    各住戸の専有面積 不詳
    接道状況 角地・東3.3m(公道)接面14.2m/南1.1m(私道)接面32.1m
    建ぺい率 70%
    容積率 160% ※(容積率)160% 容積率は、前面道路幅員による制限数値です。
    都市計画 市街化区域
    用途地域 第1種住居地域
    地域・地区 準防火地域
    引渡時期 相談
    現況 賃貸中
    駐車場 有り/自走
    土地権利 所有権
    取引態様 仲介
    国土法 届出不要
    備考
    • ・対象不動産の隅切り1.00uは敷地に算入できます。

    この情報は2026年02月08日当社物件システムのデータにもとづくものであり、次回更新予定日は2026年02月22日です。