福岡営業センター
  • TEL
    0120-330-128
  • 最寄駅
    • ・福岡市空港線 天神駅
    • ・西鉄天神大牟田線 西鉄福岡(天神)駅

取扱物件一覧(中古一戸建て)

  • マンション
  • 中古一戸建て
  • 新築一戸建て
  • 土地
  • 事業用
  • 投資用

30件中1〜30件を表示

  • 画像を大きく表示
  • リストで表示

表示件数

並び替え

チェックした物件をまとめて

資料請求・お問い合わせ

『日常に四季がある邸宅。時間と共に高まる品位こそが、この住まいの本質』

  • 南道路(南西・南東含む)に接道
  • 建物面積が100m?以上
フロア画像を拡大する
画像枚数20枚
価格
2億4,000万円
所在地
福岡県福岡市南区平和2丁目
交通

西鉄天神大牟田線西鉄平尾」駅徒歩12分

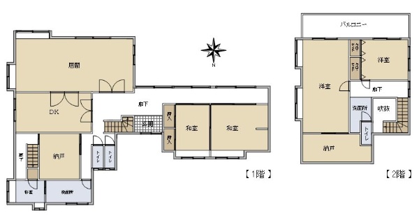
間取り/建物面積
3LDK / 261.45m²
土地面積
568m²
築年月
2005年04月築
  • 気になるリストへ
  • 比較リストへ

資料請求・お問い合わせ

■□土地面積:約163坪/建物面積:約55坪の二世帯住宅□■

  • リフォーム済み
  • 低層住居専用地域に立地
  • 建物面積が100m?以上
フロア画像を拡大する
画像枚数9枚
価格
2,280万円
所在地
福岡県福岡市早良区脇山2丁目
交通

福岡市七隈線野芥」駅バス18分徒歩2分

間取り/建物面積
6LDK / 182.22m²
土地面積
541.92m²
築年月
1983年11月築
  • 気になるリストへ
  • 比較リストへ

資料請求・お問い合わせ

福岡市七隈線「茶山駅」徒歩12分

  • 低層住居専用地域に立地
  • 建物面積が100m?以上
フロア画像を拡大する
画像枚数8枚
価格
6,200万円
所在地
福岡県福岡市城南区田島5丁目
交通

福岡市七隈線茶山」駅徒歩12分

間取り/建物面積
5LDK / 148.22m²
土地面積
348.11m²
築年月
1980年08月築
  • 気になるリストへ
  • 比較リストへ

資料請求・お問い合わせ

■延床面積144.08u■2階建の4LDK+書斎■オール電化

  • リフォーム済み
  • 低層住居専用地域に立地
  • 建物面積が100m?以上
フロア画像を拡大する
画像枚数5枚
価格
3,480万円
所在地
福岡県太宰府市高雄6丁目
交通

西鉄天神大牟田線朝倉街道」駅バス9分徒歩2分

間取り/建物面積
4LDK / 144.08m²
土地面積
264.77m²
築年月
1988年04月築
  • 気になるリストへ
  • 比較リストへ

資料請求・お問い合わせ

積水ハウス施工の注文住宅/南東向き/庭・カーポート付

  • 南道路(南西・南東含む)に接道
  • 低層住居専用地域に立地
  • 建物面積が100m?以上
フロア画像を拡大する
画像枚数27枚
価格
3,180万円
所在地
福岡県福岡市城南区樋井川2丁目
交通

福岡市七隈線六本松」駅バス17分徒歩3分

間取り/建物面積
3LDK / 124.62m²
土地面積
168m²
築年月
1992年05月築
  • 気になるリストへ
  • 比較リストへ

資料請求・お問い合わせ

5LDK+3LDK/RC造3階建/二世帯住宅/南東角地/駐車スペース3台

  • リフォーム済み
  • 南道路(南西・南東含む)に接道
  • 角地
  • 建物面積が100m?以上
フロア画像を拡大する
画像枚数25枚
価格
4,980万円
所在地
福岡県福岡市南区花畑2丁目
交通

西鉄天神大牟田線高宮」駅バス21分徒歩5分

間取り/建物面積
5LDK / 227.02m²
土地面積
142.27m²
築年月
1995年05月築
  • 気になるリストへ
  • 比較リストへ

資料請求・お問い合わせ

JR筑肥線「浜崎駅」徒歩3分!67.01坪RC造戸建!

  • リフォーム済み
  • 駅徒歩10分以内
  • 南道路(南西・南東含む)に接道
  • 建物面積が100m?以上
フロア画像を拡大する
画像枚数23枚
価格
2,180万円
所在地
佐賀県唐津市浜玉町浜崎
交通

筑肥線浜崎」駅徒歩3分

間取り/建物面積
5LDK / 221.54m²
土地面積
405.37m²
築年月
1996年03月築
  • 気になるリストへ
  • 比較リストへ

資料請求・お問い合わせ

2000年4月築のオール電化住宅♪ 一条工務店の注文住宅♪

  • リフォーム済み
  • 低層住居専用地域に立地
  • 建物面積が100m?以上
フロア画像を拡大する
画像枚数22枚
価格
3,180万円
所在地
福岡県糸島市高田3丁目
交通

筑肥線周船寺」駅徒歩17分

間取り/建物面積
5LDK / 142.53m²
土地面積
231.42m²
築年月
2000年04月築
  • 気になるリストへ
  • 比較リストへ

資料請求・お問い合わせ

令和5年12月築!駐車場スペース2台あり(車種による)!

  • 築10年以内
フロア画像を拡大する
画像枚数20枚
価格
3,980万円
所在地
福岡県福岡市東区松崎3丁目
交通

西鉄貝塚線名島」駅徒歩13分

間取り/建物面積
4LDK / 98.01m²
土地面積
122.26m²
築年月
2023年12月築
  • 気になるリストへ
  • 比較リストへ

資料請求・お問い合わせ

■□2023年6月築□「六本松駅」徒歩5分/大濠公園徒歩7分の立地□■

  • 駅徒歩10分以内
  • 築10年以内
フロア画像を拡大する
画像枚数20枚
価格
7,480万円
所在地
福岡県福岡市中央区草香江1丁目
交通

福岡市七隈線六本松」駅徒歩5分

間取り/建物面積
4LDK / 93.88m²
土地面積
68.55m²
築年月
2023年06月築
  • 気になるリストへ
  • 比較リストへ

資料請求・お問い合わせ

中央区笹丘1丁目 2022年築3階建 バス停と駅が徒歩圏内

  • 築10年以内
フロア画像を拡大する
画像枚数20枚
価格
5,280万円
所在地
福岡県福岡市中央区笹丘1丁目
交通

福岡市七隈線六本松」駅徒歩14分

間取り/建物面積
4LDK / 98.94m²
土地面積
66.71m²
築年月
2022年02月築
  • 気になるリストへ
  • 比較リストへ

資料請求・お問い合わせ

LDKやバルコニーから博多湾を望む海岸沿いのデザイナーハウス!(天候による)

  • 南道路(南西・南東含む)に接道
  • 角地
  • 建物面積が100m?以上
フロア画像を拡大する
画像枚数19枚
価格
1億1,800万円
所在地
福岡県福岡市中央区福浜1丁目
交通

福岡市空港線唐人町」駅徒歩19分

間取り/建物面積
4LDK / 137.87m²
土地面積
198.31m²
築年月
2003年12月築
  • 気になるリストへ
  • 比較リストへ

資料請求・お問い合わせ

5LDK+LDKの二世帯住宅!2015年07月築!セルコホームの注文住宅!

  • 低層住居専用地域に立地
  • 建物面積が100m?以上
フロア画像を拡大する
画像枚数19枚
価格
9,080万円
所在地
福岡県福岡市西区豊浜2丁目
交通

福岡市空港線室見」駅徒歩25分

福岡市空港線姪浜」駅バス11分徒歩3分

間取り/建物面積
5LDK / 173.9m²
土地面積
231.83m²
築年月
2015年07月築
  • 気になるリストへ
  • 比較リストへ

資料請求・お問い合わせ

【松本池】バス停まで徒歩1分!敷地面積120.09坪!建物面積73.50坪!

  • 低層住居専用地域に立地
  • 建物面積が100m?以上
フロア画像を拡大する
画像枚数19枚
価格
5,990万円
所在地
福岡県福岡市南区桧原2丁目
交通

西鉄天神大牟田線高宮」駅バス15分徒歩1分

間取り/建物面積
4SLDK / 242.99m²
土地面積
397.02m²
築年月
1986年04月築
  • 気になるリストへ
  • 比較リストへ

資料請求・お問い合わせ

□■□令和4年3月築・ミサワホーム施工注文住宅■□■

  • 築10年以内
  • 低層住居専用地域に立地
  • 建物面積が100m?以上
フロア画像を拡大する
画像枚数18枚
価格
6,780万円
所在地
福岡県福岡市南区西長住2丁目
交通

西鉄天神大牟田線西鉄平尾」駅バス18分徒歩3分

間取り/建物面積
3LDK / 133.28m²
土地面積
172.76m²
築年月
2022年03月築
  • 気になるリストへ
  • 比較リストへ

資料請求・お問い合わせ

平尾駅徒歩10分!令和6年9月築、屋上ルーフバルコニー、オール電化、太陽光発電

  • 駅徒歩10分以内
  • 築10年以内
フロア画像を拡大する
画像枚数18枚
価格
8,980万円
所在地
福岡県福岡市中央区平尾4丁目
交通

西鉄天神大牟田線西鉄平尾」駅徒歩10分

福岡市七隈線薬院大通」駅徒歩14分

間取り/建物面積
4LDK / 92.79m²
土地面積
88.86m²
築年月
2024年09月築
  • 気になるリストへ
  • 比較リストへ

資料請求・お問い合わせ

土地面積240.49u(72.74坪)! 建物面積124.24u(27.58u)!

  • リフォーム済み
  • 低層住居専用地域に立地
  • 建物面積が100m?以上
フロア画像を拡大する
画像枚数16枚
価格
2,780万円
所在地
福岡県糟屋郡志免町石橋台
交通

福岡市空港線福岡空港」駅バス15分徒歩7分

間取り/建物面積
5LDK / 124.24m²
土地面積
240.49m²
築年月
1988年02月築
  • 気になるリストへ
  • 比較リストへ

資料請求・お問い合わせ

重留3丁目!敷地面積約47.89坪!

  • 南道路(南西・南東含む)に接道
  • 低層住居専用地域に立地
フロア画像を拡大する
画像枚数15枚
価格
1,880万円
所在地
福岡県福岡市早良区重留3丁目
交通

福岡市七隈線野芥」駅バス6分徒歩10分

間取り/建物面積
3LDK / 76.43m²
土地面積
158.33m²
築年月
1988年01月築
  • 気になるリストへ
  • 比較リストへ

資料請求・お問い合わせ

重留3丁目戸建♪閑静な住宅地♪

  • 南道路(南西・南東含む)に接道
  • 低層住居専用地域に立地
フロア画像を拡大する
画像枚数15枚
価格
2,500万円
所在地
福岡県福岡市早良区重留3丁目
交通

福岡市七隈線野芥」駅バス6分徒歩6分

間取り/建物面積
3LDK / 92.74m²
土地面積
200.15m²
築年月
1985年08月築
  • 気になるリストへ
  • 比較リストへ

資料請求・お問い合わせ

☆平成26年6月築/間取り:4LDK/並列駐車スペース/ウッドデッキ☆ 

  • 低層住居専用地域に立地
フロア画像を拡大する
画像枚数13枚
価格
2,980万円
所在地
福岡県福岡市城南区東油山4丁目
交通

福岡市七隈線福大前」駅バス13分徒歩8分

間取り/建物面積
4LDK / 97.29m²
土地面積
128.66m²
築年月
2014年06月築
  • 気になるリストへ
  • 比較リストへ

資料請求・お問い合わせ

■東油山2丁目地下1階付2階建中古戸建

  • 南道路(南西・南東含む)に接道
  • 低層住居専用地域に立地
  • 建物面積が100m?以上
フロア画像を拡大する
画像枚数13枚
価格
6,480万円
所在地
福岡県福岡市城南区東油山2丁目
交通

福岡市七隈線福大前」駅徒歩27分

福岡市七隈線福大前」駅バス14分徒歩5分

間取り/建物面積
6SLDK / 222.8m²
土地面積
364.58m²
築年月
1996年11月築
  • 気になるリストへ
  • 比較リストへ

資料請求・お問い合わせ

■小郡市横隈の中古戸建 ■三沢駅徒歩12分 ■駐車場2台・南側庭・オール電化

  • 低層住居専用地域に立地
  • 建物面積が100m?以上
フロア画像を拡大する
画像枚数12枚
価格
2,980万円
所在地
福岡県小郡市横隈
交通

西鉄天神大牟田線三沢」駅徒歩12分

間取り/建物面積
4LDK / 153.81m²
土地面積
307.01m²
築年月
1992年11月築
  • 気になるリストへ
  • 比較リストへ

資料請求・お問い合わせ

JR篠栗線『門松』駅徒歩2分の1階部分店舗利用可の住宅!!

  • 駅徒歩10分以内
  • 南道路(南西・南東含む)に接道
フロア画像を拡大する
画像枚数12枚
価格
3,490万円
所在地
福岡県糟屋郡粕屋町大字大隈
交通

篠栗線門松」駅徒歩2分

間取り/建物面積
2LDK / 86m²
土地面積
148.18m²
築年月
2009年03月築
  • 気になるリストへ
  • 比較リストへ

資料請求・お問い合わせ

  • 築10年以内
  • 建物面積が100m?以上
フロア画像を拡大する
画像枚数10枚
価格
4,880万円
所在地
福岡県福岡市南区花畑2丁目
交通

西鉄天神大牟田線高宮」駅バス21分徒歩5分

間取り/建物面積
4LDK / 108.06m²
土地面積
149.41m²
築年月
2023年11月築
  • 気になるリストへ
  • 比較リストへ

資料請求・お問い合わせ

土地面積160.73坪/建物面積226.27u/ガレージ有

  • 南道路(南西・南東含む)に接道
  • 低層住居専用地域に立地
  • 建物面積が100m?以上
フロア画像を拡大する
画像枚数8枚
価格
1億4,800万円
所在地
福岡県福岡市南区長住1丁目
交通

西鉄天神大牟田線高宮」駅バス10分徒歩9分

間取り/建物面積
5LDK / 226.27m²
土地面積
531.34m²
築年月
1991年06月築
  • 気になるリストへ
  • 比較リストへ

資料請求・お問い合わせ

平成12年3月築!4LDK中古戸建!二沿線利用可!土地面積約51.33坪!

  • 駅徒歩10分以内
  • 建物面積が100m?以上
フロア画像を拡大する
画像枚数5枚
価格
1億7,800万円
所在地
福岡県福岡市中央区警固3丁目
交通

福岡市七隈線薬院大通」駅徒歩8分

福岡市七隈線桜坂」駅徒歩7分

西鉄天神大牟田線薬院」駅徒歩14分

間取り/建物面積
4LDK / 125.65m²
土地面積
169.7m²
築年月
2000年03月築
  • 気になるリストへ
  • 比較リストへ

資料請求・お問い合わせ

■平成3年4月築■木造スレート葺2階建/5SLDK

  • 南道路(南西・南東含む)に接道
  • 低層住居専用地域に立地
  • 建物面積が100m?以上
画像枚数20枚
価格
2,380万円
所在地
福岡県筑紫野市筑紫駅前通2丁目
交通

西鉄天神大牟田線筑紫」駅徒歩14分

間取り/建物面積
5SLDK / 124.2m²
土地面積
234.45m²
築年月
1991年04月築
  • 気になるリストへ
  • 比較リストへ

資料請求・お問い合わせ

☆三井ホーム施工 敷地面積約78.52坪 陽当たり良好

  • 低層住居専用地域に立地
  • 建物面積が100m?以上
画像枚数7枚
価格
3,480万円
所在地
福岡県福岡市東区青葉7丁目
交通

香椎線土井」駅徒歩11分

間取り/建物面積
5LDK / 142.65m²
土地面積
259.6m²
築年月
1982年11月築
  • 気になるリストへ
  • 比較リストへ

資料請求・お問い合わせ

事務所・倉庫兼用可能!3階建5DK戸建!

  • 低層住居専用地域に立地
  • 建物面積が100m?以上
画像枚数6枚
価格
2,980万円
所在地
福岡県糟屋郡志免町片峰中央1丁目
交通

福岡市空港線福岡空港」駅バス17分徒歩1分

間取り/建物面積
5DK / 163.99m²
土地面積
297.53m²
築年月
1993年05月築
  • 気になるリストへ
  • 比較リストへ

資料請求・お問い合わせ

高宮駅徒歩13分、RC造3階建の戸建兼事務所!月額賃料15万円、表面利回り5.29%

  • 建物面積が100m?以上
画像枚数-枚
価格
3,400万円
所在地
福岡県福岡市南区野間3丁目
交通

西鉄天神大牟田線高宮」駅徒歩13分

間取り/建物面積
4LDK / 141.27m²
土地面積
102m²
築年月
1996年09月築
  • 気になるリストへ
  • 比較リストへ

資料請求・お問い合わせ

チェックした物件をまとめて

資料請求・お問い合わせ

  • 新着1週間以内に登録された物件
  • 価格更新1週間以内に価格が更新された物件
  • おすすめ物件営業センターのおすすめ物件
  • リフォーム済みリフォームやリノベーション済み
  • 駅徒歩10分以内駅徒歩10分以内
  • 築10年以内築10年以内
  • 南道路(南西・南東含む)南道路(南西・南東含む)に接道
  • 角地角地
  • 低層住居専用地域低層住居専用地域に立地
  • 建物面積100m²以上建物面積が100m²以上
  • 新築新築物件
  • 【現地見学】オープンハウス開催オープンハウス・予約制内覧会
  • 予告広告販売開始まで契約または予約の申し込みは出来ません