福岡南営業センター
  • TEL
    0120-374-743
  • 最寄駅
    • ・西鉄天神大牟田線 春日原駅
    • ・鹿児島本線 春日駅

取扱物件一覧(中古一戸建て)

  • マンション
  • 中古一戸建て
  • 新築一戸建て
  • 土地
  • 事業用
  • 投資用

31件中1〜30件を表示

  • 画像を大きく表示
  • リストで表示

表示件数

並び替え

チェックした物件をまとめて

資料請求・お問い合わせ

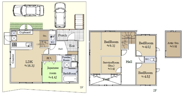
◆延床面積:191.90u(58.04坪)◆並列駐車2台分の駐車スペース有

  • 築10年以内
  • 建物面積が100m?以上
フロア画像を拡大する
画像枚数30枚
価格
1億1,980万円
所在地
福岡県福岡市中央区輝国2丁目
交通

福岡市七隈線六本松」駅バス9分徒歩2分

間取り/建物面積
5LDK / 191.9m²
土地面積
317.35m²
築年月
2024年05月築
  • 気になるリストへ
  • 比較リストへ

資料請求・お問い合わせ

建物面積 34.20坪♪ 日当たり良好♪

  • リフォーム済み
  • 南道路(南西・南東含む)に接道
  • 低層住居専用地域に立地
  • 建物面積が100m?以上
フロア画像を拡大する
画像枚数24枚
価格
3,298万円
所在地
福岡県大野城市南ケ丘1丁目
交通

西鉄天神大牟田線下大利」駅バス16分徒歩1分

鹿児島本線水城」駅徒歩20分

間取り/建物面積
4LDK / 113.08m²
土地面積
233.2m²
築年月
1990年03月築
  • 気になるリストへ
  • 比較リストへ

資料請求・お問い合わせ

◆パナソニックホームズの注文住宅 ◆軽量鉄骨造 ◆2021年9月築

  • 築10年以内
  • 南道路(南西・南東含む)に接道
フロア画像を拡大する
画像枚数21枚
価格
5,490万円
所在地
福岡県福岡市博多区麦野2丁目
交通

鹿児島本線笹原」駅徒歩15分

西鉄天神大牟田線雑餉隈」駅徒歩15分

間取り/建物面積
3LDK / 89.43m²
土地面積
128.46m²
築年月
2021年09月築
  • 気になるリストへ
  • 比較リストへ

資料請求・お問い合わせ

オープンハウスJR鹿児島本線『羽犬塚』駅まで徒歩9分の戸建

  • 駅徒歩10分以内
  • 南道路(南西・南東含む)に接道
  • 建物面積が100m?以上
フロア画像を拡大する
画像枚数20枚
価格
3,480万円
所在地
福岡県筑後市大字山ノ井
交通

鹿児島本線羽犬塚」駅徒歩9分

間取り/建物面積
7DK / 219.77m²
土地面積
918.97m²
築年月
1990年10月築
  • 気になるリストへ
  • 比較リストへ

資料請求・お問い合わせ

オープンハウス夢のスローライフは如何でしょうか?畑付の物件です!

  • 低層住居専用地域に立地
フロア画像を拡大する
画像枚数18枚
価格
3,980万円
所在地
福岡県大野城市乙金台3丁目
交通

西鉄天神大牟田線白木原」駅バス19分徒歩5分

間取り/建物面積
2LDK / 70.07m²
土地面積
286.75m²
築年月
2008年05月築
  • 気になるリストへ
  • 比較リストへ

資料請求・お問い合わせ

■8SLDK■延床面積266.02u■土地面積公簿:332.77u(100.66坪)

  • リフォーム済み
  • 角地
  • 低層住居専用地域に立地
  • 建物面積が100m?以上
フロア画像を拡大する
画像枚数17枚
価格
4,980万円
所在地
福岡県春日市天神山7丁目
交通

博多南線博多南」駅徒歩16分

間取り/建物面積
8SLDK / 266.02m²
土地面積
332.77m²
築年月
1992年04月築
  • 気になるリストへ
  • 比較リストへ

資料請求・お問い合わせ

2駅2沿線利用可♪ 注文住宅/オール電化♪ 県営春日公園まで徒歩4分♪

  • リフォーム済み
  • 駅徒歩10分以内
  • 南道路(南西・南東含む)に接道
  • 建物面積が100m?以上
フロア画像を拡大する
画像枚数28枚
価格
7,480万円
所在地
福岡県春日市春日原南町4丁目
交通

西鉄天神大牟田線春日原」駅徒歩8分

鹿児島本線春日」駅徒歩7分

間取り/建物面積
4LDK / 166.13m²
土地面積
202.43m²
築年月
2002年06月築
  • 気になるリストへ
  • 比較リストへ

資料請求・お問い合わせ

西鉄太宰府線「太宰府」駅まで徒歩8分!土地:534.53u!建物:163.19u

  • 駅徒歩10分以内
  • 低層住居専用地域に立地
  • 建物面積が100m?以上
フロア画像を拡大する
画像枚数26枚
価格
4,180万円
所在地
福岡県太宰府市連歌屋1丁目
交通

西鉄太宰府線太宰府」駅徒歩8分

間取り/建物面積
6LDK / 163.19m²
土地面積
534.53m²
築年月
1965年12月築
  • 気になるリストへ
  • 比較リストへ

資料請求・お問い合わせ

【佐賀市富士町大字畑瀬】8LDKの注文住宅♪ 嘉瀬川ダム眺望良好♪

  • 角地
  • 建物面積が100m?以上
フロア画像を拡大する
画像枚数26枚
価格
5,980万円
所在地
佐賀県佐賀市富士町大字畑瀬
交通

長崎本線佐賀」駅バス46分徒歩32分

間取り/建物面積
8LDK / 348.13m²
土地面積
1960.93m²
築年月
1999年03月築
  • 気になるリストへ
  • 比較リストへ

資料請求・お問い合わせ

東小田小学校まで徒歩11分♪5LDK中古戸建♪「太陽光発電」付き♪

  • リフォーム済み
  • 建物面積が100m?以上
フロア画像を拡大する
画像枚数25枚
価格
2,190万円
所在地
福岡県朝倉郡筑前町東小田
交通

筑豊本線筑前山家」駅バス7分徒歩12分

間取り/建物面積
5LDK / 136.5m²
土地面積
220m²
築年月
2009年01月築
  • 気になるリストへ
  • 比較リストへ

資料請求・お問い合わせ

■住友林業施工の一戸建(建坪:48.84坪)■広々としたLDKは約22.8帖

  • 角地
  • 低層住居専用地域に立地
  • 建物面積が100m?以上
フロア画像を拡大する
画像枚数24枚
価格
4,280万円
所在地
福岡県筑紫野市美しが丘南4丁目
交通

鹿児島本線原田」駅徒歩17分

間取り/建物面積
3LDK / 161.47m²
土地面積
273.5m²
築年月
2004年03月築
  • 気になるリストへ
  • 比較リストへ

資料請求・お問い合わせ

オープンハウス◇2世帯住宅◇ 建物面積207.14uの2LDK+3SLDKの一戸建て♪

  • 南道路(南西・南東含む)に接道
  • 低層住居専用地域に立地
  • 建物面積が100m?以上
フロア画像を拡大する
画像枚数23枚
価格
2,780万円
所在地
福岡県筑紫野市むさしヶ丘2丁目
交通

鹿児島本線天拝山」駅徒歩20分

間取り/建物面積
5SLDK / 207.14m²
土地面積
374.88m²
築年月
2002年01月築
  • 気になるリストへ
  • 比較リストへ

資料請求・お問い合わせ

オープンハウス筑前町立中牟田小学校まで徒歩3分の立地です!

  • 低層住居専用地域に立地
  • 建物面積が100m?以上
フロア画像を拡大する
画像枚数23枚
価格
1,980万円
所在地
福岡県朝倉郡筑前町中牟田
交通

西鉄天神大牟田線朝倉街道」駅バス15分徒歩11分

間取り/建物面積
7LDK / 297.14m²
土地面積
1037m²
築年月
1978年08月築
  • 気になるリストへ
  • 比較リストへ

資料請求・お問い合わせ

積水ハウス施工の注文住宅。軽量鉄骨造2階建♪

  • リフォーム済み
  • 南道路(南西・南東含む)に接道
  • 低層住居専用地域に立地
  • 建物面積が100m?以上
フロア画像を拡大する
画像枚数22枚
価格
2,780万円
所在地
福岡県筑紫野市大字原
交通

西鉄太宰府線太宰府」駅バス9分徒歩7分

西鉄天神大牟田線西鉄二日市」駅バス28分徒歩7分

間取り/建物面積
4LDK / 155.31m²
土地面積
261.47m²
築年月
1997年02月築
  • 気になるリストへ
  • 比較リストへ

資料請求・お問い合わせ

オープンハウス◆軽量鉄骨造の注文住宅◆2001年7月築◆収納スペース豊富な4LDK◆

  • リフォーム済み
  • 建物面積が100m?以上
フロア画像を拡大する
画像枚数21枚
価格
2,990万円
所在地
福岡県春日市日の出町6丁目
交通

鹿児島本線南福岡」駅徒歩17分

西鉄天神大牟田線井尻」駅徒歩20分

間取り/建物面積
4LDK / 143.28m²
土地面積
133.11m²
築年月
2001年07月築
  • 気になるリストへ
  • 比較リストへ

資料請求・お問い合わせ

オープンハウス■ミサワホーム施工■平成3年3月築■4LDK

  • 駅徒歩10分以内
  • 低層住居専用地域に立地
  • 建物面積が100m?以上
フロア画像を拡大する
画像枚数19枚
価格
2,300万円
所在地
福岡県太宰府市五条5丁目
交通

西鉄太宰府線西鉄五条」駅徒歩8分

間取り/建物面積
4LDK / 127.52m²
土地面積
213.08m²
築年月
1991年03月築
  • 気になるリストへ
  • 比較リストへ

資料請求・お問い合わせ

◆西鉄天神大牟田線春日原駅徒歩4分◆住友不動産施工/オール電化の注文住宅◆

  • 駅徒歩10分以内
  • 南道路(南西・南東含む)に接道
  • 建物面積が100m?以上
フロア画像を拡大する
画像枚数18枚
価格
5,980万円
所在地
福岡県春日市春日原東町4丁目
交通

西鉄天神大牟田線春日原」駅徒歩4分

鹿児島本線春日」駅徒歩8分

西鉄天神大牟田線白木原」駅徒歩16分

間取り/建物面積
3LDK / 120.9m²
土地面積
161.67m²
築年月
2015年12月築
  • 気になるリストへ
  • 比較リストへ

資料請求・お問い合わせ

■住友林業施工■2013年3月築■3LDK→4LDKに間取変更可(別途費用)

  • 南道路(南西・南東含む)に接道
  • 低層住居専用地域に立地
  • 建物面積が100m?以上
フロア画像を拡大する
画像枚数18枚
価格
3,780万円
所在地
福岡県大野城市緑ケ丘1丁目
交通

西鉄天神大牟田線下大利」駅バス13分徒歩7分

間取り/建物面積
3LDK / 122.13m²
土地面積
230.54m²
築年月
2013年03月築
  • 気になるリストへ
  • 比較リストへ

資料請求・お問い合わせ

■ミサワホーム施工の注文住宅■「蔵のある家」■リビング天井高約3.2m

  • リフォーム済み
  • 駅徒歩10分以内
  • 南道路(南西・南東含む)に接道
  • 建物面積が100m?以上
フロア画像を拡大する
画像枚数17枚
価格
2,480万円
所在地
福岡県小郡市津古
交通

西鉄天神大牟田線津古」駅徒歩7分

鹿児島本線原田」駅徒歩32分

間取り/建物面積
5LDK / 142.45m²
土地面積
186.91m²
築年月
1997年07月築
  • 気になるリストへ
  • 比較リストへ

資料請求・お問い合わせ

オープンハウス■土地面積公簿:458.00u(138.54坪)■延床面積163.35u

  • 低層住居専用地域に立地
  • 建物面積が100m?以上
フロア画像を拡大する
画像枚数17枚
価格
3,800万円
所在地
福岡県筑紫野市二日市北8丁目
交通

西鉄天神大牟田線」駅徒歩14分

間取り/建物面積
6LDK / 163.35m²
土地面積
458m²
築年月
1985年11月築
  • 気になるリストへ
  • 比較リストへ

資料請求・お問い合わせ

オープンハウス■2001年3月築■4LDK■延床面積:121.05u

  • 南道路(南西・南東含む)に接道
  • 低層住居専用地域に立地
  • 建物面積が100m?以上
フロア画像を拡大する
画像枚数16枚
価格
1,850万円
所在地
福岡県小郡市美鈴が丘3丁目
交通

西鉄天神大牟田線三国が丘」駅徒歩26分

間取り/建物面積
4LDK / 121.05m²
土地面積
202.86m²
築年月
2001年03月築
  • 気になるリストへ
  • 比較リストへ

資料請求・お問い合わせ

■延床面積:98.54u■地積:63.08坪

  • 南道路(南西・南東含む)に接道
  • 低層住居専用地域に立地
フロア画像を拡大する
画像枚数15枚
価格
1,980万円
所在地
福岡県太宰府市高雄1丁目
交通

西鉄天神大牟田線」駅徒歩19分

西鉄天神大牟田線朝倉街道」駅徒歩20分

間取り/建物面積
5SDK / 98.54m²
土地面積
208.54m²
築年月
1987年07月築
  • 気になるリストへ
  • 比較リストへ

資料請求・お問い合わせ

【2003年7月築】収納豊富な3LDK+書斎/駐車場2台可

  • 南道路(南西・南東含む)に接道
  • 角地
  • 低層住居専用地域に立地
  • 建物面積が100m?以上
フロア画像を拡大する
画像枚数14枚
価格
3,480万円
所在地
福岡県太宰府市青葉台1丁目
交通

鹿児島本線水城」駅徒歩19分

間取り/建物面積
3LDK / 114m²
土地面積
158.07m²
築年月
2003年07月築
  • 気になるリストへ
  • 比較リストへ

資料請求・お問い合わせ

〜閑静な住宅地に佇むオール電化の戸建〜

  • 低層住居専用地域に立地
  • 建物面積が100m?以上
フロア画像を拡大する
画像枚数14枚
価格
5,780万円
所在地
福岡県春日市若葉台東5丁目
交通

鹿児島本線春日」駅バス7分徒歩5分

間取り/建物面積
5LDK / 143.74m²
土地面積
198.45m²
築年月
2010年06月築
  • 気になるリストへ
  • 比較リストへ

資料請求・お問い合わせ

■5SLDK■延床面積175.13u■土地面積公簿:353.22u(106.84坪)

  • 建物面積が100m?以上
フロア画像を拡大する
画像枚数13枚
価格
3,680万円
所在地
福岡県筑紫野市美しが丘北2丁目
交通

鹿児島本線原田」駅バス10分徒歩3分

間取り/建物面積
5SLDK / 175.13m²
土地面積
353.22m²
築年月
1993年09月築
  • 気になるリストへ
  • 比較リストへ

資料請求・お問い合わせ

■人気の平屋建■セキスイハイム施工

  • 築10年以内
  • 南道路(南西・南東含む)に接道
フロア画像を拡大する
画像枚数12枚
価格
5,980万円
所在地
福岡県筑紫野市二日市北7丁目
交通

西鉄天神大牟田線西鉄二日市」駅徒歩13分

鹿児島本線二日市」駅徒歩19分

間取り/建物面積
3LDK / 82.45m²
土地面積
165.22m²
築年月
2024年09月築
  • 気になるリストへ
  • 比較リストへ

資料請求・お問い合わせ

オーナーチェンジ物件♪ 谷川建設施工の注文住宅♪

  • 南道路(南西・南東含む)に接道
  • 低層住居専用地域に立地
フロア画像を拡大する
画像枚数10枚
価格
2,980万円
所在地
福岡県筑紫野市美しが丘南4丁目
交通

鹿児島本線原田」駅バス6分徒歩5分

間取り/建物面積
3LDK / 88.6m²
土地面積
206m²
築年月
2013年07月築
  • 気になるリストへ
  • 比較リストへ

資料請求・お問い合わせ

◆九州八重洲興業施工/オール電化の住宅◆

  • 建物面積が100m?以上
フロア画像を拡大する
画像枚数8枚
価格
3,480万円
所在地
福岡県春日市一の谷3丁目
交通

西鉄天神大牟田線大橋」駅バス35分徒歩5分

間取り/建物面積
4LDK / 105.58m²
土地面積
169.52m²
築年月
2005年04月築
  • 気になるリストへ
  • 比較リストへ

資料請求・お問い合わせ

■1995年9月築 ■建物面積116.34uの4LDK ■オーナーチェンジ物件

  • 南道路(南西・南東含む)に接道
  • 低層住居専用地域に立地
  • 建物面積が100m?以上
フロア画像を拡大する
画像枚数-枚
価格
1,980万円
所在地
福岡県筑紫野市光が丘5丁目
交通

西鉄天神大牟田線津古」駅徒歩15分

間取り/建物面積
4LDK / 116.34m²
土地面積
218.03m²
築年月
1995年09月築
  • 気になるリストへ
  • 比較リストへ

資料請求・お問い合わせ

オープンハウス【大野城市乙金東2丁目】整形地/84.39坪♪

  • 南道路(南西・南東含む)に接道
  • 低層住居専用地域に立地
  • 建物面積が100m?以上
画像枚数8枚
価格
1,900万円
所在地
福岡県大野城市乙金東2丁目
交通

西鉄天神大牟田線桜並木」駅バス12分徒歩6分

間取り/建物面積
7LDK / 147m²
土地面積
279m²
築年月
1978年03月築
  • 気になるリストへ
  • 比較リストへ

資料請求・お問い合わせ

チェックした物件をまとめて

資料請求・お問い合わせ

  • 新着1週間以内に登録された物件
  • 価格更新1週間以内に価格が更新された物件
  • おすすめ物件営業センターのおすすめ物件
  • リフォーム済みリフォームやリノベーション済み
  • 駅徒歩10分以内駅徒歩10分以内
  • 築10年以内築10年以内
  • 南道路(南西・南東含む)南道路(南西・南東含む)に接道
  • 角地角地
  • 低層住居専用地域低層住居専用地域に立地
  • 建物面積100m²以上建物面積が100m²以上
  • 新築新築物件
  • 【現地見学】オープンハウス開催オープンハウス・予約制内覧会
  • 予告広告販売開始まで契約または予約の申し込みは出来ません