建物面積
83.94 m2
(約25.39坪)
間取り
2LDK
築年月
2023年01月

中古一戸建て

4,680万円

横浜市磯子区磯子2丁目戸建

中古一戸建て

2023年1月築! 磯子駅徒歩15分の立地です!

神奈川県横浜市磯子区磯子2丁目

建物面積83.94m2(約25.39坪)・間取り2LDK・2023年01月築

借入希望金額や金利を入力すると
返済計画を組み立てることができます。

ローンシミュレーション結果

毎月返済額
ボーナス月返済額
年間返済額
月々のお支払い

(ボーナス月お支払い額 ¥円)
ローン
  • 別途月額費用がかかる場合があります。詳しくは営業担当にお問い合わせください。

住宅ローンの詳細は三井住友銀行 のホームページをご覧ください。

  • このシミュレーションは、借入れを保証するものではありません。「免責事項」をご確認の上、ご利用ください。
  • ボーナス返済額の上限は、金融機関によって異なります。
  • ご購入にあたっては別途諸費用等が必要です。詳しくは営業担当にお問合せください。

金利:2026年4月時点のものです。

物件のポイント

物件の特徴

  • 都市ガス
    都市ガス
  • 追焚機能
    追焚機能
  • トイレ2箇所
    トイレ2箇所
  • 食器洗浄乾燥機
    食器洗浄乾燥機
  • TVモニタ付きインターホン
    TVモニタ付きインターホン
  • 24時間換気システム
    24時間換気システム
  • バス1坪以上
    バス1坪以上
  • ビルトインガレージ
    ビルトインガレージ
  • 築5年以内
    築5年以内
  • 容積率100%以上
    容積率100%以上
  • 駐車場有
    駐車場有
  • 近隣商業地域
    近隣商業地域
  • 都市ガス
    都市ガス
  • 追焚機能
    追焚機能
  • トイレ2箇所
    トイレ2箇所
  • 食器洗浄乾燥機
    食器洗浄乾燥機
  • TVモニタ付きインターホン
    TVモニタ付きインターホン
  • 24時間換気システム
    24時間換気システム
  • バス1坪以上
    バス1坪以上
  • ビルトインガレージ
    ビルトインガレージ
  • 築5年以内
    築5年以内
  • 容積率100%以上
    容積率100%以上
  • 駐車場有
    駐車場有
  • 近隣商業地域
    近隣商業地域
  • 都市ガス
  • 上水道
  • 下水道
  • 追焚機能
  • トイレ2箇所
  • シャワー
  • 収納スペース
  • ガスキッチン
  • システムキッチン
  • 食器洗浄乾燥機
  • 洗面所
  • 洗面台
  • TVモニタ付きインターホン
  • 24時間換気システム
  • バス1坪以上
  • ビルトインガレージ
  • 築5年以内
  • 駐車場有
    リフォーム

    --

    立地・周辺環境

    容積率100%以上|近隣商業地域|防火・準防火

    セールスポイント

    ■交通アクセス
    ・JR京浜東北・根岸線「磯子」駅徒歩15分

    ■物件概要
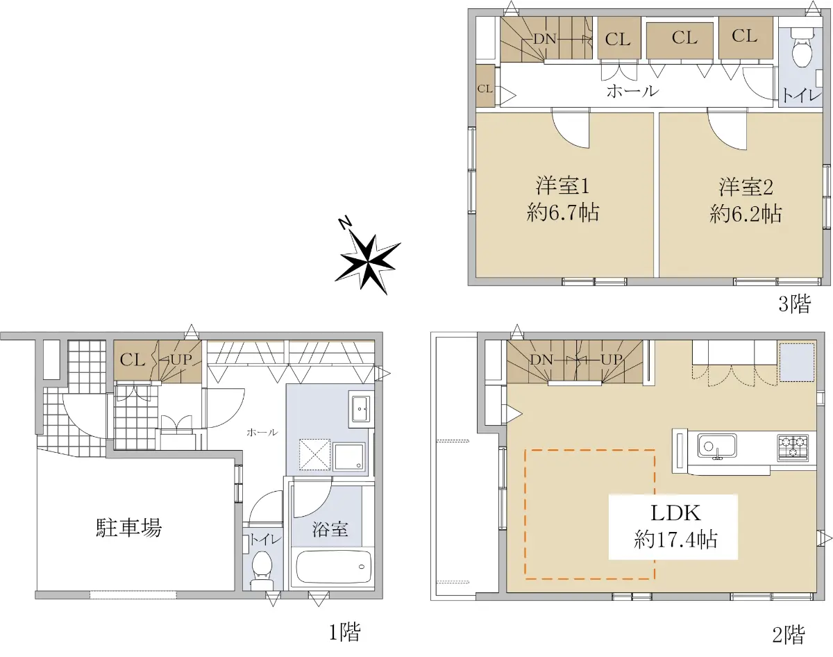
    ・間取り:2LDK
    ・LDKは17.4帖と広々お使いいただけます。
     LD部分には冬にうれしい床暖房あり!
    ・広々した洗面脱衣所。エアコンもあり快適です。
    ・ユニットバスは1620サイズ

    担当からのひとこと

    担当者お勧めの戸建てですので、是非室内をご覧くださいませ!

    ―不動産の購入を検討中のお客様へ−
    物件のご検討については、一度現地を見ていただく事をお勧めします。
    現地をご覧頂くことで周辺等を確認していただきたいと思っております。
    担当者より、物件の長所や短所、購入の流れ等を詳しくご説明させて頂きます。

    ・まいばすけっと磯子2丁目店 徒歩1分(約30m)
    ・ローソン磯子2丁目店 徒歩4分(約750m)
    ・浜小学校 徒歩14分(約1100m)
    ・汐見台中学校 徒歩15分(約1200m)
    ・芦名橋公園 徒歩5分(約350m)

    物件詳細

    物件名 横浜市磯子区磯子2丁目戸建
    物件番号 151F2044
    所在地 神奈川県横浜市磯子区磯子2丁目
    価格
    4,680万円
    交通 京浜東北・根岸線磯子」駅徒歩15 分
    間取り 2LDK
    建物面積 83.94m2(約25.39坪)
    土地面積 50.03m2(約15.13坪)※公簿/他に私道負担:9.39m2あり
    階数
    構造
    地上3階建て
    木造
    築年月 2023年01月
    地目
    地勢
    宅地
    平坦
    接道状況 一方道路・北西4m(私道)接面5.9m
    建ぺい率 90%
    容積率 240%
    都市計画 市街化区域
    用途地域 近隣商業地域
    地域・地区 準防火地域/密集市街地における地震火災対策計画
    その他月額費用 町内会費:250円
    引渡時期 相談
    現況 居住中
    駐車場 有り/台数1台/自走/屋根あり
    土地権利 所有権
    取引態様 仲介
    国土法 届出不要
    備考
    • ・ビルトイン車庫:車種による
    • ・建物面積に車庫面積12.14uは含みません。
    • ・準防火地域内の耐火建築物等、準耐火建築物の為建蔽率90%に緩和

    この情報は2026年04月13日当社物件システムのデータにもとづくものであり、次回更新予定日は2026年04月27日です。