• おすすめ物件
  • 新着
  • 空き物件
建物面積
101.84 m2
(約30.80坪)
間取り
4LDK
築年月
2019年07月

中古一戸建て

  • 新着
  • 空き物件
4,480万円

草加市瀬崎6丁目戸建

中古一戸建て

2019年7月築 土地面積:153.15uの戸建

埼玉県草加市瀬崎6丁目

建物面積101.84m2(約30.80坪)・間取り4LDK・2019年07月築

借入希望金額や金利を入力すると
返済計画を組み立てることができます。

ローンシミュレーション結果

毎月返済額
ボーナス月返済額
年間返済額
月々のお支払い

(ボーナス月お支払い額 ¥円)
ローン
  • 別途月額費用がかかる場合があります。詳しくは営業担当にお問い合わせください。

住宅ローンの詳細は三井住友銀行 のホームページをご覧ください。

  • このシミュレーションは、借入れを保証するものではありません。「免責事項」をご確認の上、ご利用ください。
  • ボーナス返済額の上限は、金融機関によって異なります。
  • ご購入にあたっては別途諸費用等が必要です。詳しくは営業担当にお問合せください。

金利:2026年4月時点のものです。

物件のポイント

物件の特徴

  • 都市ガス
    都市ガス
  • 容積率100%以上
    容積率100%以上
  • 駐車場有
    駐車場有
  • 第一種住居地域
    第一種住居地域
  • セットバックなし・済み
    セットバックなし・済み
  • 土地面積30坪以上
    土地面積30坪以上
  • 前面道路公道
    前面道路公道
  • 都市ガス
    都市ガス
  • 容積率100%以上
    容積率100%以上
  • 駐車場有
    駐車場有
  • 第一種住居地域
    第一種住居地域
  • セットバックなし・済み
    セットバックなし・済み
  • 土地面積30坪以上
    土地面積30坪以上
  • 前面道路公道
    前面道路公道
  • 都市ガス
  • 上水道
  • 下水道
  • 駐車場有
  • セットバックなし・済み
  • 土地面積30坪以上
    リフォーム

    --

    立地・周辺環境

    容積率100%以上|第一種住居地域|前面道路公道

    セールスポイント

    ・東武伊勢崎線 【谷塚】駅 徒歩18分
    ・土地面積:153.15u
    ・建物面積:101.84u
    ・築年月:2019年7月築
    ・カースペース2台付き
    ・約7.5帖の主寝室(ウォークインクローゼット付き)
    ・約2.8mの奥行のあるベランダ(売主様でコンクリート仕様にしております。)


    ┃▼周辺環境・立地環境
    ┗━━━━━━━━━━━━━━━━━━━
    ・ベルクス足立花畑中央店 まで約1.200m (徒歩15分)
    ・ローソン草加瀬崎五丁目店 まで約530m (徒歩7分)
    ・いなげや草加瀬崎店 まで約1.400m (徒歩18分)
    ・ローソン草加瀬崎四丁目店 まで約780m (徒歩10分)

    ・マツモトキヨシ足立花畑店 まで約1.200m (徒歩15分)
    ・DAISOベルクスモール足立花畑店 まで約1.200m (徒歩15分)
    ・ウエルシア草加瀬崎店 まで約1.200m (徒歩15分)
    ・DAISO谷塚駅前店 まで約1.400m (徒歩18分)

    ・足立花畑五郵便局 まで約930m (徒歩12分)

    --

    物件詳細

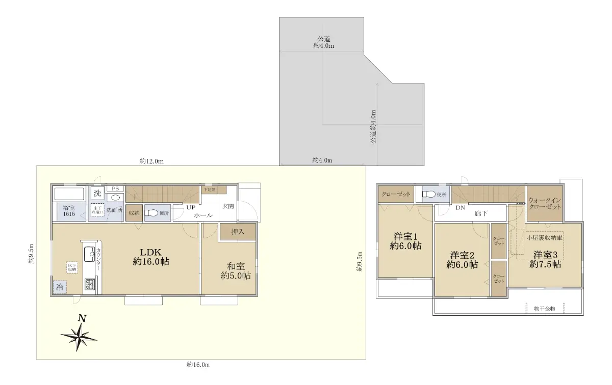
    物件名 草加市瀬崎6丁目戸建
    物件番号 163O2001
    所在地 埼玉県草加市瀬崎6丁目
    価格
    4,480万円
    交通 東武伊勢崎・大師線谷塚」駅南海本線徒歩18 分
    間取り 4LDK
    建物面積 101.84m2(約30.80坪)
    土地面積 153.15m2(約46.32坪)※公簿
    階数
    構造

    地上3階木造建て
    築年月 2019年07月
    地目
    地勢
    宅地
    平坦
    接道状況 一方道路・北4m(公道)接面4m
    建ぺい率 60%
    容積率 160%
    都市計画 市街化区域
    用途地域 第1種住居地域
    引渡時期 相談
    現況 空家
    駐車場 有り
    土地権利 所有権
    取引態様 仲介
    国土法 届出不要
    備考
    • ・駐車場:車種による

    この情報は2026年04月16日当社物件システムのデータにもとづくものであり、次回更新予定日は2026年04月30日です。