• 予約制内覧会開催情報
  • 空き物件
建物面積
148.32 m2
(約44.86坪)
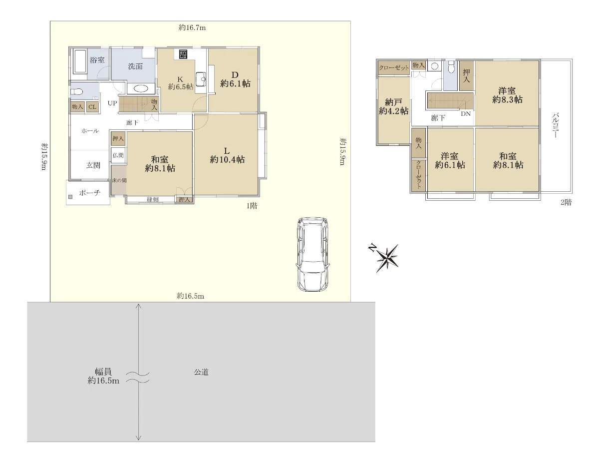
間取り
4SLDK
※Sはサービスルーム(納戸)
築年月
1992年05月

中古一戸建て

  • 予約制内覧会開催情報
  • 空き物件
2,750万円

神戸市北区ひよどり台3丁目戸建

中古一戸建て

お気に入り 1

【ひよどり台】バス停まで徒歩1分 土地80.31坪

兵庫県神戸市北区ひよどり台3丁目

建物面積148.32m2(約44.86坪)・間取り4SLDK ※Sはサービスルーム(納戸)・1992年05月築

予約制内覧会開催情報

現地で実際に物件をご覧いただけます。ぜひこの機会にお越しください。
事前に必ず予約してください

開催日
  • 2026/4/11(土) 13:00〜16:00
  • 2026/4/12(日) 13:00〜16:00
住所

兵庫県神戸市北区ひよどり台3丁目

パノラマ

借入希望金額や金利を入力すると
返済計画を組み立てることができます。

ローンシミュレーション結果

毎月返済額
ボーナス月返済額
年間返済額
月々のお支払い

(ボーナス月お支払い額 ¥円)
ローン
  • 別途月額費用がかかる場合があります。詳しくは営業担当にお問い合わせください。

住宅ローンの詳細は三井住友銀行 のホームページをご覧ください。

  • このシミュレーションは、借入れを保証するものではありません。「免責事項」をご確認の上、ご利用ください。
  • ボーナス返済額の上限は、金融機関によって異なります。
  • ご購入にあたっては別途諸費用等が必要です。詳しくは営業担当にお問合せください。

金利:2026年4月時点のものです。

物件のポイント

物件の特徴

  • 都市ガス
    都市ガス
  • トイレ2箇所
    トイレ2箇所
  • 主寝室8畳以上
    主寝室8畳以上
  • 納戸
    納戸
  • 南道路(南東・南西含む)
    南道路(南東・南西含む)
  • 低層住居専用地域
    低層住居専用地域
  • 容積率100%以上
    容積率100%以上
  • 小学校まで徒歩10分以内
    小学校まで徒歩10分以内
  • スーパーまで徒歩10分以内
    スーパーまで徒歩10分以内
  • コンビニまで徒歩5分以内
    コンビニまで徒歩5分以内
  • 駐車場有
    駐車場有
  • 前面道路幅員6m以上
    前面道路幅員6m以上
  • 都市ガス
    都市ガス
  • トイレ2箇所
    トイレ2箇所
  • 主寝室8畳以上
    主寝室8畳以上
  • 納戸
    納戸
  • 南道路(南東・南西含む)
    南道路(南東・南西含む)
  • 低層住居専用地域
    低層住居専用地域
  • 容積率100%以上
    容積率100%以上
  • 小学校まで徒歩10分以内
    小学校まで徒歩10分以内
  • スーパーまで徒歩10分以内
    スーパーまで徒歩10分以内
  • コンビニまで徒歩5分以内
    コンビニまで徒歩5分以内
  • 駐車場有
    駐車場有
  • 前面道路幅員6m以上
    前面道路幅員6m以上
  • 都市ガス
  • 上水道
  • 下水道
  • トイレ2箇所
  • 主寝室8畳以上
  • 納戸
  • 駐車場有
  • 土地面積50坪以上
    リフォーム

    --

    立地・周辺環境

    南道路(南東・南西含む)|低層住居専用地域|容積率100%以上|小学校まで徒歩10分以内|スーパーまで徒歩10分以内|コンビニまで徒歩5分以内|前面道路幅員6m以上|前面道路公道

    セールスポイント

    □現在空家です
     鍵は当社にございます

    □土地80.31坪

    □敷地と道路との高低差はほとんどありません

    □カーポートあり
    (車種による)

    □【ひよどり台バス停】まで徒歩1分

    <改装箇所>
    2019年4月エネファーム設置
    2016年3月電気自動車用充電設備設置
    2014年5月階段昇降機設置
    2010年10月床暖房設置(リビング・ダイニング・キッチン)
    2006年12月南西側にサンルーム設置
    1992年5月北東側に洗濯干し用波板囲い設置<近隣施設>
    ・ファミリーマート柳屋ひよどり台店まで約30m

    ・グルメシティひよどり台店まで約550m
    ・ひよどり台小学校まで約220m

    担当からのひとこと

    当社ホームページをご覧頂きありがとうございます。
    担当の衣笠(きぬがさ)と申します。

    【ひよどり台】バス停まで高低差はほとんどありません。

    南東側のお庭は、家庭菜園に活用されていらっしゃいます。

    ・ひよどり台小学校 徒歩3分(約220m)
    ・グルメシティひよどり台店 徒歩7分(約550m)
    ・ファミリーマート柳屋ひよどり台店 徒歩1分(約30m)

    物件詳細

    物件名 神戸市北区ひよどり台3丁目戸建
    物件番号 35222054
    所在地 兵庫県神戸市北区ひよどり台3丁目
    価格
    2,750万円
    交通 JR東海道本線三ノ宮」駅バス17 分「ひよどり台」バス停徒歩1 分
    間取り 4SLDK
    ※Sはサービスルーム(納戸)
    建物面積 148.32m2(約44.86坪)
    土地面積 265.52m2(約80.31坪)※公簿
    階数
    構造
    地上2階建て
    木造
    築年月 1992年05月
    地目
    地勢
    宅地
    平坦
    接道状況 一方道路・南西16.5m(公道)接面16.5m
    建ぺい率 50%
    容積率 100%
    都市計画 市街化区域
    用途地域 第2種低層住居専用地域
    地域・地区 高度地区/すまい・まちなみ形成地区
    引渡時期 相談
    現況 空家
    駐車場 有り
    土地権利 所有権
    取引態様 仲介
    国土法 届出不要
    備考
    • ・カーポート:車種による
    • ・敷地面積の最低限度100u
    • ・バス調査日2025年9月22日

    この情報は2026年04月02日当社物件システムのデータにもとづくものであり、次回更新予定日は2026年04月16日です。