【最上階40・41階メゾネット・プレミアム住戸】レインボーブリッジを望む
予約制内覧会開催情報
現地で実際に物件をご覧いただけます。ぜひこの機会にお越しください。
【事前予約制オープンルーム開催】ご見学希望の際は事前にお問い合わせください事前に必ず予約してください
- 開催日
-
- 2026/4/24(金) 10:00〜17:00
- 2026/4/25(土) 10:00〜17:00
- 2026/4/26(日) 10:00〜17:00
- 住所
-
東京都港区港南4丁目
物件のポイント
物件の特徴
-
- 建物補修
- 設備補修
- 都市ガス
- 床暖房
- 給湯
- 追焚機能
- トイレ2箇所
- 温水洗浄便座
- CATV
- ウォークインクローゼット
- カウンターキッチン
- 浄水器
- 食器洗浄乾燥機
- IHクッキングヒーター
- ディスポーザー
- 浴室乾燥機
- ディンプルキー
- ルーフバルコニー
- トランクルーム
- エレベータ
- TVモニタ付きインターホン
- モニター付きオートロック
- 宅配ボックス
- インターネット対応
- 24時間換気システム
- 24時間セキュリティ
- 最上階
- シューズインクローゼット
- コンシェルジュサービス
- ペット可(但し、管理規約により一定の制限があります)
- ペット相談(但し、管理規約により一定の制限があります)
- 24時間ゴミ出し可
- 所在階20階以上
- 大規模(総戸数100戸以上)
- タワー(20階建以上)
- 駐車場空有
- 管理員常駐
- 主寝室8畳以上
- 即入居可・即引渡可
- 住友不動産旧分譲
- リフォーム
-
●2025年12月/フローリング上貼り(LD、各洋室)
●2025年12月/クッションフロア上貼り(パウダールーム)、洗面台水栓交換
●2024年08月/キッチン水栓・ディスポーザー・食洗機交換、クロス張替(全室)
- 立地・周辺環境
-
2沿線以上利用可|小学校まで徒歩10分以内|スーパーまで徒歩10分以内|コンビニまで徒歩5分以内|公園まで徒歩5分以内|眺望良好
セールスポイント
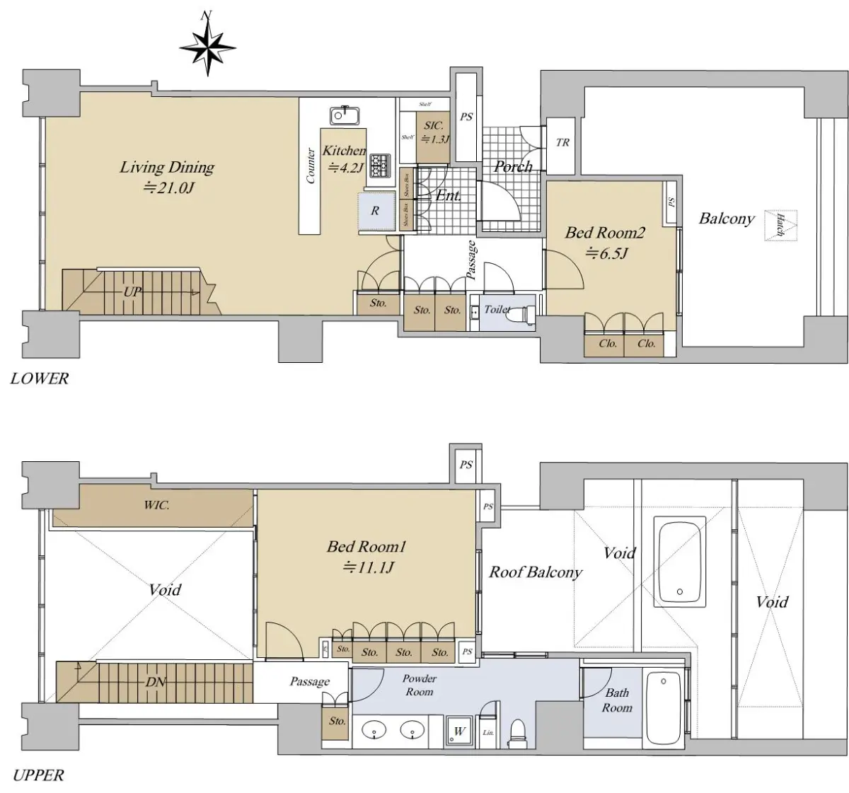
●専有面積:111.15u
※プライベートトランク1.14u含む
●2LDK+ウォークインクローゼット(WIC)
●40・41階部分メゾネット
●専用駐車場付(機械式駐車場、ハイルーフ)
〜リフォーム履歴〜
・フローリング上貼り(LD、各洋室)(2025年12月)
・クッションフロア上貼り(パウダールーム)、洗面台水栓交換(2025年12月)
・41階天井以外の壁紙貼替、食洗器・キッチン水栓交換(2024年8月)
・ディスポーザー・IHコンロ交換(2023年12月)
・洗濯機交換(2021年12月)
・スカイジャグジーモーター交換(2010年8月)
・WIC造作工事(2010年8月)
☆ルーフバルコニーにレインボーブリッジの眺望を楽しみながら入れるスカイジャグジーを設置
☆浴室・洋室1、2からレインボーブリッジを望む
☆西側眺望は都心と緑の調和を望む
☆リビングダイニングは広々約21.0帖、開放感あふれる吹き抜け
〜マンションについて〜
○制震構造
○二重床・二重天井
○敷地内には160台の防犯カメラを設置
○安心の24時間有人管理※夜間は警備員が対応
○コンシェルジュサービス有
○ホテルライクな内廊下設計
○各階にダストステーション有
24時間ゴミ出し可※粗大ゴミは除く
○ペット飼育可(規約有)
○マンション敷地内に24時間営業のスーパー有
スーパーマルエツ港南ワールドシティ店(キャピタルタワー1階)
<充実の共用施設※一部有償>
●アクアタワー
・来客用駐車場:A1/地下2F ・洗車機:A1:地下2F
・レンタサイクル:A1/1F
・アクアサイトプール:A/2F ・キッズプール:A/2F
・トレーニングジム:A2/3F ・フィットネススタジオ:A2/3F
・リラグゼーションルーム:A3/3F ・ウェルネスバス:A3/3F
・キッズランド:A2/3F ・ワールドシティホール:A2/3F
・スカイラウンジ:A2/26F ・スカイライブラリー:A2/26F
・アクアコモンホール:A3/26F ・シアターカラオケ:A3/26F
・ビュースタジオ:A3/26F ・ゲストルーム:A3/26F
・スタディブース:A2/27F ・スカイガーデン:A4/39F
・スカイダイニング:A4/39F
●ブリーズタワー
・ゲストルーム:B2/2F ・ゲストルーム:B2/27F
・ブリーズコモンホール:B2/27F
●キャピタルタワー
・ゲストルーム:C1/4F ・ゲストルーム:C1/26F
・キャピタルコモンホール:C1/26F
担当からのひとこと
「ワールドシティタワーズ」は、新築時売主:住友不動産の代表的な分譲マンションの一つです。アクアタワー(A棟)、ブリーズタワー(B棟)、キャピタルタワー(C棟)の3棟からなり、総戸数2090戸の大規模コミュニティとなっています。
お部屋は【キャピタルタワー40・41階部分メゾネット、東向き、2LDK+WIC】のタイプです。
ぜひ一度ご内覧いただき、陽当たり・眺望等をお確かめください。
※入居時にウォークインクローゼット(WIC)を造作しております
最寄り駅の東京モノレール「天王洲アイル」駅は羽田空港までのアクセスが良好です。
東京のターミナル窓口「品川」駅を徒歩圏に捉え、新幹線やJR山手線他、多路線利用可能で通勤・通学の利便性良好、出張の多い方にも好まれる立地です。
◆お住み替え
資金計画、お住み替えの流れ、時期等をお伺いさせていただき、スムーズなお住み替えを
ご提案させていただきます。
◆近隣状況・資料等
弊社では、分譲時のパンフレットや近隣の施設等をおまとめした資料を
ご用意しております。
周辺環境
・マルエツ港南ワールドシティ店 徒歩2分(約130m)
・港区立港南小学校 徒歩5分(約350m)
・ファミリーマート港南四丁目店 徒歩5分(約350m)
・港南緑水公園 徒歩2分(約120m)
・港区港南中学校 徒歩9分(約650m)
物件詳細
| 物件名 | ワールドシティタワーズ キャピタルタワー |
|---|---|
| 物件番号 | 151P3221 |
| 所在地 |
東京都港区港南4丁目 |
| 価格 |
3億1,800万円
|
| 交通 | 山手線「品川」駅徒歩14 分 東京モノレール羽田「天王洲アイル」駅徒歩6 分 東京臨海高速鉄道「天王洲アイル」駅徒歩10 分 |
| 間取り | 2LDK |
| 専有面積 | 111.15m2(壁芯) |
| 所在階 構造 |
40階部分/地上42階地下2階建て 鉄筋コンクリート造 |
| 築年月 | 2006年10月 |
| バルコニー(テラス)面積 | 26.50m2/ルーフバルコニー面積25.78m2 |
| 採光方向 | 東 |
| 総戸数 | 2090戸 |
| 管理形態 管理方式 管理会社 |
管理会社に全部委託 常駐 住友不動産建物サービス |
| 新築時売主 | 住友不動産 |
| 施工会社 | 清水建設(株)/(株)ピーエス三菱/西武建設(株) |
| 管理費(月額) | 26,878円 |
| 修繕積立金(月額) | 56,580円 |
| 引渡時期 | 即時(但し、残代金精算後) |
| 現況 | 空家 |
| 駐車場 | 空有り/月額:23,000円〜48,000円/機械※車種による |
| 土地権利 | 所有権 |
| 取引態様 | 仲介 |
| 備考 |
|
この情報は2026年04月18日当社物件システムのデータにもとづくものであり、次回更新予定日は2026年05月02日です。
