☆南西向きのため陽当り良好です ☆3駅3線利用可能
予約制内覧会開催情報
現地で実際に物件をご覧いただけます。ぜひこの機会にお越しください。
≪事前に必ず予約してください≫ 住友不動産ステップ横浜マンションプラザ(0120−779−688)まで♪
- 開催日
-
- 2025/11/8(土) 10:00〜17:00
- 2025/11/9(日) 10:00〜17:00
- 住所
-
神奈川県横浜市中区扇町2丁目
物件のポイント
物件の特徴
-
- 都市ガス
- 給湯
- 追焚機能
- ウォークインクローゼット
- 浄水器
- 食器洗浄乾燥機
- 浴室乾燥機
- エレベータ
- 自動ロック
- TVモニタ付きインターホン
- 宅配ボックス
- 24時間換気システム
- 南向き(南東、南西含む)
- 管理員日勤
- リフォーム
-
--
- 立地・周辺環境
-
2沿線以上利用可|スーパーまで徒歩10分以内|コンビニまで徒歩5分以内|公園まで徒歩5分以内
セールスポイント
╋┓ 内装リフォーム(2025年5月完了)
┗╋━━━━━━━━━
▼給湯器交換
▼トイレ交換
▼全室クロス交換
▼防水パン交換
╋┓ お部屋の特徴
┗╋━━━━━━━━━
▼南西向きのため陽当り良好
▼ウォークインクローゼット
▼人感センサー付き
▼キッチンには食洗機付き
▼浴室には浴室乾燥機と追い焚き機能付き
担当からのひとこと
この度は『クレストフォルム横浜関内』のページをご覧いただき、誠に有難うございます。
本物件は、南西向きのため陽当り良好なマンションです。
2025年5月にリフォーム完了です。お部屋が綺麗な状態でお引渡しできます。室内にはウォークインクローゼット付きのため、お荷物が多い方もお部屋を広くお使い頂けます。キッチンには食洗機付きなので、毎日の家事の軽減に。浴室には浴室換気乾燥機付きなので悪天候でも洗濯物を干すことができます。
***不動産の購入を検討中のお客様へ****
物件探しの基本は「実際に物件を見て頂くこと」にあります。
写真や図面だけではなく、実際に現地を見て頂く事をおすすめいたします。
現地を見て頂く事で周辺環境や物件の状態を明確にご理解頂けるとともに
プロの目から見た物件の長所・短所、購入の際の注意点などを詳しく五節目させて
頂きます。
こちらの物件に興味をお持ちのお客様は是非ともお問合せください。
心よりお待ちしております。
周辺環境
・ファミリーマート和田屋ボートピア横浜店 徒歩1分(約70m)
・ミニストップ関内店 徒歩2分(約100m)
・まいばすけっと石川町駅北店 徒歩4分(約300m)
・扇町公園 徒歩2分(約150m)
・ふれあい横浜ホスピタル 徒歩5分(約340m)
物件詳細
| 物件名 | クレストフォルム横浜関内 |
|---|---|
| 物件番号 | A53G3009 |
| 所在地 |
神奈川県横浜市中区扇町2丁目 |
| 価格 |
4,890万円
|
| 交通 | 根岸線「関内」駅徒歩6 分 根岸線「石川町」駅徒歩7 分 横浜市ブルーライン「伊勢佐木長者町」駅徒歩8 分 |
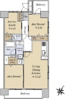
| 間取り | 1LDK |
| 専有面積 | 64.40m2(壁芯) |
| 所在階 構造 |
3階部分/地上11階建て 鉄筋コンクリート造 |
| 築年月 | 1998年02月 |
| バルコニー(テラス)面積 | 8.40m2 |
| 採光方向 | 南西 |
| 総戸数 | 88 戸 |
| 管理形態 管理方式 管理会社 |
管理会社に全部委託 日勤 日本ハウズイング |
| 新築時売主 | 株式会社ゴールドクレスト |
| 施工会社 | 西松建設株式会社 |
| 管理費(月額) | 16,100円 |
| 修繕積立金(月額) | 6,630円 |
| その他月額費用 | 駐輪場使用料:月額300円/バイク置場使用料:月額5,000円 |
| 引渡時期 | 相談 |
| 現況 | 空家 |
| 駐車場 | 空無し |
| 土地権利 | 所有権 |
| 取引態様 | 仲介 |
| 備考 |
|
この情報は2025年10月23日当社物件システムのデータにもとづくものであり、次回更新予定日は2025年11月06日です。
