• 価格更新
  • オーナーチェンジ

本物件は投資向け物件です

想定利回り
5.58 %
年間想定賃料等
3,907万3,200
月額賃料等
325万6,100
現在の賃貸状況
全部賃貸中
オーナーチェンジ

投資用不動産

7億円

足立区足立4丁目一棟マンション

マンション(一棟)

マンション(一棟)

  • 価格更新
  • オーナーチェンジ
7億円

足立区足立4丁目一棟マンション

想定利回り
5.58 %

東武伊勢崎線「五反野」駅徒歩10分 総戸数40戸 一棟マンション

東京都足立区足立4丁目

建物面積1387.06m2(約419.58坪)・土地面積337.61m2(約102.12坪)※公簿/他に私道負担:58.00m2あり・1992年10月築

東武伊勢崎線「五反野」駅徒歩10分 総戸数40戸 一棟マンション

東京都足立区足立4丁目

建物面積1387.06m2(約419.58坪)・土地面積337.61m2(約102.12坪)※公簿/他に私道負担:58.00m2あり・1992年10月築

物件のポイント

本物件は投資向け物件です

想定利回り
5.58 %
想定利回り
5.58 %
年間想定賃料等
3,907万3,200
月額賃料等
325万6,100
現在の賃貸状況
全部賃貸中
オーナーチェンジ
投資用・事業用不動産について
  • 賃料等の収入や利回りは、将来にわたり、確実に得られることを保証するものではありません。
  • 賃料等は、賃貸中のものについては現在の賃料等で、新築および空室または一部空き有のものについては、周辺の賃料相場に基づき満室となった場合を想定して表示しています。
  • 利回りは、現況または満室想定時の賃料等の収入に基づく単純利回り(賃料等の年間合計金額÷ 販売価格(税込))で、公租公課や維持管理費等の必要経費は控除されていません。

物件の特徴

  • 角地
    角地
  • 南道路(南東・南西含む)
    南道路(南東・南西含む)
  • 容積率100%以上
    容積率100%以上
  • 駐車場有
    駐車場有
  • 前面道路幅員6m以上
    前面道路幅員6m以上
  • 商業地域
    商業地域
  • 土地面積100坪以上
    土地面積100坪以上
  • 前面道路公道
    前面道路公道
  • 角地
    角地
  • 南道路(南東・南西含む)
    南道路(南東・南西含む)
  • 容積率100%以上
    容積率100%以上
  • 駐車場有
    駐車場有
  • 前面道路幅員6m以上
    前面道路幅員6m以上
  • 商業地域
    商業地域
  • 土地面積100坪以上
    土地面積100坪以上
  • 前面道路公道
    前面道路公道
  • 駐車場有
  • 土地面積100坪以上
    リフォーム

    --

    立地・周辺環境

    角地|南道路(南東・南西含む)|容積率100%以上|前面道路幅員6m以上|商業地域|前面道路公道

    セールスポイント

    【ACCESS】
    - 東武伊勢崎線「五反野」駅 徒歩10分
    - 東武伊勢崎線 「梅島」駅 徒歩11分

    【POINT】
    ■土地■ 
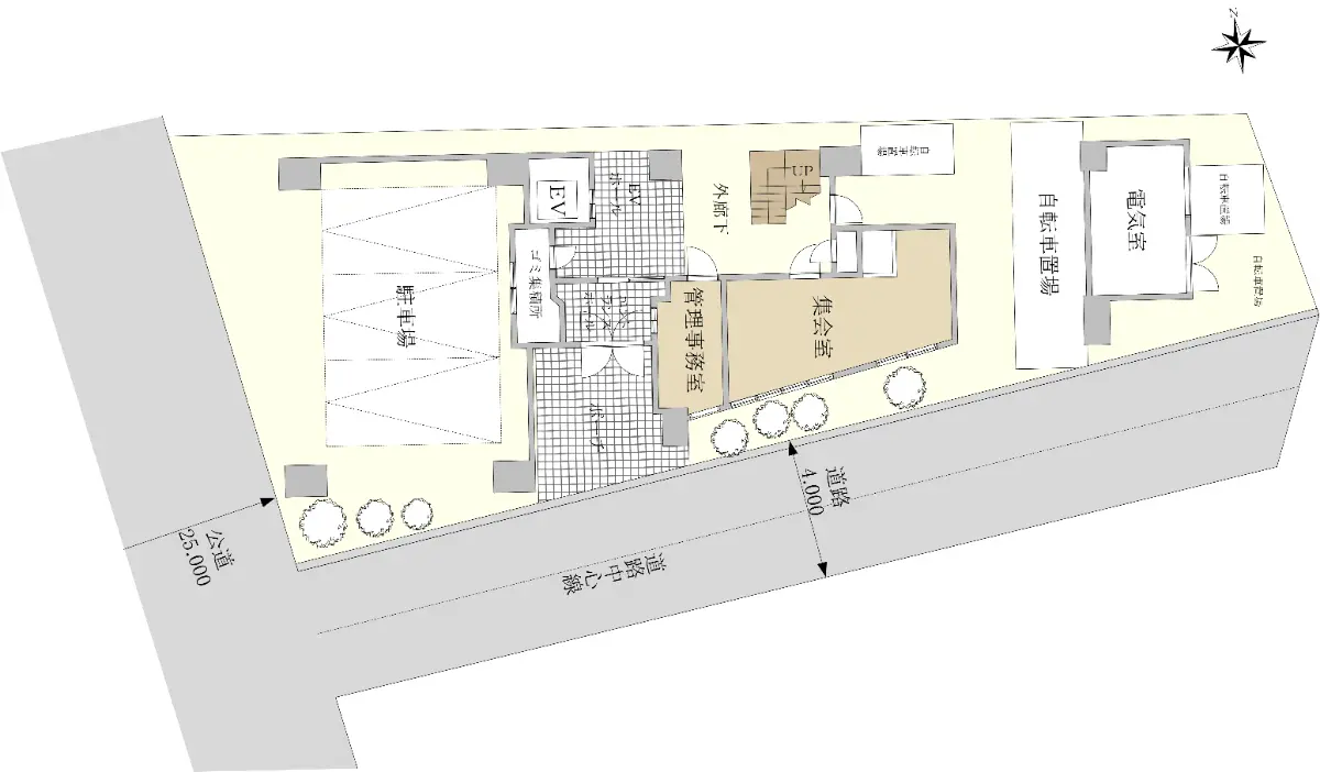
    - 土地面積:337.61u(公簿)
    - 西側公道幅員約25mに約13.0m接す
    - 南側私道幅員約4.0mに約29.6m接す

    ■建物■
    - 鉄骨鉄筋コンクリート造陸屋根地上12階建
    - 建物延床面積:1387.06u(419.58坪)
     1階:55.22u 2階・3階:151.03u 4階〜12階:114.42u
    - 1992年10月築(築33年)

    担当からのひとこと

    この度は足立区足立4丁目一棟マンションの物件情報をご覧いただき、誠にありがとうございます。
    本物件は、【オーナーチェンジ】による投資用収益物件です。
    現在も賃貸中で、一定の収入が見込めます。

    ◇ 月額賃料:3192100円(居住用のみ)
    ◇ 年間収入:38305200円
    ◇ 表面利回り:5.47%
    ※上記他、駐車場利用料の収入有り
    P1:22000円 P2:22000円 P3:20000円 合計64000円
    ◇総額賃料:3256100円/月 利回り5.58%


    足立区エリアに位置し、東武伊勢崎線 五反野駅徒歩10分、梅島駅徒歩11分の大規模一棟マンションでございます。また、総戸数が41戸なので安定した賃料収入が得られます。

    ご興味をお持ちいただけましたら、どうぞお気軽にお問い合わせください。

    【担当】住友不動産ステップ株式会社 渋谷第一営業センター 櫻井 花音(さくらい かのん)
        TEL:0120−492−428

    皆さまからのお問い合わせを心よりお待ちしております。

    ・セブンイレブン足立4丁目店 徒歩6分(約410m)
    ・セブンイレブン足立梅島1丁目店 徒歩7分(約500m)
    ・まいばすけっと足立4丁目店 徒歩5分(約350m)
    ・弥生小学校 徒歩7分(約550m)

    物件詳細

    物件名 足立区足立4丁目一棟マンション
    物件番号 15124026
    所在地 東京都足立区足立4丁目
    価格
    7億円
    交通 東武伊勢崎・大師線五反野」駅徒歩10 分
    東武伊勢崎・大師線梅島」駅徒歩11 分
    建物面積 1387.06m2(約419.58坪)
    土地面積 337.61m2(約102.12坪)※公簿/他に私道負担:58.00m2あり
    階数
    構造
    地上12階建て
    鉄骨鉄筋コンクリート造
    築年月 1992年10月
    地目
    地勢
    宅地
    平坦
    総住戸数 41 戸
    各住戸の専有面積 最小22.00m2〜最大66.24m2
    接道状況 角地・西25m(公道)接面13m/南4m(私道)接面29.6m
    建ぺい率 80%
    容積率 500%
    都市計画 市街化区域
    用途地域 商業地域
    新築時売主 株式会社大京
    施工会社 仲岡建設株式会社
    引渡時期 相談
    現況 賃貸中
    駐車場 有り/自走/屋根あり
    土地権利 所有権
    取引態様 仲介
    国土法 届出不要
    備考
    • ・駐輪場は、40台ございます。
    • ・角地。ただし、建ぺい率は緩和されません。
    • ・101号室が住居となっており、総戸数は41戸(管理室含まない)になります。
    • ・駐車可能な車は車種によります。空きはございません。

    この情報は2026年04月03日当社物件システムのデータにもとづくものであり、次回更新予定日は2026年04月17日です。