• 新着
  • オーナーチェンジ

本物件は投資向け物件です

想定利回り
1.67 %
年間想定賃料等
218万2,800
月額賃料等
18万1,900
現在の賃貸状況
一部賃貸中
オーナーチェンジ

投資用不動産

1億3,000万円

板橋区仲町賃貸併用住宅

その他建物(一棟)

その他建物(一棟)

  • 新着
  • オーナーチェンジ
1億3,000万円

板橋区仲町賃貸併用住宅

想定利回り
1.67 %

◆賃貸併用住宅で3階部分が居住用です!眺望は非常に良好です!◆

東京都板橋区仲町

建物面積254.02m2(約76.84坪)・土地面積148.53m2(約44.93坪)/他に私道負担:18.16m2あり・2003年02月築

◆賃貸併用住宅で3階部分が居住用です!眺望は非常に良好です!◆

東京都板橋区仲町

建物面積254.02m2(約76.84坪)・土地面積148.53m2(約44.93坪)/他に私道負担:18.16m2あり・2003年02月築

物件のポイント

本物件は投資向け物件です

想定利回り
1.67 %
想定利回り
1.67 %
年間想定賃料等
218万2,800
月額賃料等
18万1,900
現在の賃貸状況
一部賃貸中
オーナーチェンジ
投資用・事業用不動産について
  • 賃料等の収入や利回りは、将来にわたり、確実に得られることを保証するものではありません。
  • 賃料等は、賃貸中のものについては現在の賃料等で、新築および空室または一部空き有のものについては、周辺の賃料相場に基づき満室となった場合を想定して表示しています。
  • 利回りは、現況または満室想定時の賃料等の収入に基づく単純利回り(賃料等の年間合計金額÷ 販売価格(税込))で、公租公課や維持管理費等の必要経費は控除されていません。

物件の特徴

  • 容積率100%以上
    容積率100%以上
  • 小学校まで徒歩10分以内
    小学校まで徒歩10分以内
  • スーパーまで徒歩10分以内
    スーパーまで徒歩10分以内
  • コンビニまで徒歩5分以内
    コンビニまで徒歩5分以内
  • 公園まで徒歩5分以内
    公園まで徒歩5分以内
  • 第一種住居地域
    第一種住居地域
  • 土地面積30坪以上
    土地面積30坪以上
  • 前面道路幅員4.0m以上
    前面道路幅員4.0m以上
  • 容積率100%以上
    容積率100%以上
  • 小学校まで徒歩10分以内
    小学校まで徒歩10分以内
  • スーパーまで徒歩10分以内
    スーパーまで徒歩10分以内
  • コンビニまで徒歩5分以内
    コンビニまで徒歩5分以内
  • 公園まで徒歩5分以内
    公園まで徒歩5分以内
  • 第一種住居地域
    第一種住居地域
  • 土地面積30坪以上
    土地面積30坪以上
  • 前面道路幅員4.0m以上
    前面道路幅員4.0m以上
  • 土地面積30坪以上
    リフォーム

    --

    立地・周辺環境

    容積率100%以上|小学校まで徒歩10分以内|スーパーまで徒歩10分以内|コンビニまで徒歩5分以内|公園まで徒歩5分以内|第一種住居地域

    セールスポイント

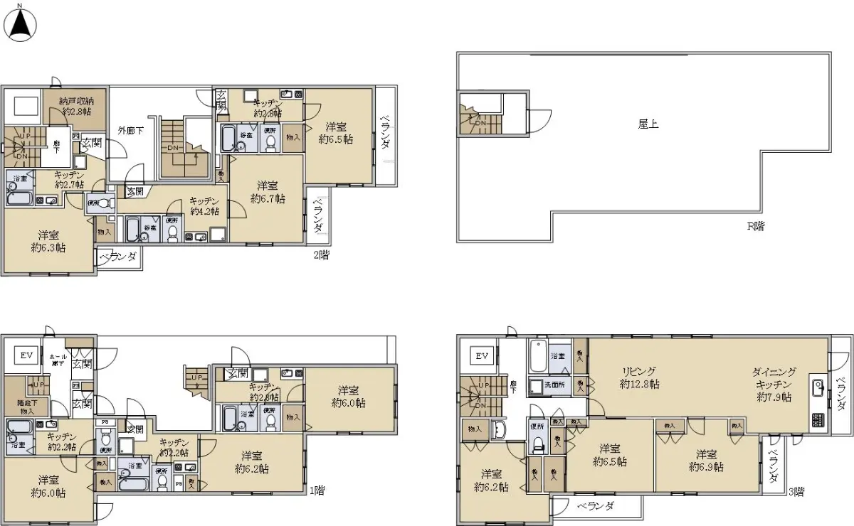
    1階・2階は賃貸用。一括賃貸中。月額賃料181900円。(2025年11月14日現在)
    3階部分は売主居住中。※年間賃料:2182800円 利回り1.67%(2025年11月14日現在)
    ※賃料等の収入や利回りは、将来にわたり、確実に得られることを保証するものではありません。
    ※賃料等は、賃貸中のものについては現在の賃料等で、新築および空室または一部空き有のものについては、周辺の賃料相

    場に基づき満室となった場合を想定して表示しています。
    ※利回りは、現況または満室想定時の賃料等の収入に基づく単純利回り(賃料等の年間合計金額(非課税または税抜)÷ 販売価格(税込)×100%)で、公租公課や維持管理費等の必要経費は控除されていません。

    担当からのひとこと

    ご覧いただきありがとうございます。

    物件に関して質問等ございましたら、
    お気軽に下記番号までご連絡ください。


    《フリーコール》0120-288-446 担当:森本

    皆様からのお問い合わせを心よりお待ちしています。

    ***不動産の購入を検討中のお客様へ****

    物件探しの基本は「物件を現実に見て頂くこと」にあります。
    写真や図面だけではなく、実際に現地を見て頂く事をお勧めいたします。
    現地を見て頂くことで、周辺環境や物件の状態が明確にご理解頂けるとともに、
    プロの目から見た物件の長所・短所、購入の際の注意点を詳しくご説明させてご説明させて頂きます。
    こちらの物件にご興味をお持ちのお客様は是非ともお問い合わせください。
    心よりお待ちしております。

    ・セブンイレブン板橋仲町店 徒歩4分(約270m)
    ・サミットストア板橋弥生町店 徒歩1分(約80m)
    ・まいばすけっと板橋仲町店 徒歩4分(約280m)
    ・三葉児童遊園 徒歩2分(約130m)
    ・板橋区立弥生小学校 徒歩3分(約240m)

    物件詳細

    物件名 板橋区仲町賃貸併用住宅
    物件番号 152P4026
    所在地 東京都板橋区仲町
    価格
    1億3,000万円
    交通 東武東上線中板橋」駅徒歩6 分
    建物面積 254.02m2(約76.84坪)
    土地面積 148.53m2(約44.93坪)/他に私道負担:18.16m2あり
    階数
    構造
    地上3階建て
    鉄骨造
    築年月 2003年02月
    地目
    地勢
    宅地
    平坦
    総住戸数 7 戸
    各住戸の専有面積 不詳
    接道状況 一方道路・東4m(私道)接面9m
    建ぺい率 60%
    容積率 160%
    都市計画 市街化区域
    用途地域 第1種住居地域
    引渡時期 相談
    現況 賃貸中
    駐車場 無し
    土地権利 所有権
    取引態様 仲介
    国土法 届出不要

    この情報は2025年11月15日当社物件システムのデータにもとづくものであり、次回更新予定日は2025年11月29日です。