建物面積
127.24 m2
(約38.49坪)
間取り
4LDK
築年月
2013年04月

中古一戸建て

9,800万円

中野区若宮2丁目戸建

中古一戸建て

お気に入り 7

2013年4月築 住友不動産株式会社施工 間取り4LDKの戸建

東京都中野区若宮2丁目

建物面積127.24m2(約38.49坪)・間取り4LDK・2013年04月築

借入希望金額や金利を入力すると
返済計画を組み立てることができます。

ローンシミュレーション結果

毎月返済額
ボーナス月返済額
年間返済額
月々のお支払い

(ボーナス月お支払い額 ¥円)
ローン
  • 別途月額費用がかかる場合があります。詳しくは営業担当にお問い合わせください。

住宅ローンの詳細は三井住友銀行 のホームページをご覧ください。

  • このシミュレーションは、借入れを保証するものではありません。「免責事項」をご確認の上、ご利用ください。
  • ボーナス返済額の上限は、金融機関によって異なります。
  • ご購入にあたっては別途諸費用等が必要です。詳しくは営業担当にお問合せください。

金利:2026年3月時点のものです。

物件のポイント

物件の特徴

  • 都市ガス
    都市ガス
  • 床暖房
    床暖房
  • 追焚機能
    追焚機能
  • トイレ2箇所
    トイレ2箇所
  • ウォークインクローゼット
    ウォークインクローゼット
  • IHクッキングヒーター
    IHクッキングヒーター
  • 浴室乾燥機
    浴室乾燥機
  • TVモニタ付きインターホン
    TVモニタ付きインターホン
  • シューズインクローゼット
    シューズインクローゼット
  • 低層住居専用地域
    低層住居専用地域
  • 容積率100%以上
    容積率100%以上
  • 小学校まで徒歩10分以内
    小学校まで徒歩10分以内
  • 都市ガス
    都市ガス
  • 床暖房
    床暖房
  • 追焚機能
    追焚機能
  • トイレ2箇所
    トイレ2箇所
  • ウォークインクローゼット
    ウォークインクローゼット
  • IHクッキングヒーター
    IHクッキングヒーター
  • 浴室乾燥機
    浴室乾燥機
  • TVモニタ付きインターホン
    TVモニタ付きインターホン
  • シューズインクローゼット
    シューズインクローゼット
  • 低層住居専用地域
    低層住居専用地域
  • 容積率100%以上
    容積率100%以上
  • 小学校まで徒歩10分以内
    小学校まで徒歩10分以内
  • 都市ガス
  • 上水道
  • 下水道
  • 床暖房
  • 追焚機能
  • トイレ2箇所
  • バス・トイレ別
  • シャワー
  • 温水洗浄便座
  • ウォークインクローゼット
  • システムキッチン
  • IHクッキングヒーター
  • 洗面所
  • 洗面台
  • 浴室乾燥機
  • 照明器具付き
  • ルーフバルコニー
  • テラス
  • TVモニタ付きインターホン
  • シューズインクローゼット
  • 駐車場有
  • セットバックなし・済み
    リフォーム

    --

    立地・周辺環境

    低層住居専用地域|容積率100%以上|小学校まで徒歩10分以内|スーパーまで徒歩10分以内|公園まで徒歩5分以内|防火・準防火|前面道路公道

    セールスポイント

    □西部新宿線「都立家政」駅徒歩7分

    □2013年4月築 住友不動産株式会社施工

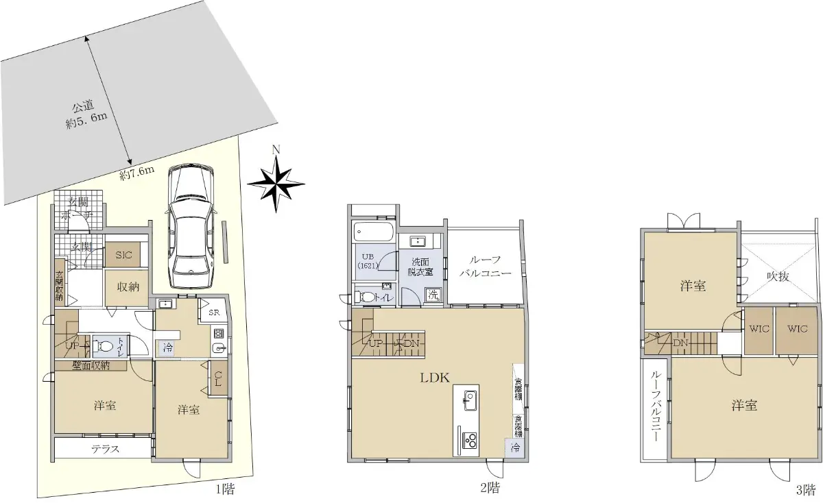
    □建物延床面積127.24u

    □間取り:4LDK

    □設備・仕様
    ・1階部分にミニキッチン有り
    ・トイレ2ヶ所(1階・2階)
    ・1階(洋室)2階(リビング)床暖房有り
    ・モニター付インターフォン
    ・3階部分ウォークインクローゼット2ヶ所□ライフインフォメーション
    ・中野区立美鳩小学校まで約480m
    ・中野区立明和中学校まで約480m
    ・まいばすけっと都立家政駅南店まで約340m
    ・セブンイレブン中野都立家政店まで約440m
    ・くすりのセイジョー都立家政店まで約390m
    ・みつわ公園まで約140m

    担当からのひとこと

    この度は、「中野区若宮2丁目戸建」のご紹介ページをご覧頂き、誠にありがとうございます。

    本物件は西武新宿線「都立家政」駅徒歩7分利用可能な立地となっております。

    2013年4月築、住友不動産株式会社施工の戸建で室内綺麗にお使いです。

    また、各居室2方向に窓があるため、通風や明るさのある物件となっております。

    前面道路は交通量も少なく周囲は静かな住宅地となっております。

    物件の詳細やご質問等ございましたら、担当までお気軽にご連絡ください。
    なお、内見希望の際は事前に希望日を弊社にご連絡頂ければご対応いたしますので、お気軽にご相談願います。

    =お買換えをご検討中のお客様へ=
    弊社では、無料査定を実施しております。
    ご購入のご提案だけでなく、ご自宅のご売却からお住み替えまで、全力でお手伝いさせて頂きます。

    税金や法務についてのご相談は、弊社顧問税理士や顧問弁護士と連携してご対応いたしますので、安心してお任せください。
    また、お客様にとって無理のないご提案をさせて頂きますので、お客様からのご相談心よりお待ちしております。

    ・中野区立美鳩小学校 徒歩6分(約480m)
    ・中野区立明和中学校 徒歩6分(約480m)
    ・まいばすけっと都立家政駅南店 徒歩5分(約340m)
    ・セブンイレブン中野都立家政店 徒歩6分(約440m)
    ・みつわ公園 徒歩2分(約140m)

    物件詳細

    物件名 中野区若宮2丁目戸建
    物件番号 15432033
    所在地 東京都中野区若宮2丁目
    価格
    9,800万円
    交通 西武新宿線都立家政」駅徒歩7 分
    間取り 4LDK
    建物面積 127.24m2(約38.49坪)
    土地面積 87.59m2(約26.49坪)※公簿
    階数
    構造
    地上3階建て
    木造
    築年月 2013年04月
    地目
    地勢
    宅地
    平坦
    接道状況 一方道路・北5.6m(公道)接面7.6m
    建ぺい率 60%
    容積率 150%
    都市計画 市街化区域
    用途地域 第1種低層住居専用地域
    地域・地区 準防火地域
    引渡時期 相談
    現況 居住中
    駐車場 有り/自走
    土地権利 所有権
    取引態様 仲介
    国土法 届出不要
    備考
    • ・駐車可能な車輛は車種によります

    この情報は2026年03月01日当社物件システムのデータにもとづくものであり、次回更新予定日は2026年03月15日です。