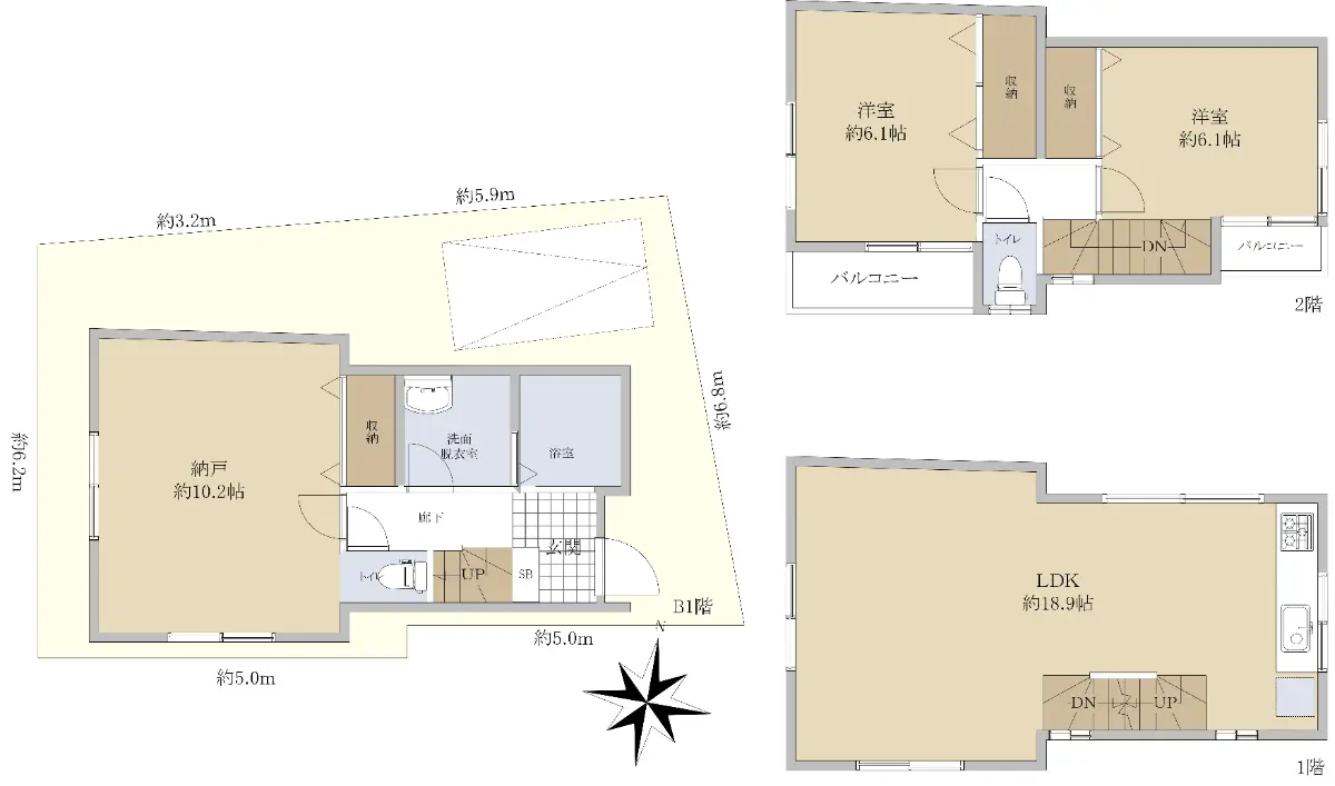
建物面積
94.39 m2
(約28.55坪)
間取り
2SLDK
※Sはサービスルーム(納戸)
築年月
2004年11月

中古一戸建て

1億1,900万円

目黒区碑文谷1丁目戸建

中古一戸建て

東・南から光の入る明るい戸建☆彡 浴室・洗面台など新規交換済(2025年11月)

東京都目黒区碑文谷1丁目

建物面積94.39m2(約28.55坪)・間取り2SLDK ※Sはサービスルーム(納戸)・2004年11月築

借入希望金額や金利を入力すると
返済計画を組み立てることができます。

ローンシミュレーション結果

毎月返済額
ボーナス月返済額
年間返済額
月々のお支払い

(ボーナス月お支払い額 ¥円)
ローン
  • 別途月額費用がかかる場合があります。詳しくは営業担当にお問い合わせください。

住宅ローンの詳細は三井住友銀行 のホームページをご覧ください。

  • このシミュレーションは、借入れを保証するものではありません。「免責事項」をご確認の上、ご利用ください。
  • ボーナス返済額の上限は、金融機関によって異なります。
  • ご購入にあたっては別途諸費用等が必要です。詳しくは営業担当にお問合せください。

金利:2026年4月時点のものです。

物件のポイント

物件の特徴

  • 都市ガス
    都市ガス
  • 追焚機能
    追焚機能
  • トイレ2箇所
    トイレ2箇所
  • IHクッキングヒーター
    IHクッキングヒーター
  • 浴室乾燥機
    浴室乾燥機
  • フローリング
    フローリング
  • ディンプルキー
    ディンプルキー
  • 物置
    物置
  • TVモニタ付きインターホン
    TVモニタ付きインターホン
  • 2沿線以上利用可
    2沿線以上利用可
  • 納戸
    納戸
  • 小学校まで徒歩10分以内
    小学校まで徒歩10分以内
  • 都市ガス
    都市ガス
  • 追焚機能
    追焚機能
  • トイレ2箇所
    トイレ2箇所
  • IHクッキングヒーター
    IHクッキングヒーター
  • 浴室乾燥機
    浴室乾燥機
  • フローリング
    フローリング
  • ディンプルキー
    ディンプルキー
  • 物置
    物置
  • TVモニタ付きインターホン
    TVモニタ付きインターホン
  • 2沿線以上利用可
    2沿線以上利用可
  • 納戸
    納戸
  • 小学校まで徒歩10分以内
    小学校まで徒歩10分以内
  • 都市ガス
  • 上水道
  • 下水道
  • エアコン
  • 給湯
  • 追焚機能
  • トイレ2箇所
  • バス・トイレ別
  • 温水洗浄便座
  • システムキッチン
  • IHクッキングヒーター
  • 洗面所
  • 洗面台
  • シャンプードレッサー
  • 洗濯機置場
  • 室内洗濯機置場
  • 浴室乾燥機
  • フローリング
  • ディンプルキー
  • 物置
  • TVモニタ付きインターホン
  • 納戸
  • 駐車場有
  • セットバックなし・済み
    リフォーム

    --

    立地・周辺環境

    2沿線以上利用可|小学校まで徒歩10分以内|スーパーまで徒歩10分以内|第一種中高層住居専用地域|防火・準防火

    セールスポイント

    Access━━━━・・・

    ■東急目黒線「西小山」駅徒歩15分
    ■東急目黒線・大井町線「大岡山」駅徒歩16分
    ■東急東横線「都立大学」駅徒歩16分
    ■東急目黒線「洗足」駅徒歩16分
    ☆3沿線4駅利用可能
    □「目黒」駅バス20分 碑文谷八幡バス停徒歩4分

    Point━━━━・・・

    ◇閑静な住宅街に立地
    ◇土地権利:所有権
    ◇土地面積:62.97u
    ◇建物延べ面積:94.39u
    ◇間取り :2SLDK
    ◇南向きバルコニー
    ◇全室に収納あり
    ◇駐車場敷地内にあり(幅1900mも駐車可能)

    ◇リフォーム(2025年11月)
    ・浴室新規交換
    ・洗面台新規交換
    ・1階トイレ新規交換
    ・玄関ドア新規交換
    ・1階フローリング張替
    ・1階クロス全張替
    ・シューズボックス新規交換

    ◇周辺環境
    ・まいばすけっと碑文谷1丁目店まで約410m
    ・イオンスタイル碑文谷まで約700m
    ・オオゼキ碑文谷店まで約920m
    ・西小山駅ビルまで約1200m
    ・業務スーパー西小山まで約1100m
    ・セブンイレブン目黒碑文谷3丁目まで約470m
    ・ヤマザキYショップ目黒碑文谷1丁目店まで約510m
    ・目黒碑文谷二郵便局まで約480m
    ・円融寺幼稚園まで約330m
    ・目黒サレジオ幼稚園まで約340m
    ・目黒区立碑小学校まで約330m
    ・円融寺まで約180m
    ・サレジオ協会まで300m
    ・南部地区プール(碑小学校屋内プール)まで約300m

    担当からのひとこと

    【目黒区碑文谷1丁目戸建】の詳細ページをご覧いただき、誠にありがとうございます。

    物件の検討にあたっては、是非一度ご内見頂くことをお勧めいたします。

    当物件は2025年11月に浴室・洗面台・トイレなど新規交換完了したお部屋となっております。
    建物南側は通路・駐車場となっており、東側・南側から光が入ります。

    また、2階へ行くためにリビングを通る間取りになり、家族でコミュニケーションがとりやすい間取りになります。

    ご内見をご希望の際は、担当までお気軽にご連絡ください。

    お客様からのお問い合わせを心よりお待ちしております。

    ・まいばすけっと碑文谷1丁目 徒歩5分(約410m)
    ・イオンスタイル碑文谷 徒歩9分(約700m)
    ・セブンイレブン目黒碑文谷3丁目店 徒歩6分(約470m)
    ・ヤマザキYショップ目黒碑文谷1丁目店 徒歩6分(約510m)
    ・碑小学校 徒歩4分(約330m)

    物件詳細

    物件名 目黒区碑文谷1丁目戸建
    物件番号 15462068
    所在地 東京都目黒区碑文谷1丁目
    価格
    1億1,900万円
    交通 東急目黒線西小山」駅徒歩15 分
    東急大井町線大岡山」駅徒歩16 分
    東急東横線都立大学」駅徒歩16 分
    間取り 2SLDK
    ※Sはサービスルーム(納戸)
    建物面積 94.39m2(約28.55坪)
    土地面積 62.97m2(約19.04坪)※公簿/セットバック済み/他に私道負担:6.95m2あり
    階数
    構造
    地上2階地下1階建て
    木造
    築年月 2004年11月
    地目
    地勢
    宅地
    総住戸数 1 戸
    各住戸の専有面積 最小28.98m2〜最大33.12m2
    接道状況 一方道路・東4m(私道)接面6.8m
    建ぺい率 60%
    容積率 160% ※容積率は、前面道路幅員による制限数値です。
    都市計画 市街化区域
    用途地域 第1種中高層住居専用地域
    地域・地区 準防火地域
    引渡時期 相談
    現況 居住中
    駐車場 有り
    土地権利 所有権
    取引態様 仲介
    国土法 届出不要
    建築確認番号 目都建検第123号
    備考
    • ・駐車場車種による
    • ・建物面積に地下1階(32.29u)を含みます。

    この情報は2026年04月09日当社物件システムのデータにもとづくものであり、次回更新予定日は2026年04月23日です。