• 新着
建物面積
103.29 m2
(約31.24坪)
間取り
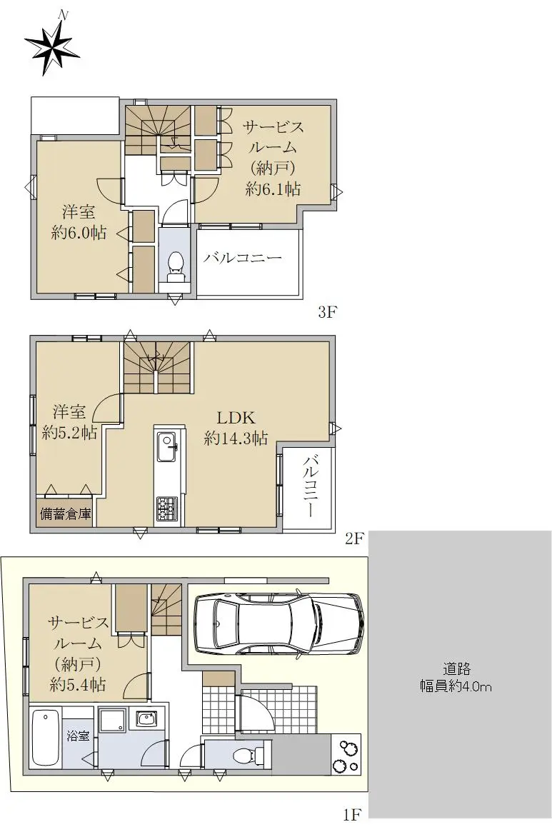
2SLDK
※Sはサービスルーム(納戸)
築年月
2026年06月

新築一戸建て

  • 新着
7,980万円

横浜市西区御所山町新築戸建2号棟

新築一戸建て

3駅3路線利用可能です 住環境良好です

神奈川県横浜市西区御所山町

建物面積103.29m2(約31.24坪)・間取り2SLDK ※Sはサービスルーム(納戸)・2026年06月築

借入希望金額や金利を入力すると
返済計画を組み立てることができます。

ローンシミュレーション結果

毎月返済額
ボーナス月返済額
年間返済額
月々のお支払い

(ボーナス月お支払い額 ¥円)
ローン
  • 別途月額費用がかかる場合があります。詳しくは営業担当にお問い合わせください。

住宅ローンの詳細は三井住友銀行 のホームページをご覧ください。

  • このシミュレーションは、借入れを保証するものではありません。「免責事項」をご確認の上、ご利用ください。
  • ボーナス返済額の上限は、金融機関によって異なります。
  • ご購入にあたっては別途諸費用等が必要です。詳しくは営業担当にお問合せください。

金利:2026年4月時点のものです。

物件のポイント

物件の特徴

  • 都市ガス
    都市ガス
  • 追焚機能
    追焚機能
  • トイレ2箇所
    トイレ2箇所
  • カウンターキッチン
    カウンターキッチン
  • 浄水器
    浄水器
  • 浴室乾燥機
    浴室乾燥機
  • TVモニタ付きインターホン
    TVモニタ付きインターホン
  • 24時間換気システム
    24時間換気システム
  • 2沿線以上利用可
    2沿線以上利用可
  • 納戸
    納戸
  • 小学校まで徒歩10分以内
    小学校まで徒歩10分以内
  • スーパーまで徒歩10分以内
    スーパーまで徒歩10分以内
  • 都市ガス
    都市ガス
  • 追焚機能
    追焚機能
  • トイレ2箇所
    トイレ2箇所
  • カウンターキッチン
    カウンターキッチン
  • 浄水器
    浄水器
  • 浴室乾燥機
    浴室乾燥機
  • TVモニタ付きインターホン
    TVモニタ付きインターホン
  • 24時間換気システム
    24時間換気システム
  • 2沿線以上利用可
    2沿線以上利用可
  • 納戸
    納戸
  • 小学校まで徒歩10分以内
    小学校まで徒歩10分以内
  • スーパーまで徒歩10分以内
    スーパーまで徒歩10分以内
  • 都市ガス
  • 上水道
  • 下水道
  • 追焚機能
  • トイレ2箇所
  • 温水洗浄便座
  • システムキッチン
  • カウンターキッチン
  • 浄水器
  • 浴室乾燥機
  • TVモニタ付きインターホン
  • 24時間換気システム
  • 納戸
  • 駐車場有
  • 新築
  • セットバックなし・済み
    リフォーム

    --

    立地・周辺環境

    2沿線以上利用可|小学校まで徒歩10分以内|スーパーまで徒歩10分以内|公園まで徒歩5分以内|第一種住居地域|防火・準防火

    セールスポイント

    【仕様・設備】
    ◆キッチン浄水器
    ◆浴室暖房乾燥機付
    ◆トイレ2カ所(温水洗浄便座付)
    ◆Low−Eガラス
    ◆玄関ドア電子錠
    ◆モニター付インターホン
    ◆24時間換気〜LIFE INFORMATION〜
    ☆セブンイレブン横浜戸部店    徒歩2分(約140m)
    ☆まいばすけっと戸部駅南店    徒歩4分(約250m)
    ☆御所山公園         徒歩2分(約100m)
    ☆戸部幼稚園         徒歩3分(約190m)
    ☆亀田病院          徒歩2分(約130m)
    ☆横浜市立戸部小学校       徒歩5分(約400m)
    ☆横浜市立老松中学校       徒歩13分(約990m)

    担当からのひとこと

    この度は「横浜市西区御所山町新築戸建2号棟」紹介ページにアクセス頂きありがとうございます。
    ぜひ現地をご覧ください。お問い合わせお待ちしております。

    ・セブンイレブン横浜戸部店 徒歩2分(約140m)
    ・まいばすけっと戸部駅南店 徒歩4分(約250m)
    ・御所山公園 徒歩2分(約100m)
    ・横浜市立戸部小学校 徒歩5分(約400m)
    ・亀田病院 徒歩2分(約130m)

    物件詳細

    物件名 横浜市西区御所山町新築戸建2号棟
    物件番号 16602002
    所在地 神奈川県横浜市西区御所山町
    価格
    7,980万円
    交通 横浜市ブルーライン高島町」駅徒歩8 分
    京急本線戸部」駅徒歩9 分
    京浜東北・根岸線桜木町」駅徒歩15 分
    間取り 2SLDK
    ※Sはサービスルーム(納戸)
    建物面積 103.29m2(約31.24坪)
    土地面積 58.34m2(約17.64坪)※実測/セットバック済み/他に私道負担:33.30m2あり
    階数
    構造
    地上3階建て
    木造
    築年月 2026年06月
    地目
    地勢
    宅地
    平坦
    接道状況 一方道路・東4m(私道)接面6.1m
    建ぺい率 60%
    容積率 160% ※前面道路幅員による制限数値です。
    都市計画 市街化区域
    用途地域 第1種住居地域
    地域・地区 準防火地域/建築基準法第22条区域、建築基準法第52条第7項運用区域、第四種高度地区、宅地造成等工事規制区域
    引渡時期 2026年06月中旬
    現況 未完成
    駐車場 有り/自走/屋根あり
    土地権利 所有権
    取引態様 仲介
    国土法 届出不要
    建築確認番号 KBI-SGM-10-4561
    備考
    • ・カースペース1台分(但し車種による)
    • ・建物面積103.29uには車庫部分9.52uを含みます。
    • ・準防火地域内の準耐火建築物等につき70%。

    この情報は2026年04月16日当社物件システムのデータにもとづくものであり、次回更新予定日は2026年04月30日です。