• オーナーチェンジ

本物件は投資向け物件です

想定利回り
4.42 %
年間想定賃料等
265万4,400
月額賃料等
22万1,200
現在の賃貸状況
全部賃貸中
オーナーチェンジ

投資用不動産

6,000万円

さいたま市中央区大戸1丁目アパート

アパート

アパート

  • オーナーチェンジ
6,000万円

さいたま市中央区大戸1丁目アパート

想定利回り
4.42 %

オーナーチェンジ 満室稼働中(2026年4月12日現在)

埼玉県さいたま市中央区大戸1丁目

建物面積94.10m2(約28.46坪)・土地面積159.74m2(約48.32坪)※公簿・1994年05月築

オーナーチェンジ 満室稼働中(2026年4月12日現在)

埼玉県さいたま市中央区大戸1丁目

建物面積94.10m2(約28.46坪)・土地面積159.74m2(約48.32坪)※公簿・1994年05月築

物件のポイント

本物件は投資向け物件です

想定利回り
4.42 %
想定利回り
4.42 %
年間想定賃料等
265万4,400
月額賃料等
22万1,200
現在の賃貸状況
全部賃貸中
オーナーチェンジ
投資用・事業用不動産について
  • 賃料等の収入や利回りは、将来にわたり、確実に得られることを保証するものではありません。
  • 賃料等は、賃貸中のものについては現在の賃料等で、新築および空室または一部空き有のものについては、周辺の賃料相場に基づき満室となった場合を想定して表示しています。
  • 利回りは、現況または満室想定時の賃料等の収入に基づく単純利回り(賃料等の年間合計金額÷ 販売価格(税込))で、公租公課や維持管理費等の必要経費は控除されていません。

物件の特徴

  • 低層住居専用地域
    低層住居専用地域
  • 容積率100%以上
    容積率100%以上
  • 駐車場有
    駐車場有
  • 前面道路幅員6m以上
    前面道路幅員6m以上
  • セットバックなし・済み
    セットバックなし・済み
  • 土地面積30坪以上
    土地面積30坪以上
  • 前面道路公道
    前面道路公道
  • 低層住居専用地域
    低層住居専用地域
  • 容積率100%以上
    容積率100%以上
  • 駐車場有
    駐車場有
  • 前面道路幅員6m以上
    前面道路幅員6m以上
  • セットバックなし・済み
    セットバックなし・済み
  • 土地面積30坪以上
    土地面積30坪以上
  • 前面道路公道
    前面道路公道
  • プロパンガス
  • 上水道
  • 下水道
  • 給湯
  • 駐車場有
  • セットバックなし・済み
  • 土地面積30坪以上
    リフォーム

    --

    立地・周辺環境

    低層住居専用地域|容積率100%以上|前面道路幅員6m以上|前面道路公道

    セールスポイント

    ■満室稼働中(2026年5月9日現在)
    現況:稼働4部屋/総賃室4部屋、駐車場4台(2026年5月9日現在)
    現況年間収入:2654400円
    現況表面利回り:4.42%/年
    ■JR埼京線「中浦和」駅徒歩11分
    ■JR京浜東北線「浦和」駅徒歩25分
    ■1994年5月築
    お気軽にお問い合わせください。

    担当からのひとこと

    ライフインフォメーション
    ■セブンイレブンさいたま大戸3丁目店まで約350m(徒歩5分)
    ■ビッグ・エーさいたま西堀店まで約700m(徒歩9分)
    ■さいたま市役所まで約750m(徒歩10分)
    ■林病院まで約500m(徒歩7分)
    ■さいたま市営別所沼公園まで約400m(徒歩5分)
    ■浦和仲町郵便局まで約290m(徒歩4分)

    --

    物件詳細

    物件名 さいたま市中央区大戸1丁目アパート
    物件番号 16274004
    所在地 埼玉県さいたま市中央区大戸1丁目
    価格
    6,000万円
    交通 埼京線中浦和」駅徒歩11 分
    京浜東北・根岸線浦和」駅徒歩25 分
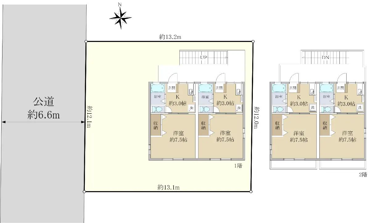
    間取り 1K
    建物面積 94.10m2(約28.46坪)
    土地面積 159.74m2(約48.32坪)※公簿
    階数
    構造
    地上2階建て
    軽量鉄骨
    築年月 1994年05月
    地目
    地勢
    宅地
    平坦
    総住戸数 4 戸
    各住戸の専有面積 最小23.18m2〜最大23.18m2
    接道状況 一方道路・西6.6m(公道)接面12.1m
    建ぺい率 60%
    容積率 100%
    都市計画 市街化区域
    用途地域 第2種低層住居専用地域
    地域・地区 文化財保護法
    引渡時期 相談
    現況 賃貸中
    駐車場 有り
    土地権利 所有権
    取引態様 仲介
    国土法 届出不要
    備考
    • ・間取/1K×4
    • ・【駐車場】車種による
    • ・埋蔵文化財包蔵地内

    この情報は2026年05月21日当社物件システムのデータにもとづくものであり、次回更新予定日は2026年06月04日です。