◆地上29階部分◆専有面積:108.40u・2LDK◆大川が望める北角住戸
物件のポイント
物件の特徴
-
- 都市ガス
- 上水道
- 下水道
- 給湯
- 追焚機能
- バス・トイレ別
- シャワー
- 温水洗浄便座
- システムキッチン
- 食器洗浄乾燥機
- IHクッキングヒーター
- 洗面所
- 洗面台
- シャンプードレッサー
- 浴室乾燥機
- 2面バルコニー
- 自動ロック
- TVモニタ付きインターホン
- 宅配ボックス
- 駐輪場
- バイク置き場
- コンシェルジュサービス
- 角部屋
- 所在階20階以上
- 大規模(総戸数100戸以上)
- タワー(20階建以上)
- 管理員日勤
- 共有施設充実
- 大手旧分譲
- リフォーム
-
--
- 立地・周辺環境
-
眺望良好
セールスポイント
〜〜OAPレジデンスタワー東館・29階部分〜〜
【物件概要】
・地上31階建て地下1階付29階部分
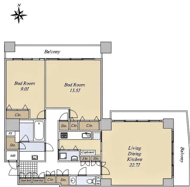
・専有面積:108.40u
・バルコニー面積25.90u
・2LDK
・大川が望めるリバービュー
・北東角住戸
・追炊き機能、浴室乾燥機有
・ビルトイン食器洗い乾燥機
【物件概要】
築 年 月:1998年2月建築
構 造:鉄骨鉄筋コンクリート造・地上31階建地下1階付
総 戸 数:550戸
新築時売主:三菱地所・三菱マテリアル他3社
施 工:OAP計画建築共同企業体
担当からのひとこと
弊社ホームページをご覧頂き誠にありがとうございます。
『OAPレジデンスタワー東館』物件担当の浦中でございます。
本物件は、大阪市北区天満橋一丁目に建つ1998年2月建築の31階建タワーマンションでございます。
29階部分であり、北東角住戸につき大川を一望できるお部屋で、眺望・採光良好となっております。
===================================
ご売却・ご購入の相談は随時受け付けております。
不動産のご売却・ご購入を少しでもお考えの方がいらっしゃいましたら、
お気軽に浦中までご相談くださいませ。
(無料査定・無料相談)
梅田マンションプラザ 担当:浦中
フリーコール 0120-135-323
===================================
周辺環境
--
物件詳細
| 物件名 | OAPレジデンスタワー |
|---|---|
| 物件番号 | 360F3017 |
| 所在地 |
大阪府大阪市北区天満橋1丁目 |
| 価格 |
1億4,800万円
|
| 交通 | JR東西線「大阪天満宮」駅徒歩9 分 JR大阪環状線「桜ノ宮」駅徒歩12 分 大阪メトロ谷町線「南森町」駅徒歩12 分 |
| 間取り | 2LDK |
| 専有面積 | 108.40m2(壁芯) |
| 所在階 構造 |
29階部分/地上31階建て 鉄筋コンクリート造 |
| 築年月 | 1998年02月 |
| バルコニー(テラス)面積 | 25.90m2 |
| 採光方向 | 東/角部屋 |
| 総戸数 | 550 戸 |
| 管理形態 管理方式 管理会社 |
管理会社に全部委託 日勤 三菱地所コミュニティ |
| 新築時売主 | 三菱地所・三菱マテリアル他3社 |
| 施工会社 | OAP計画建築共同企業体 |
| 管理費(月額) | 28,200円 |
| 修繕積立金(月額) | 28,200円 |
| その他月額費用 | その他:月額2,700円/冷暖房給湯基本料:7,920円/駐車場管理費:1,000円 |
| その他一時金 | 駐車場修繕積立金:10,600円 |
| 引渡時期 | 相談 |
| 現況 | 居住中 |
| 駐車場 | 空無し |
| 土地権利 | 所有権 |
| 取引態様 | 仲介 |
| 備考 |
|
この情報は2026年04月20日当社物件システムのデータにもとづくものであり、次回更新予定日は2026年05月04日です。
